Kreuzbergl Villen- 4 Zimmer Wohnung - Ein Projekt von MADILE
Wohnung
,
9020
Klagenfurt am Wörthersee
Lage der Immobilie
Die Wohnanlage Kreuzbergl Villen, mit exklusivem Wohnkomfort, befindet sich im Herzen St Martins und bietet Ihnen die beste Kombination aus urbaner Vielseitigkeit und erholsamer Idylle. In einer der besten Lagen der Stadt – St Martin am Fuße des Kreuzbergls, lassen diese repräsentativen, sonnigen und lichtdurchfluteten Wohnungen das keine Wünsche offen. Laufstrecken und Spazierwege befinden sich in direkter Nachbarschaft. In 5 Autominuten erreichen Sie den Wörthersee mit seinen einladenden Strandbädern und trendigen Restaurants. Auch die nahegelegene Innenstadt von Klagenfurt hat viel zu bieten: Ob Einkaufsbummel oder erfrischenden Cocktail. Supermärkte, Bildungseinrichtungen (Krabbelstube, Kindergarten und Volksschule) befinden sich in unmittelbarer Nähe.Beschreibung der Immobilie
Kreuzbergl Villen: Ihre neue Wohlfühloase in urbaner Idylle!
Am Fuße des Kreuzbergl, in St Martin, entsteht eine moderne und ansprechende Wohnanlage, die aus 4 Gebäuden mit jeweils 5 Wohneinheiten besteht.
Bei der Planung dieses Projekts wurde großer Wert auf maximalen Wohnkomfort gelegt. Durchdachte Grundrisse, erstklassige Ausstattung und energieeffiziente Technologien vereinen sich in diesem Wohnprojekt, das sich in einer der attraktivsten Lagen der Region befindet.
Das äußere Design der Gebäude fügt sich harmonisch in das ländliche Ortsbild ein, wobei hochwertige Materialien verwendet werden, die bereits von außen ein behagliches Wohngefühl vermitteln.
Die Wohnungen bieten Größen von 42 m² bis 121 m², wobei größere Einheiten durch die Zusammenlegung von Wohnungen realisiert werden können.
Verkaufspreise ab 398.250 EUR
Highlights
- Anspruchsvolle und barrierefreie Innenausstattung
- großzügige Räume mit viel Tageslicht
- Energieeinsparung durch Erdwärmepumpe und Photovoltaikanlage
- innovative Fußbodenheizung und eine Deckenkühlung, für ein angenehmes Raumklima
- moderne Badausstattung mit hochwertigen Materialien
- Kellerabteil für jede Wohneinheit
- hauseigene Tiefgarage
- Erfahrener Bauträger, über 140 Jahre Firmentradition
Infrastruktur / Entfernungen
Gesundheit
Arzt <500m
Apotheke <1.000m
Krankenhaus <2.000m
Klinik <2.000m
Kinder & Schulen
Schule <1.000m
Kindergarten <1.000m
Universität <1.000m
Höhere Schule <2.500m
Nahversorgung
Supermarkt <1.000m
Bäckerei <1.000m
Einkaufszentrum <3.000m
Sonstige
Bank <1.000m
Geldautomat <1.000m
Post <1.500m
Polizei <1.000m
Verkehr
Bus <500m
Autobahnanschluss <1.000m
Bahnhof <1.000m
Flughafen <5.500m
Angaben Entfernung Luftlinie / Quelle: OpenStreetMap
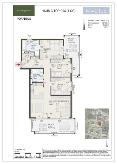
Eckdaten
| Kaufpreis: | 789.000,00 € |
| Fläche: | 107,06 m² |
| Zimmer: | 4 |
Basisdaten zur Immobilie
| Objektnr: | 112 |
| Art: | Wohnung |
| Land: | Österreich |
| Alter: | Neubau |
| Kaufpreis: | 789.000,00 € |
| Kaufpreis / m²: | auf Anfrage |
| Wohnfläche: | 107,06 m² |
| Zimmer: | 4 |
| Heizwärmebedarf: | B 44,00 kWh/m²a |
| fGEE: | A+ 0,67 |
Internet und TV
Information zur Internet und TV Versorgung hier
Ihre persönliche Beratung
Andreas Binder
Madile Wohnbau GmbH
office@madile.at
+43 664 8282 969
