Repräsentatives Büro in klassizistischem Palais in Geidorf
Büro / Praxis
,
8010
Graz
Lage der Immobilie
Das spätbarock-klassizistisch geprägte kleine Palais liegt - verkehrstechnisch leicht zu erreichen - nahe an der Karl-Franzens Universität Graz in der schönen Umgebung von Geidorf. Auch die Panoramagasse und der Rosenhain als beliebtes Freizeit- und Erholungsgebiet sowie das USI (Sport Universitätszentrum) liegen in unmittelbarer Nähe. Mit dem Fahrrard gelangt man zum Hilmteich in lediglich 4 Minuten und zum Grazer Hauptplatz in 10 Minuten.Beschreibung der Immobilie
Die Großzügigkeit und die sympathische Atmosphäre in diesen repräsentativen Büroräumlichkeiten im ersten Obergeschoß werden Sie überzeugen!
Willkommen geheißen von einem Entré mit besonders hohen Räumen (ca. 4 m) und eleganter Stuckdecke können sich hier Mitarbeitende und Kund*innen gleichermaßen von Beginn an wohl fühlen. Die historische Substanz, die nach dem Jahr 2000 mit viel Gespür generalsaniert wurde, schafft eine Stimmung für den Besucher, wie es nahezu nur klassische Altbauten vermögen.
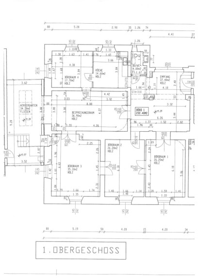
Vom Eingangsbereich gelangt man wahlweise direkt in zwei Büroräumlichkeiten, in einen großen Saal, der wiederum als Zugangsbereich zu weiteren Büros bzw. in den sonnigen Wintergarten führt.
Folgende Räume stehen zur Verfügung:
- Drei westseitige Büros mit Verbindung untereinander. Größen: 26 m², 26 m² und 35 m²
- Der Saal innenliegend / Besprechungsraum bringt es auf knapp 37 m²
- Der lichtdurchflutete Wintergarten mit Rollstuhllift samt zweitem Eingang vom Stiegenhaus mit Lift verfügt über 34 m²
- Hinzu kommt ein derzeit als Küche genütztes Büro mit über 14 m² und einem weiteren Büro im Osten mit knapp 18 m²
- Ein kleines Bad samt Toilette und Notdusche
Es gibt zwei weitere Anschluss-Möglichkeiten um eine Küche zu installieren (im Wintergarten und im Entré). Das ermöglicht eine größere Gestaltungsfreiheit bei der Adaptierung des Büros für neue Verwendungszwecke.
Im Preis sind weiters zwei Tiefgaragenplätze sowie ein Kellerabteil inkludiert.
Parkplätze im Hof stehen dem Objekt bzw. Besuchern nicht zur Verfügung.
Die Immobilie steht ab Sommer 2022 zur Verfügung. Das genaue Übergabedatum kann einvernehmlich unter Berücksichtigung der jeweiligen Vorstellungen von Verkäufern und Käufern abgestimmt werden.
Eine Besichtigung ist nach Kontaktaufnahme mit uns und Terminvereinbarung auch kurzfristig möglich.
Noch nichts gefunden? Wir informieren Sie über geeignete Immobilienangebote noch vor allen anderen.
Legen Sie jetzt Ihren individuellen Suchagenten unter folgendem Link an. Wir schicken Ihnen passende Immobilien exklusiv vorab zu.
Suchagent anlegen - https://valordomo-immobilien.service.immo/registrieren/de
Infrastruktur / Entfernungen
Gesundheit
Arzt <500m
Apotheke <500m
Klinik <1.000m
Krankenhaus <1.000m
Kinder & Schulen
Schule <1.000m
Kindergarten <500m
Universität <500m
Höhere Schule <1.500m
Nahversorgung
Supermarkt <500m
Bäckerei <500m
Einkaufszentrum <1.500m
Sonstige
Geldautomat <500m
Bank <500m
Post <500m
Polizei <1.000m
Verkehr
Bus <500m
Straßenbahn <1.000m
Autobahnanschluss <6.000m
Bahnhof <1.500m
Angaben Entfernung Luftlinie / Quelle: OpenStreetMap
Eckdaten
| Kaufpreis: | 890.000,00 € |
| Fläche: | 232,00 m² |
| Zimmer: | 8 |
Basisdaten zur Immobilie
| Objektnr: | 5408/80 |
| Art: | Büro / Praxis |
| Land: | Österreich |
| Baujahr: | 1846 |
| Zustand: | Gepflegt |
| Möbliert: | Teil |
| Alter: | Altbau |
| Kaufpreis: | 890.000,00 € |
| Kaufpreis / m²: | 3.836,21 € |
| Provision: | 3% des Kaufpreises zzgl. 20% USt. |
| Betriebskosten: | 617,80 € |
| Heizkosten: | 231,00 € |
| MwSt Gesamt: | 150,06 € |
| Nutzfläche: | 232,00 m² |
| Bürofläche: | 232,00 m² |
| Zimmer: | 8 |
| Bäder: | 1 |
| WC: | 1 |
| Keller: | 10,00 m² |
| Heizwärmebedarf: | D 107,00 kWh/m²a |
Ausstattung
Parkett, Fernwärme, Einbauküche, Personenaufzug, Bad mit Fenster, DV-Verkabelung, Tiefgarage
Internet und TV
Information zur Internet und TV Versorgung hier
Ihre persönliche Beratung
DI (FH) Julian Englich
ValorDomo Immobilien GmbH
office@valordomo.com
+43 676 3136555
+43 676 3136555
