Tiefgaragenstellplatz in Feldkirch/Nofels zu mieten
6800
Feldkirch
,
Sebastian-Kneipp-Straße
Lage der Immobilie
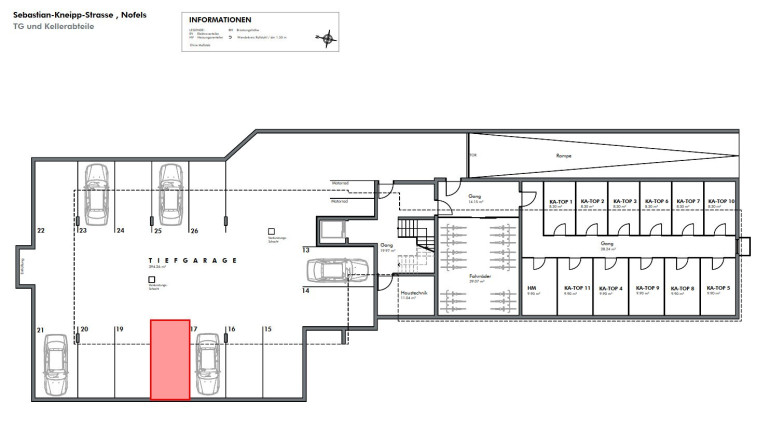
In der Sebastian-Kneipp-Straße 18+18a in Nofels.Beschreibung der Immobilie
vermietet wird in einer gepflegten Anlage ein KFZ-Abstellplatz in der Tiefgarage.
- Stellplatz Nr. 18
- Helle Tiefgarage
- E-Ladestation vorhanden (für Bewohner nutzbar
Unsere Angaben beziehen sich auf die Auskünfte des Eigentümers. Irrtum und Änderungen vorbehalten.
Noch nichts gefunden? Wir informieren Sie über geeignete Immobilienangebote noch vor allen anderen.
Legen Sie jetzt kostenlos Ihren individuellen Suchagenten unter folgendem Link an. Wir schicken Ihnen passende Immobilien exklusiv vorab zu.
Suchagent anlegen
Wir weisen darauf hin, dass zwischen dem Vermittler und dem zu vermittelnden Dritten ein familiäres oder wirtschaftliches Naheverhältnis besteht.
Der Vermittler ist als Doppelmakler tätig.
Infrastruktur / Entfernungen
Gesundheit
Arzt <1.000m
Apotheke <500m
Krankenhaus <2.750m
Kinder & Schulen
Schule <500m
Kindergarten <500m
Höhere Schule <3.000m
Universität <3.000m
Nahversorgung
Supermarkt <750m
Bäckerei <500m
Einkaufszentrum <3.000m
Sonstige
Bank <500m
Geldautomat <500m
Post <500m
Polizei <2.750m
Verkehr
Bus <250m
Bahnhof <2.000m
Autobahnanschluss <4.250m
Angaben Entfernung Luftlinie / Quelle: OpenStreetMap
Eckdaten
| Gesamtmiete: | 99,00 € |
Basisdaten zur Immobilie
| Objektnr: | 5681/523 |
| Land: | Österreich |
| Gesamtmiete: | 99,00 € |
| Kaltmiete (netto): | 82,50 € |
| Kaltmiete: | 82,50 € |
| Provision: | 1 Bruttomonatsmiete zzgl. 20% USt. |
| MwSt Gesamt: | 16,50 € |
| Stellplätze: | 1 |
Internet und TV
Information zur Internet und TV Versorgung hier
Ihre persönliche Beratung
Daniel Marte
Rimo Immobilien GmbH
info@rimo.at
+43 5522 39303 28
