Zweitwohnsitz für Sportbegeisterte
Haus
- Ferienhaus,
4580
Windischgarsten
Beschreibung der Immobilie
Ein Rückzugsort mit Herz im idyllischen Windischgarsten
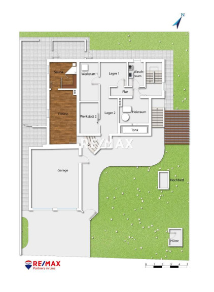
Diese multifunkionelle Woznidylle im Luftkurort Windischgarsten vereint Wohnkomfort, Naturnähe und vielfältige Nutzungsmöglichkeiten. Zwei getrennte Wohneinheiten, Wintergarten, Kachelofen, Sauna, Garten mit Hochbeeten und großzügige Nebenflächen machen die Immobilie zum perfekten Auszeiterlebnis für Familien, Naturliebhaber oder Ruhesuchende.
Skigebiete wie Wurzeralm und Hinterstoder, Wanderwege im Nationalpark Kalkalpen sowie Rad- und Freizeitangebote liegen direkt vor der Tür. Einkaufsmöglichkeiten, Schule und Bahnhof sind rasch erreichbar. Ein einzigartiges Haus – vielseitig, gepflegt und mit echtem Wohlfühlfaktor.
Ruhige Lage, perfekte Atmosphäre – ein Ort zum Ankommen und Wohlfühlen!
Reservieren Sie jetzt Ihren Besichtigungstermin, indem Sie auf den folgenden Link klicken: ZUR ONLINE TERMINBUCHUNG
Highlights auf einen Blick:
-Atemberaubender Bergblick von Terrasse, Balkon und Wintergarten
-Zwei getrennte Wohneinheiten mit eigenem Wohnbereich
-Sauna- und Fitnessbereich im Erdgeschoss
-Hochbeet, Pergola & überdachte Abstellflächen für Gartenfreunde
-Zwei behagliche Öfen (Kachelofen & Kaminofen)
-Große Werkstatt- und Lagerräume für Hobby und Handwerk
-In der Nähe: Radwege, Wanderpfade & Skigebiete wie Hinterstoder, Wurzeralm
-Nachhaltigkeitspotenzial: Pellet- Heizung möglich (Tankraum vorhanden)
- Diese schmucke Wohlfühloase wurde in 3 Bauettappen mit Raffiness entwickelt.
Lage:
Ruhige und sonnige Lage im idyllischen Luftkurort Windischgarsten – umgeben von imposanter Berglandschaft und ideal für Freizeitaktivitäten wie Skifahren, Wandern und Radfahren.
Nahversorgung, Schule, Bahnhof und ärztliche Versorgung befinden sich in unmittelbarer Nähe. Perfekte Kombination aus Naturgenuss und guter Erreichbarkeit über die A9.
Wir haben Ihr Interesse geweckt? - Dann sichern Sie sich jetzt Ihren persönlichen Besichtigungstermin!
Gemäß § 5, Abs. 3 Maklergesetz weisen wir daraufhin, dass wir als Doppelmakler tätig sind. Bitte beachten Sie, dass wir aufgrund der Nachweispflicht gegenüber dem Eigentümer nur Anfragen mit vollständiger Angabe der Anschrift und Telefonnummer bearbeiten können. Wir weisen darauf hin, dass alle Angaben nach bestem Wissen und Gewissen erstellt wurden. Für Auskünfte und Angaben, die uns von Seiten der Eigentümer und Dritten zur Verfügung gestellt wurden, übernehmen wir keine Haftung. Dieses Angebot ist unverbindlich und freibleibend. Zwischenverwertung, Irrtümer, Druckfehler und Änderungen vorbehalten.
| Angaben gemäß gesetzlichem Erfordernis: | |||
| Heizwärmebedarf: | 131.3 kWh/(m²a) | ||
| Klasse Heizwärmebedarf: | D | ||
| Faktor Gesamtenergieeffizienz: | 1.71 | ||
| Klasse Faktor Gesamtenergieeffizienz: | C | ||
Eckdaten
| Objektnr: | 3776_591 |
| Art: | Haus - Ferienhaus |
| Land: | Österreich |
| Baujahr: | ca. 1968 |
| Zustand: | Gepflegt |
| Möbliert: | Teil |
| Kaufpreis: | 465.000,00 € |
| Provision: | 3.00 % |
| Wohnfläche: | 190,00 m² |
| Nutzfläche: | 316,00 m² |
| Grundstücksfl.: | 514,00 m² |
| Zimmer: | 10,50 |
| Bäder: | 2 |
| WC: | 2 |
| Balkone: | 1 |
| Terrassen: | 1 |
| Stellplätze: | 3 |
| Keller: | 59,00 m² |
| Heizwärmebedarf: | D 131,00 kWh/m²a |
| fGEE: | C 1,71 |
Ausstattung
Öl, Kamin, Zentralheizung, Kabel/Satelliten-TV, Garage, Parkplatz, Sauna
Internet und TV
Information zur Internet und TV Versorgung hier
Ihre persönliche Beratung
Ing. Siegfried Ursprunger
RE/MAX Partners
E s.ursprunger@remax-partners.at
T +43 732 77 67 08776708
H +43 676 5553888