Oberwart | Seltene Gelegenheit mit über 9,75 % Rendite | vollvermietetes Betriebsgebäude inkl. zwei Wohneinheiten
Halle / Lager / Produktion
,
1080
Wien,Josefstadt
Lage der Immobilie
OberwartBeschreibung der Immobilie
Seltene Gelegenheit - vollvermietetes Gebäude mit einer Geschäftsfläche sowie 2 Wohnungen in guter Lage von Oberwart.
Zum Verkauf gelangt ein ca. 1996 errichtetes Betriebsgebäude mit zwei Wohnungen im Dachgeschoss. Die Betriebsfläche teilt sich auf einen Verkaufsraum, ein Lager und eine Werkstatt auf. Durch das Stiegenhaus erreicht man die zwei Wohnungen im Dachgeschoss.
Eckdaten
Größe: ca. 282 m2 Nutzfläche
Grunstücksgröße: 647 m²
Stockwerke: 2 - Erdgeschoss und Dachgeschoss
Gebäude: ca. 1996
Heizung: Gasheizung
Mieteinnahmen:
Geschäftsfläche: € 3.950,- ohne USt. und Betriebskosten
Top 1: € 449,- ohne USt.
Top 2: € 450,- ohne USt.
Mieteinnahmen pro Monat: € 4.849,-
Mieteinnahmen per Anno: € 58.188,-
Rendite auf den Kaufpreis: 9,75 % auf den Kaufpreis
Besichtigungen
Besichtigungen sind nach Vereinbarung möglich, senden Sie uns eine Anfrage oder nehmen sie telefonisch mit uns Kontakt auf.
Verkehrsanbindung
Buslinien: 310
Einkaufszentrum: EO Einkaufszentrum Oberwart - wenige Minuten entfernt
Infrastruktur und Umgebung
Einkaufszentrum: EO Einkaufszentrum Oberwart - wenige Minuten entfernt. Ein Lageexpose mit allen Details zur Umgebung erhalten Sie auf Anfrage.
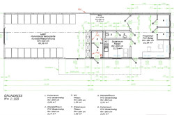
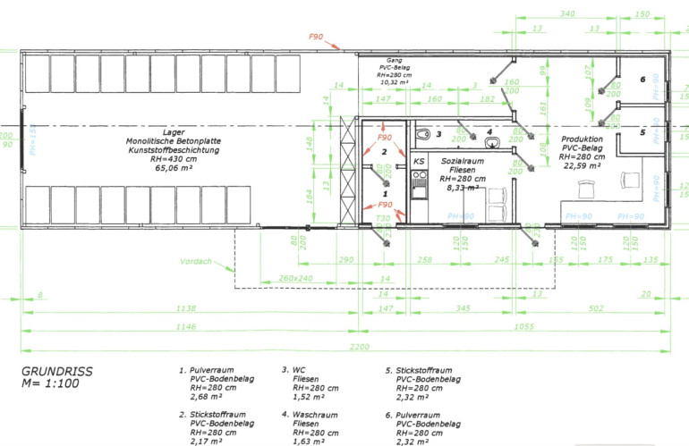
Raumaufteilung
Erdgeschoss
Schraum
Lager
Pulverraum
WC + Waschraum
Vorraum
Top 1
Zimmer
Küche
Bad mit WC
Top 2
Vorraum
Bad mit WC
Zimmer
Küche
Kaufpreis: EUR 570.000,-
Provision: 3% + 20% USt.
Kaufnebenkosten:
3,5% Grunderwerbssteuer
1,1% Grundbucheintragungsgebühr
1,5% zzgl. 20% USt. Kaufvertragserrichtungskosten und Treuhändsiche Abwicklung zzgl. Barauslagen
Kontaktieren Sie mich bezüglich einer Besichtigung unter +43 660 570 7723 oder info@pagoni.at
Wir weisen darauf hin, dass zwischen dem Vermittler und dem Auftraggeber ein wirtschaftliches Naheverhältnis besteht. Der Vermittler ist als Doppelmakler tätig.
***ENGLISH***
Rare opportunity - fully rented building with a commercial space and 2 apartments in a good location of Oberwart.
More photos of the building gladly on request.
For sale is a business building built in 1996 with two apartments in the attic. The business area is divided into a sales room, a warehouse and a workshop. The two apartments in the attic can be reached through the staircase.
Viewings
Viewings are possible by appointment, send us an inquiry or contact us by phone.
Key data
Size: approx. 282 m2 usable area
Size of the plot: 647 m²
Floors: 2 - first floor and attic floor
Building: year of construction 1996
Heating: gas heating
Rental income:
Commercial space: € 3.950,- without VAT.
Top 1: € 449,- without VAT
Top 2: € 436,- without VAT
Rental income per month: € 4.835,-
Rental income per annum: € 58.020,-
Yield on the purchase price: 9,75% on the purchase price
Transport connections
Bus lines: 310
Infrastructure and surroundings
Shopping center: EO shopping center Oberwart - a few minutes away. A site report with all details about the surroundings is available on request.
Room layout
First floor
Schraum
Warehouse
Powder room
WC + washroom
Anteroom
Top 1
Room
Kitchen
Bathroom with WC
Top 2
anteroom
Bathroom with WC
Room
Kitchen
Purchase price: EUR 570.000,-.
Commission: 3% + 20% VAT
Additional purchase costs:
3,5% land transfer tax
1,1% land register registration fee
1,5% plus 20% VAT Costs for drawing up the purchase contract and handling by the trustee plus cash expenses
Please contact me for a viewing at +43 660 570 7723 or info@pagoni.at.
We would like to point out that there is a close economic relationship between the agent and the client. The agent acts as a dual broker.
Hinweis gemäß Energieausweisvorlagegesetz: Ein Energieausweis wurde vom Eigentümer bzw. Verkäufer, nach unserer Aufklärung über die generell geltende Vorlagepflicht, sowie Aufforderung zu seiner Erstellung noch nicht vorgelegt. Daher gilt zumindest eine dem Alter und der Art des Gebäudes entsprechende Gesamtenergieeffizienz als vereinbart. Wir übernehmen keinerlei Gewähr oder Haftung für die tatsächliche Energieeffizienz der angebotenen Immobilie.
Wir weisen darauf hin, dass zwischen dem Vermittler und dem zu vermittelnden Dritten ein familiäres oder wirtschaftliches Naheverhältnis besteht.
Der Vermittler ist als Doppelmakler tätig.
Infrastruktur / Entfernungen
Gesundheit
Arzt <500m
Apotheke <500m
Klinik <500m
Krankenhaus <1.500m
Kinder & Schulen
Schule <500m
Kindergarten <1.000m
Universität <500m
Höhere Schule <500m
Nahversorgung
Supermarkt <500m
Bäckerei <500m
Einkaufszentrum <1.000m
Sonstige
Geldautomat <500m
Bank <500m
Post <500m
Polizei <500m
Verkehr
Bus <500m
U-Bahn <500m
Straßenbahn <1.000m
Bahnhof <500m
Autobahnanschluss <3.500m
Angaben Entfernung Luftlinie / Quelle: OpenStreetMap
Eckdaten
| Kaufpreis: | 570.000,00 € |
| Fläche: | 282,00 m² |
Basisdaten zur Immobilie
| Objektnr: | 6864/157 |
| Art: | Halle / Lager / Produktion |
| Land: | Österreich |
| Kaufpreis: | 570.000,00 € |
| Kaufpreis / m²: | 2.021,28 € |
| Provision: | 20.520,00 € inkl. 20% USt. |
| Nutzfläche: | 282,00 m² |
| Grundstücksfl.: | 647,00 m² |
Internet und TV
Information zur Internet und TV Versorgung hier
Ihre persönliche Beratung
Ivan Paunovic
Pagoni Immobilien e.U.
info@pagoni.at
+43 660 570 7723
