| CHARMANTE 2-ZIMMER WOHNUNG MIT GROSSZÜGIGER SW-TERRASSE | IN WUNDERSCHÖNER ALTBAU-VILLA | HELL & GEMÜTLICH | IDEAL FÜR STUDENTEN, SINGELS ODER PÄRCHEN | NÄHE MED-UNI | TOP LAGE
Wohnung
- Terrassenwohnung,
8047
Graz
,
Ragnitzstraße
Lage der Immobilie
Sehr gute Lage Nähe Med-Uni & LKHBeschreibung der Immobilie
Zum Verkauf stehen eine Eigentumswohnung (ca. 54m²), ein Geschäftslokal (ca. 50m²) und Tiefgaragenplätze zur Verfügung.
Beschreibung:
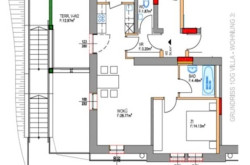
Diese gepflegte 2-Zimmer-Eigentumswohnung mit ca. 54,43 m² Wohnfläche befindet sich im 1. Obergeschoss einer wunderschönen Villa. Die Wohnung überzeugt durch ihre durchdachte Raumaufteilung, helle Räume und einer sonnigen Terrasse. Ob zur Eigennutzung oder als Kapitalanlage – diese Wohnung bietet eine attraktive Kombination aus Komfort, Lage und Werterhalt.
Raumaufteilung:
-
Heller Wohn- und Essbereich mit Zugang zur Terrasse
-
Schlafzimmer
-
Moderne Küche
-
Bad mit Dusche
-
Separates WC
-
Abstellraum
-
Terrasse
Informationen zum Objekt.
-
Baujahr: ca.1900 - letzte Sanierung ca.2020
-
Heizungsart: Fernwärme
-
Zustand: sehr gepflegt
-
Etage: 1. Obergeschoss
-
Einzug: sofort
-
Stellplatz: optional z. B. Tiefgaragenstellplatz vorhanden
-
Kaufpreis pro Stellplatz € 29.500,00
Lagebeschreibung
Die Wohnung befindet sich in einer begehrten, ruhigen Wohngegend von Graz- Ragnitz die durch eine gute Infrastruktur und Nähe zur Natur besticht. Einkaufsmöglichkeiten, Ärzte, Schulen und öffentliche Verkehrsmittel sind in wenigen Minuten erreichbar. Die Anbindung an die Innenstadt bzw. auch zur Autobahn ist hervorragend. Für Freizeitliebhaber bieten sich nahegelegene Parks, Radwege oder Cafés zur Erholung an.
Diese Wohnung ist eine ideale Gelegenheit für alle, die zentrumsnah und in bester Lage wohnen möchten. Ob als erste eigene Wohnung, komfortabler Altersruhesitz oder solide Kapitalanlage: Hier lohnt sich ein zweiter Blick! Vereinbaren Sie noch heute einen Termin.
Hinweis: Die Bilder wurden durch KI-generierte Inhalte erstellt und dienen der besseren Vorstellung. Die Wohnung wird unmöbliert verkauft.
Wir weisen darauf hin, dass zwischen dem Vermittler und dem zu vermittelnden Dritten ein familiäres oder wirtschaftliches Naheverhältnis besteht.
Der Vermittler ist als Doppelmakler tätig.
DECUS Immobilien GmbH – Wir beleben Räume
Für weitere Informationen und Besichtigungen steht Ihnen gerne Frau Katharina Hammerl unter der Mobilnummer +43 660 688 33 43und per E-Mail unter hammerl@decus.at persönlich zur Verfügung.
www.decus.at | office@decus.at
Wichtige Informationen
Bitte beachten Sie, dass per 13.06.2014 eine neue Richtlinie für Fernabsatz- und Auswärtsgeschäfte in Kraft getreten ist.
Ab 1.4.2024 entfallen die Grundbuchs- und Pfandrechtseintragungsgebühren vorübergehend für Eigenheime bis zu einer Bemessungsgrundlage von EUR 500.000,-. Voraussetzung ist das dringende Wohnbedürfnis, ausgenommen davon sind vererbte oder geschenkte Immobilien. Die Befreiung ist jedoch für den Einzelfall zu prüfen, DECUS Immobilien übernimmt hierzu keine Haftung.
Ab 01.07.2023 gilt das Erstauftraggeber-Prinzip bei Wohnungsmietverträgen, ausgenommen davon sind Dienst-/Natural-/Werkswohnungen. Wir dürfen gem. § 17 Maklergesetz darauf hinweisen, dass wir auf die Doppelmaklertätigkeit gem. § 5 Maklergesetz bei Wohnungsmietverträgen verzichten und nur noch einseitig tätig sind (bei den restlichen Vermittlungsarten nicht) und ein wirtschaftliches Naheverhältnis zu unseren Auftraggebern besteht.
Im Falle eines Abschlusses mit Ihnen oder einem von Ihnen namhaft gemachten Dritten bzw. bei beidseitiger Willensübereinstimmung beträgt unser Honorar (lt. Honorarverordnung für Immobilienmakler) 2 Bruttomonatsmieten (BMM) bei Dienst-/Natural-/Werkwohnungen sowie Suchaufträgen, 3 BMM bei Gewerbe-, PKW-, Keller- und Lagermietverträgen sowie bei Kaufobjekten 3 % des Kaufpreises, zuzüglich der gesetzlichen Umsatzsteuer.
Dieses Objekt wird Ihnen unverbindlich und freibleibend angeboten. Oben angeführte Angaben basieren auf Informationen und Unterlagen des Eigentümers und sind unsererseits ohne Gewähr.
Nähere Informationen sowie unsere AGBs und die Nebenkostenübersichtsblatt finden Sie auf unserer Homepage www.decus.at unter "Service" - "Rechtliches zum FAGG" sowie im Anhang der zugesendeten Objekt-Exposés!
Infrastruktur / Entfernungen
Gesundheit
Arzt <500m
Apotheke <500m
Klinik <500m
Krankenhaus <1.250m
Kinder & Schulen
Schule <1.250m
Kindergarten <250m
Universität <1.000m
Höhere Schule <2.250m
Nahversorgung
Supermarkt <500m
Bäckerei <500m
Einkaufszentrum <2.250m
Sonstige
Geldautomat <1.000m
Bank <1.000m
Post <1.000m
Polizei <1.000m
Verkehr
Bus <250m
Straßenbahn <1.000m
Autobahnanschluss <5.250m
Bahnhof <3.250m
Angaben Entfernung Luftlinie / Quelle: OpenStreetMap
Eckdaten
| Kaufpreis: | 263.985,00 € |
| Fläche: | 54,43 m² |
| Zimmer: | 2 |
Basisdaten zur Immobilie
| Objektnr: | 1149125 |
| Art: | Wohnung - Terrassenwohnung |
| Land: | Österreich |
| Alter: | Altbau |
| Kaufpreis: | 263.985,00 € |
| Kaufpreis / m²: | auf Anfrage |
| Provision: | 3% des Kaufpreises zzgl. 20% USt. |
| Betriebskosten: | 113,09 € |
| MwSt Gesamt: | 11,31 € |
| Nutzfläche: | 54,43 m² |
| Zimmer: | 2 |
| Bäder: | 1 |
| WC: | 1 |
| Terrassen: | 1 |
| Heizwärmebedarf: | E 159,80 kWh/m²a |
| fGEE: | D 1,93 |
Ausstattung
Parkett, Fliesen, Wohnküche / offene Küche, Dusche
Internet und TV
Information zur Internet und TV Versorgung hier
Ihre persönliche Beratung
Katharina Hammerl
DECUS Immobilien GmbH
hammerl@decus.at
+43 660 688 33 43
+43 660 688 33 43
F +43 1 35 600 10
