"Bisambergblick - DG-Terrassen-Traum - Penthouse mit Tiefgaragenplatz"

Wohnung - Maisonette, 1210 Wien

Beschreibung der Immobilie

"Bisambergblick - traumhaftes Penthouse mit exklusiver Dachterrasse"

Bereits der erste Eindruck von dieser Dachgeschoss -Terrassen-Penthouse-Wohnung auf zwei Etagen mit atemberaubendem Fernblick vom Bisamberg bis zum Leopoldsberg lässt auf Exklusivität und das Besondere schließen! Nicht nur die fantastische Lage - am Fuße des Bisambergs mit nahe gelegener Seeschlacht in Langenzersdorf, welche viele Freizeitmöglichkeiten bietet, sowie die beliebten Heurigen in Stammersdorf, als auch die perfekte Anbindung in die Stadt - wird auch Sie von dieser einmaligen Immobilie überzeugen!

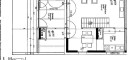
Man fährt mit dem Aufzug in den 4. Stock des erst 2007 errichteten Wohnhauses mit allerlei Annehmlichkeiten wie begrünter Innenhof auf beiden Seiten der Wohnung, Partyraum und Tiefgarage etc. und betritt die exklusive Maisonette-Wohnung mit Vorzimmer und Stiegenaufgang, zwei extra begehbaren Schlafzimmern, einem erstklassig ausgestatteten Badezimmer mit Walk-in-Dusche, Badewanne, Waschtisch und Waschmaschinenanschluss, extra WC mit Waschbecken und Abstellraum.

Die Stiegen hinauf geht es zum Highlight auf oberster Etage im 5. Stock mit geräumigem Wohn-Essbereich und moderner Küche, welche mit Neff- und Siemensgeräten wie Induktionsherd, Backrohr, Kühl-Gefrier-Kombi, Geschirrspüler und Spüle ausgestattet ist. Der obere Wohnbereich ist mit einer Klima-Anlage versehen und die Außenrollos auf beiden französischen Balkonfenstern einmal zum Osten und einmal zum Westen hin ausgerichtet, sorgen für zusätzliche Abschattung im Sommer. Schließlich kommt man zur ca. 30 m² großen Dachterrasse inklusive hochwertigem Wintergarten mit ca. 20 m², der mit Glas-Falttüren und neuer hellgrüner Außenrollo mit Fernbedienung ausgerüstet ist, damit man hier vollen Wohnkomfort nicht nur im Sommer genießen kann, sondern auch das ganze Jahr über den Raum on top für Wohnzwecke nutzen kann. Auf der Terrasse - uneinsichtig - findet locker auch ein Whirlpool Platz und das Hochbeet kann mit Kräutern und Gemüse bepflanzt werden. Die Terrasse mit Ausblick nach Westen lädt zum Chillen nach der Arbeit und der einmalige Fernblick ins Grüne zu den Weinrieden am Bisamberg und Wald am Leopoldsberg sorgt für pure Erholung und Entspannung.

Die relativ niedrigen Betriebskosten von derzeit 155,02 inkl. 10 % Ust. und günstige Beheizung durch Fernwärme stellen ein zusätzliches Plus der Wohnung dar. Ein großer Parkplatz in der Tiefgarage, wo man bequem aus- und einsteigen und laden kann, ist zusätzlich käuflich zu erwerben. Im Haus befindet sich eine Waschküche, ein Fahrrad- und Kinderwagenraum und ein gepflegter Partyraum mit WC - für Kinder und die Bewohner des Hauses!

Die herrliche Lage mit Erholungsmöglichkeiten lädt zum Wandern, Radfahren, Schwimmen usw. Auch zur Donau hat man nicht weit. Die gute Infrastruktur lässt nichts zu wünschen übrig und man ist mit mehreren Buslinien, Straßenbahnlinie 26 und Schnellbahn rasch in der Stadt. Zahlreiche Einkaufsmöglichkeiten befinden sich in der Nähe und sind fußläufig erreichbar. Kindergarten, Schulen (De la Salle - Schulbrüder) befinden sich in unmittelbarer Umgebung. Die gesundheitliche Versorgung mit Ärzten, Spital und Therapeuten ist ebenfalls gegeben. Restaurants und Heurige in Stammersdorf und Langenzersdorf laden zum Genießen und Verweilen!

Lassen Sie sich von diesem traumhaften Dachgeschoss-Terrassen-Penthouse mit fantastischem Ausblick verzaubern und senden Sie gleich Ihre Anfrage!
Der Vermittler ist als Doppelmakler tätig!
Angaben gemäß gesetzlichem Erfordernis:
Heizwärmebedarf:42.0 kWh/(m²a)
Klasse Heizwärmebedarf:B
Faktor Gesamtenergieeffizienz:1.09
Klasse Faktor Gesamtenergieeffizienz:B

Eckdaten

Objektnr: 1626_27322
Art: Wohnung - Maisonette
Land: Österreich
Baujahr: ca. 2007
Zustand: Gepflegt
Kaufpreis: 549.000,00
Provision: 3.00 %
Wohnfläche: 102,00 m²
Zimmer: 4
Bäder: 1
WC: 1
Stellplätze: 1
Heizwärmebedarf:  B  42,00 kWh/m²a
fGEE:  B  1,09
Immobilie merken Exposé

Ausstattung

Zentralheizung, Personenaufzug, Kabel/Satelliten-TV, Garage, Sauna


Internet und TV

Information zur Internet und TV Versorgung hier


Immobilie anfragen


Ihre persönliche Beratung

RE/MAX Wien-Donaustadt

Roswitha Babitsch

RE/MAX Donau-City Immobilien

E rbabitsch@remax-dci.at

H +43699 123 54 975