sanierungsbedürftiges Geschäftslokal im Souterrain – 72 m² Nutzfläche im Altbau mit straßenseitigem Zugang
Halle / Lager / Produktion
- Werkstatt,
1050
Wien
Lage der Immobilie
Fendigasse / Reinprechtsdorfer Straße zwischen Matzleinsdorfer Platz / SiebenbrunnengasseBeschreibung der Immobilie
Geschätzte InteressentInnen!
Zur vereinfachten Abstimmung bitten wir um Übermittlung konkreter Terminvorschläge Ihrerseits über das Kontaktformular oder um telefonische Kontaktaufnahme unter +436601255242.
Herzlichen Dank!
***************************************
Die Werkstatt / Magazin
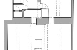
Zum Verkauf steht eine umfassend sanierungsbedürftige Gewerbeeinheit im Souterrain eines gepflegten Altbaus. Die ca. 72 m² große Fläche überzeugt durch eine klare Raumstruktur und einen direkten Zugang von der Straße – mit der aktuellen Widmung als Werkstatt ideal als Verkaufsfläche, Atelier, Lager, etc. . Gastronomie ist leider nicht möglich!
Raumaufteilung:
-
eine großer Hauptraum (ca. 42m²) mit straßenseitigem Zugang & Ausrichtung
-
Magazin- bzw. Lagerräume im rückwärtigen Bereich (ca. 18m²)
-
praktischer Abstellraum
-
minimalistische Kochnische
-
Sanitäreinheit mit mehreren WCs vorhanden
Ausstattung & Merkmale:
-
Souterrainlage mit robustem Altbau-Charme
-
Separater Straßeneingang, gut sichtbar und bequem erreichbar
-
Funktionale Raumstruktur mit klarer Trennung von Arbeits- und Lagerbereichen
-
Gute Belüftungs- und Belichtungsmöglichkeiten
Die Kosten für die Vertragserrichtung betragen 1,5% des Kaufpreises zuzüglich Umsatzsteuer, Notar und Barauslagen.
Die Lage.
In der Fendigasse gelegen, bieten die Wohnungen sowohl eine perfekte Infrastruktur, als auch eine direkte Anbindung an sämtliche öffentliche Verkehrsmittel. Fußläufig erreichen Sie Haltestellen der Buslinie 12A, 14A, 59A (ca. 5 Gehminuten), sowie den Matzleinsdorfer Platz mit Stationen der Straßenbahnlinien 1, 6, 18, 62 und Wiener Lokalbahn (WLB). Die nächste U-Bahn-Station der Linie U4 Margaretengürtel / Pilgramgasse ist blitzschnell mit dem Autobus zu erreichen (ca. 1km).
Entlang der naheliegenden Margaretenstraße und der Reinprechtsdorfer Straße finden Sie neben allen Geschäften des täglichen Bedarfs, Banken, Apotheke, diverse Lokale, Restaurants und Boutiquen. Der nächstgelegene Supermarkt (z.B. Penny, Spar) liegt ca. 300 bis 350m entfernt.
Weiters befinden sich in unmittelbarer Umgebung renommierte Bildungseinrichtungen wie z.B. die HTL Spengergasse oder das Joseph-Haydn-Realgymnasium.
Die Gegend bietet eine hohe Lebensqualität und ist sowohl für Berufspendler als auch für Familien sehr attraktiv.
***************************************
Sollten Sie nach Durchsicht des Inserats eine Besichtigung wünschen, bitten wir um Anfrage über das Kontaktformular.
***************************************
Die zur Verfügung gestellten Informationen beruhen auf die Angaben des Abgebers, der Gemeinde und der Hausverwaltung bzw. der jeweiligen Professionisten. Für die Richtigkeit und Vollständigkeit der Angaben kann keine Gewähr bzw. Haftung übernommen werden.
Bitte beachten Sie, dass unser Unternehmen keine Reisekosten übernimmt, die im Zusammenhang mit der Besichtigung von Immobilien anfallen. Alle anfallenden Kosten für Anreise, Unterkunft und Verpflegung müssen von den Interessenten selbst getragen werden. Des Weiteren übernehmen wir keine Haftung für Kosten, die durch kurzfristige Stornierungen oder Änderungen von Besichtigungsterminen entstehen können. Wir danken Ihnen für Ihr Verständnis.
***************************************
Noch nichts gefunden?
Wir informieren Sie als Erste/r über passende Immobilienangebote.
Legen Sie jetzt Ihren individuellen Suchagenten über folgenden Link an.
Wir senden Ihnen geeignete Immobilien unverbindlich vorab zu.
Suchagent anlegen - https://sulek-immobilien.service.immo/registrieren/de
Der Vermittler ist als Doppelmakler tätig.
Infrastruktur / Entfernungen
Gesundheit
Arzt <500m
Apotheke <500m
Klinik <1.500m
Krankenhaus <1.000m
Kinder & Schulen
Schule <500m
Kindergarten <500m
Universität <1.000m
Höhere Schule <1.000m
Nahversorgung
Supermarkt <500m
Bäckerei <500m
Einkaufszentrum <1.000m
Sonstige
Geldautomat <500m
Bank <500m
Post <500m
Polizei <1.000m
Verkehr
Bus <500m
U-Bahn <500m
Straßenbahn <500m
Bahnhof <500m
Autobahnanschluss <3.500m
Angaben Entfernung Luftlinie / Quelle: OpenStreetMap
Eckdaten
| Kaufpreis: | 125.000,00 € |
| Fläche: | 71,63 m² |
| Zimmer: | 2 |
Basisdaten zur Immobilie
| Objektnr: | 25807 |
| Art: | Halle / Lager / Produktion - Werkstatt |
| Land: | Österreich |
| Baujahr: | 1909 |
| Zustand: | Gepflegt |
| Alter: | Altbau |
| Kaufpreis: | 125.000,00 € |
| Kaufpreis / m²: | 1.745,08 € |
| Provision: | 3% des Kaufpreises zzgl. 20% USt. |
| Betriebskosten: | 150,42 € |
| MwSt Gesamt: | 30,08 € |
| Nutzfläche: | 71,63 m² |
| Zimmer: | 2 |
| Bäder: | 1 |
| WC: | 3 |
| Heizwärmebedarf: | F 215,13 kWh/m²a |
| fGEE: | C 1,42 |
Ausstattung
Teeküche
Internet und TV
Information zur Internet und TV Versorgung hier
Ihre persönliche Beratung
Philipp Renner
Mittelsmann Philipp Sulek GmbH
pr@sulek-immobilien.at
+43 660 125 52 42
