Vielseitiges Gastro- & Investmentobjekt mit Gastgarten 1130 Wien

Halle / Lager / Produktion - Produktion, 1130 Wien , Speisinger Straße

Beschreibung der Immobilie

OBJEKT & NUTZUNG
Ehem. Café-Restaurant mit Gastgarten & Küche
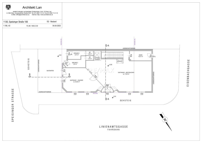
3 Eingänge, von 3 Straßen umgeben
EG: ca. 140 m² Nutzfläche
UG (trocken): ca. 170 m² Nutzfläche (inkl. Partyraum, Lager, Kühlung, Büro)
Gesamtfläche (EG + UG): ca. 310 m²
Gasträume getrennt für Raucher & Nichtraucher
Innen ca. 77 Sitzplätze, Außenbereich (Gastgarten) mit 55 Plätzen
Objekt aktuell nicht in Betrieb – Einrichtung großteils funktionsfähig
Nutzung: Gastronomie, Lieferdienst, Veranstaltungen, Wettbüro, Apartments (Ausbau)

FLÄCHEN & GRUNDSTÜCK
Grundstück: ca. 239 m²
Betriebsfläche: ca. 310 m²
Gastgarten: ca. 55 m²
Stellplätze: 10–12 KFZ-Stellplätze auf Eigengrund

AUSSTATTUNG & TECHNIK
Baujahr: 2003 | Zustand: gepflegt
Bauweise: Ziegelmassiv | Dach: Flachdach
Raumhöhe: ca. 2,80 m
Böden: Estrich, Fliesen, Teppich
Heizung: Gas-Etagenheizung
Belüftung: Mechanische Be- & Entlüftung über Dach
Kühlung vorhanden
Lastenaufzug
Fenster: Kunststoff, Isolierverglasung, Sonnenschutz innen

TECHNIK & INFRASTRUKTUR
Starkstrom vorhanden
Glasfaseranschluss
IT-Verkabelung: Cat 5, 6, 7
Kabel/Sat-TV
Beleuchtung: Arbeitsplatzgerecht
Elektrik: Kabelkanäle UP & Parapet

RECHTLICHES
Eigentum: Alleineigentum
Nutzung: Gewerbe
Beziehbar: ab sofort
Energieausweis: gültig bis 30.11.2026
HWB: D / 97 kWh/m²a

LAGE & VERKEHR
Direkt beim Orthopädischen Spital Speising
Straßenbahnlinie 60 vor der Tür
Buslinien 56B, 58B
Bahnhof Speising fußläufig erreichbar

⭐ EXTRAS & POTENTIAL
Gastterrasse mit 55 Plätzen
Ehemaliges Wettbüro im UG – reaktivierbar
Parkplätze auf Eigengrund
Alarmanlage, Polizeiruf, Videoüberwachung
Abstellräume, Personalräume, Gartennutzung
Catering- & Liefermöglichkeit

👉 Perfekt für Gastronomen, Betreiber oder Investoren. Top-Lage, viele Stammkunden, sofort startklar. Jetzt besichtigen!
Angaben gemäß gesetzlichem Erfordernis:
Heizwärmebedarf:97.0 kWh/(m²a)
Klasse Heizwärmebedarf:D

Interesse am Maklerberuf?
Informationen beim MAKLERFRÜHSTÜCK
am Samstag, Termin nach Vereinbarung um 10.00 Uhr im RE/MAX Büro Schwechat.
Info: office@remax-vital.at oder 01/70 70 900.

Eckdaten

Objektnr: 2434_2106
Art: Halle / Lager / Produktion - Produktion
Land: Österreich
Baujahr: 2003
Alter: Neubau
Kaufpreis: 999.000,00
Kaufpreis / m²: auf Anfrage
Provision: 3.00 %
Nutzfläche: 387,99 m²
Grundstücksfl.: 239,00 m²
Heizwärmebedarf:  D  97,00 kWh/m²a
Immobilie merken Exposé

Ausstattung

Kabel/Satelliten-TV


Internet und TV

Information zur Internet und TV Versorgung hier


Immobilie anfragen


Ihre persönliche Beratung

RE/MAX Vital

Daniel KIS

RE/MAX Vital

E d.kis@remax-vital.at

H +43 664 54 84 256