+ + + BÜROFLÄCHEN IN ZENTRALER INNENSTADTLAGE + + + ST. PÖLTEN + + +
Büro / Praxis
,
3100
St. Pölten
Lage der Immobilie
NÄHE HAUPTBAHNHOFBeschreibung der Immobilie
Objekt und Lage:
Die moderne und gut sichtbare Liegenschaft befindet sich in sehr zentraler Lage, wenige Gehminuten vom Hauptbahnhof entfernt.
Sämtliche Nahversorger für den täglichen Bedarf sind in der Umgebung vorhanden und bestens zu erreichen.
In unmittelbarer Nachbarschaft befinden sich ein Einrichtungshaus und eine Fachmarktzeile entlang der Mariazeller Straße. Im nahen Umkreis gibt es zahlreiche Schulen.
Die beiden hellen und modern ausgestatteten Büroflächen sind ab sofort verfügbar.
Laufzeit: befristete Vermietung
Kaution: je nach Bonität
Provision: 3 Bruttomonatsmieten
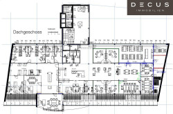
Flächenaufstellung:
Flächengröße, Büro | 3.OG: ca. 890,31 m²
Flächengröße, Büro | DG: ca. 812,68 m² inkl. ca. 88 m² Terrasse
insgesamt: ca. 1.702,99 m² inkl. Terrasse
Die Flächen im 3.OG und im DG können auch getrennt angemietet werden.
Ausstattung:
- öffenbare Fenster
- Hauskühlung, tlw. Kühlung via FanCoils
- CAT5e Verkabelung vorhanden
- Bodendosen
- Zentralheizung
- getrennte Sanitäreinheiten
- Dusche (3.OG)
- tlw. Glastrennwände
- Teppich-/Fliesenboden
- abhängte Spiegelrasterleuchten
- eingerichtete Teeküchen
- Sonnenschutz, manuelle Jalousien
- Personenlift
- barrierefrei
- Büromöbel können übernommen werden
- Fahrradabstellplatz im EG bei Haupteingang
- Innenhof im EG zur Allgemeinnutzung
- Innenfotos | beispielhaft beider Geschosse
Energieausweis liegt vor:
Heizwärmebedarf: 22,7 kWh/m²
Stellplätze:
Hauseigene Tiefgarage
50 Stk. in der Garage verfügbar | € 90,00/Stellplatz/Monat/netto (Parkkarte)
Verkehrsanbindung:
Buslinie 1: Station: Hart / St. Pölten Ghegastraße. Hauptbahnhof in wenigen Gehminuten erreichbar.
Die Auffahrt zur West Autobahn befindet sich südlich der Liegenschaft, die Kremser Schnellstraße ist südöstlich gelegen.
Alle Preisangaben verstehen sich zzgl. der gesetzl. Ust.
Alle Angaben ohne Gewähr, Irrtümer und Änderungen vorbehalten.
Wir weisen darauf hin, dass zwischen dem Vermittler und dem zu vermittelnden Dritten ein familiäres oder wirtschaftliches Naheverhältnis besteht.
Der Vermittler ist als Doppelmakler tätig.
DECUS Immobilien GmbH – Wir beleben Räume
Für weitere Informationen und Besichtigungen steht Ihnen gerne Frau Sonja Macho unter der Mobilnummer +43 664 44 53 56 1und per E-Mail unter macho@decus.at persönlich zur Verfügung.
www.decus.at | office@decus.at
Wichtige Informationen
Bitte beachten Sie, dass per 13.06.2014 eine neue Richtlinie für Fernabsatz- und Auswärtsgeschäfte in Kraft getreten ist.
Ab 1.4.2024 entfallen die Grundbuchs- und Pfandrechtseintragungsgebühren vorübergehend für Eigenheime bis zu einer Bemessungsgrundlage von EUR 500.000,-. Voraussetzung ist das dringende Wohnbedürfnis, ausgenommen davon sind vererbte oder geschenkte Immobilien. Die Befreiung ist jedoch für den Einzelfall zu prüfen, DECUS Immobilien übernimmt hierzu keine Haftung.
Ab 01.07.2023 gilt das Erstauftraggeber-Prinzip bei Wohnungsmietverträgen, ausgenommen davon sind Dienst-/Natural-/Werkswohnungen. Wir dürfen gem. § 17 Maklergesetz darauf hinweisen, dass wir auf die Doppelmaklertätigkeit gem. § 5 Maklergesetz bei Wohnungsmietverträgen verzichten und nur noch einseitig tätig sind (bei den restlichen Vermittlungsarten nicht) und ein wirtschaftliches Naheverhältnis zu unseren Auftraggebern besteht.
Im Falle eines Abschlusses mit Ihnen oder einem von Ihnen namhaft gemachten Dritten bzw. bei beidseitiger Willensübereinstimmung beträgt unser Honorar (lt. Honorarverordnung für Immobilienmakler) 2 Bruttomonatsmieten (BMM) bei Dienst-/Natural-/Werkwohnungen sowie Suchaufträgen, 3 BMM bei Gewerbe-, PKW-, Keller- und Lagermietverträgen sowie bei Kaufobjekten 3 % des Kaufpreises, zuzüglich der gesetzlichen Umsatzsteuer.
Dieses Objekt wird Ihnen unverbindlich und freibleibend angeboten. Oben angeführte Angaben basieren auf Informationen und Unterlagen des Eigentümers und sind unsererseits ohne Gewähr.
Nähere Informationen sowie unsere AGBs und die Nebenkostenübersichtsblatt finden Sie auf unserer Homepage www.decus.at unter "Service" - "Rechtliches zum FAGG" sowie im Anhang der zugesendeten Objekt-Exposés!
Infrastruktur / Entfernungen
Gesundheit
Arzt <500m
Apotheke <500m
Klinik <1.500m
Krankenhaus <2.000m
Kinder & Schulen
Schule <500m
Kindergarten <500m
Universität <1.500m
Höhere Schule <1.000m
Nahversorgung
Supermarkt <500m
Bäckerei <500m
Einkaufszentrum <500m
Sonstige
Bank <500m
Geldautomat <500m
Polizei <500m
Post <500m
Verkehr
Bus <500m
Bahnhof <1.000m
Autobahnanschluss <3.000m
Flughafen <5.500m
Angaben Entfernung Luftlinie / Quelle: OpenStreetMap
Verfügbare Flächen
Stiege/Bauteil
Eckdaten
| Kaltmiete (netto): | 10.971,18 € |
| Fläche: | 812,68 m² |
Basisdaten zur Immobilie
| Objektnr: | 1149353/4 |
| Art: | Büro / Praxis |
| Land: | Österreich |
| Baujahr: | 2007 |
| Alter: | Neubau |
| Kaltmiete (netto): | 10.971,18 € |
| Miete / m²: | 13,00 € - 13,50 € |
| Provision: | 3 Bruttomonatsmieten zzgl. 20% USt. |
| Betriebskosten: | 2.600,58 € |
| Nutzfläche: | 812,68 m² |
| Heizwärmebedarf: | B 22,70 kWh/m²a |
| fGEE: | B 0,90 |
Internet und TV
Information zur Internet und TV Versorgung hier
Ihre persönliche Beratung
Sonja Macho
DECUS Immobilien GmbH
macho@decus.at
+43 664 44 53 56 1
+43 664 44 53 56 1
F +43 1 35 600 10
