Donaustadt - Am langen Felde
Wohnung
- Dachgeschoß,
1220
Wien
Lage der Immobilie
Die fertiggestellten Eigentumswohnungen Am Langen Felde 24 liegen in ausgezeichneter Lage der Donaustadt – nur wenige Minuten von der U1 Kagraner Platz entfernt. Die Umgebung verbindet urbanen Komfort mit naturnaher Erholung: Alte Donau, Lobau, die Blumengärten Hirschstetten und der Badeteich Hirschstetten bieten zahlreiche Freizeitmöglichkeiten im Grünen. Sämtliche Nahversorger, Schulen, Kindergärten und Ärzte sind fußläufig erreichbar. Das nahegelegene Donauzentrum und die hervorragende öffentliche Anbindung sorgen für beste Infrastruktur. Der 22. Bezirk zählt zu den aufstrebendsten Wohngegenden Wiens – eine Wohnung hier steht für hohe Lebensqualität und eine wertbeständige Investition.Beschreibung der Immobilie
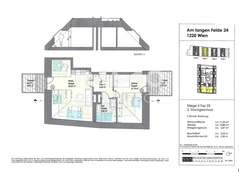
Eckdaten
Objektnr: | 131902_34 |
Art: | Wohnung - Dachgeschoß |
Land: | Österreich |
Baujahr: | 2025 |
Zustand: | Erstbezug |
Kaufpreis: | 576.240,00 € |
Wohnfläche: | 71,09 m² |
Zimmer: | 2 |
Bäder: | 1 |
Terrassen: | 2 |
Heizwärmebedarf: | A 24,40 kWh/m²a |
fGEE: | 0,71 |
Ausstattung
Fußbodenheizung
Internet und TV
Information zur Internet und TV Versorgung hier
Ihre persönliche Beratung

Martin Melcher
IMMOcontract Immobilien Vermittlung GmbH
E M.Melcher@IMMOcontract.at
H 004367761732439