Ein Zuhause am Wasser: Haus mit Garten und bestehendem Wohnrecht an der Neuen Donau
Haus
,
1210
Wien
,
Kugelfanggasse
Lage der Immobilie
U6 Neue DonauBeschreibung der Immobilie
LAGE:
Nur wenige Schritte von der Neuen Donau entfernt gelangt dieses einzigartige Einfamilienhaus zum Verkauf.
INFRASTRUKTUR:
Dieses außergewöhnliche Haus befindet sich in einer der wohl begehrtesten Lagen Wiens – direkt an der Neuen Donau. Nur wenige Schritte trennen Sie vom Wasser – ein absolutes Unikat in der Stadt. Wer hier wohnt, genießt nicht nur die unmittelbare Nähe zur Donau, sondern auch die vielfältigen Freizeitmöglichkeiten, die dieses Naturjuwel bietet: Ob Spazieren, Radfahren, Stand-Up-Paddling, Joggen entlang der Uferwege oder einfach das Sonnenbaden in den großzügigen Grünflächen – hier verbinden sich Erholung und urbanes Leben auf einzigartige Weise.
Die Neue Donau ist weit mehr als ein Ort zum Schwimmen – sie ist ein Lebensgefühl. Morgens bei Sonnenaufgang am Wasser sitzen, abends die Ruhe genießen oder am Wochenende mit dem Fahrrad durch die Donauinsel gleiten – all das ist hier Teil des Alltags.
Trotz der idyllischen Umgebung ist die Anbindung an das öffentliche Verkehrsnetz hervorragend. Die U6-Station "Neue Donau" liegt nur wenige Schritte entfernt – in wenigen Minuten erreichen Sie damit das Stadtzentrum oder andere Bezirke Wiens. Auch mit dem Auto sind Sie bestens angebunden: Die nahegelegene Autobahnauffahrt sorgt für eine schnelle Erreichbarkeit sowohl ins Wiener Zentrum als auch ins Umland oder Richtung Flughafen.
Die Umgebung bietet zudem alles, was man im Alltag braucht – von Nahversorgern bis zu Cafés und Freizeiteinrichtungen. Die Kombination aus Wasser, Natur, Ruhe und perfekter Infrastruktur macht diese Lage zu einer absoluten Rarität auf dem Wiener Immobilienmarkt.
AUSSTATTUNG:
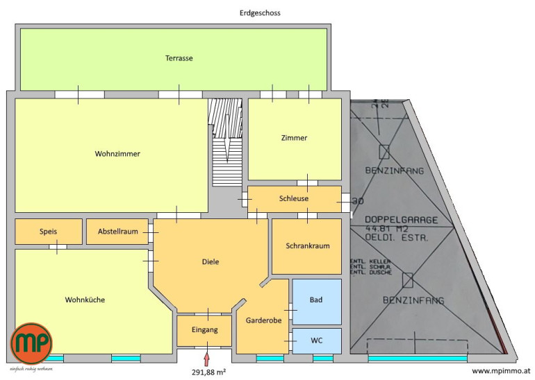
Dieses liebevoll gepflegte Einfamilienhaus präsentiert sich in einem hervorragenden Zustand und wurde über die Jahre laufend modernisiert, wodurch es heutigen Wohnansprüchen in jeder Hinsicht gerecht wird. Auf einem großzügigen Grundstück von ca. 605 m² gelegen, bietet das Haus eine beeindruckende Wohnnutzfläche von rund 290 m², die mit Licht, Raumgefühl und einer durchdachten Aufteilung überzeugt.
Schon beim Betreten des Hauses empfängt Sie ein einladender Eingangsbereich, der ein angenehmes erstes Raumgefühl vermittelt. Von hier aus sind sämtliche Räume zentral begehbar, was eine klare und praktische Struktur schafft.
Die großzügige Einbauküche punktet mit moderner Ausstattung, viel Arbeitsfläche sowie einer gemütlichen Sitzecke – ideal für gemeinsame Mahlzeiten und gesellige Stunden. Das angrenzende Wohnzimmer beeindruckt mit seiner Weitläufigkeit, der angenehmen Raumhöhe und edlen Stuckverzierungen an der Decke, die dem Raum besonderen Charme verleihen.
Ein echtes Highlight ist die stilvolle Terrasse mit angrenzendem Wintergarten, von der aus Sie in den außergewöhnlich schönen, liebevoll angelegten Garten gelangen. Diese grüne Oase ist eine Seltenheit mitten in der Stadt – mit gepflegtem Rasen, üppigem Pflanzenbestand und viel Platz zum Entspannen, Genießen oder Garteln. Ein Rückzugsort mit Urlaubsgefühl – direkt vor der eigenen Tür.
Im Obergeschoss erwarten Sie mehrere helle, freundlich gestaltete Zimmer sowie ein modernes Badezimmer mit luxuriöser Eckbadewanne und Dusche, das zum Wohlfühlen und Entspannen einlädt.
Ein weiteres Plus: Das Haus verfügt über eine eigene Garage, die komfortables Parken garantiert. Im Kellergeschoss befinden sich mehrere praktische Nebenräume sowie die moderne Luftwärmepumpe, die das gesamte Haus effizient und nachhaltig beheizt – eine zukunftsorientierte Lösung mit niedrigem Energieverbrauch.
Bitte beachten Sie, dass die Immobilie mit einem bestehenden Wohnrecht verkauft wird.
Diese Liegenschaft vereint klassischen Charme mit modernen Elementen, ein durchdachtes Raumkonzept mit stilvollen Details – und einen Garten, der in dieser Lage eine absolute Rarität darstellt. Ein Zuhause, das auf ganzer Linie begeistert.
Daten zum Energieausweis wurden bereits angefragt und werden nachgeliefert.
Wir weisen darauf hin, dass zwischen dem Vermittler und dem zu vermittelnden Dritten ein familiäres oder wirtschaftliches Naheverhältnis besteht.
Das Team von MP Immobilien wurde mehrfach mit dem IMMY für beste Qualität ausgezeichnet – profitieren auch Sie davon!
Alle Objekte von MP Immobilien werden mit dem Qualitätsindex überprüft. Es handelt sich um ein System zur übersichtlichen, raschen indexbasierten Bewertung der Immobilie. Der Index setzt sich zusammen aus Lage (Infrastruktur), Licht & Lärm, sowie der Ausstattung.
Infrastruktur / Entfernungen
Gesundheit
Arzt <750m
Apotheke <1.250m
Klinik <1.000m
Krankenhaus <1.750m
Kinder & Schulen
Schule <250m
Kindergarten <750m
Universität <1.000m
Höhere Schule <1.250m
Nahversorgung
Supermarkt <1.000m
Bäckerei <1.250m
Einkaufszentrum <1.250m
Sonstige
Geldautomat <1.250m
Bank <1.250m
Post <1.000m
Polizei <1.500m
Verkehr
Bus <250m
U-Bahn <500m
Straßenbahn <750m
Bahnhof <500m
Autobahnanschluss <250m
Angaben Entfernung Luftlinie / Quelle: OpenStreetMap
Eckdaten
| Kaufpreis: | 1.400.000,00 € |
| Fläche: | 291,88 m² |
| Zimmer: | 6,50 |
Basisdaten zur Immobilie
| Objektnr: | 12113001 |
| Art: | Haus |
| Land: | Österreich |
| Baujahr: | 1991 |
| Zustand: | Modernisiert |
| Alter: | Neubau |
| Kaufpreis: | 1.400.000,00 € |
| Provision: | 50.400,00 € inkl. 20% USt. |
| Wohnfläche: | 291,88 m² |
| Nutzfläche: | 437,65 m² |
| Gesamtfläche: | 437,65 m² |
| Zimmer: | 6,50 |
| Bäder: | 2 |
| WC: | 2 |
| Terrassen: | 1 |
| Keller: | 118,00 m² |
Ausstattung
Fliesen, Parkett, Einbauküche, Bad mit Fenster, Badewanne, Dusche, Kabel/Satelliten-TV
Internet und TV
Information zur Internet und TV Versorgung hier
Ihre persönliche Beratung
GF Michael Pfeifer, MBA, PMM
Mag. Pfeifer Immobilien GmbH.
office@mpimmo.at
0043 664 10 50 393
