Reihenhaus mit Garten: Hand anlegen und Wohnträume schaffen
Haus
- Reihenhaus,
5081
Anif
Lage der Immobilie
Willkommen in der charmanten Gemeinde Anif – einer der exklusivsten und begehrtesten Wohnadressen im Süden von Salzburg. Dieses gepflegte Reihenhaus liegt in ruhiger und sonniger Lage direkt an der Alpenstraße und vereint auf ideale Weise urbanen Komfort mit dem entspannten Flair des ländlichen Lebens.
Anif ist bekannt für seine hohe Lebensqualität, die durch ein harmonisches Zusammenspiel aus Natur, Kultur und erstklassiger Infrastruktur besticht. Die Umgebung ist geprägt von stilvollen Einfamilienhäusern, gepflegten Gärten und eleganten Villen – eine Nachbarschaft, die sowohl Ruhe als auch ein angenehmes, gehobenes Wohnumfeld bietet. Direkt angrenzend befindet sich ein weitläufiger Landschaftsgürtel mit Wiesen, Feldern und Spazierwegen, der zu erholsamen Stunden im Grünen einlädt.
Trotz der idyllischen Lage genießen Sie hier eine hervorragende Anbindung an die Stadt Salzburg. Die historische Altstadt mit ihrem reichhaltigen kulturellen Angebot, vielfältigen Einkaufsmöglichkeiten und renommierten Bildungseinrichtungen ist in wenigen Autominuten erreichbar. Auch der öffentliche Nahverkehr ist bestens ausgebaut und bringt Sie bequem in alle Richtungen.
In unmittelbarer Umgebung finden Sie alles für den täglichen Bedarf: Bäckereien, charmante Cafés, ausgezeichnete Restaurants, Banken, Apotheken und ärztliche Versorgung – alles in wenigen Gehminuten erreichbar. Kindergärten, Schulen sowie Freizeiteinrichtungen wie das Schloss Hellbrunn mit seinen Wasserspielen oder der Zoo Salzburg befinden sich ebenfalls in nächster Nähe.
Anif bietet damit eine einzigartige Kombination aus naturnahem, entspanntem Wohnen und städtischer Nähe – ein idealer Rückzugsort für Familien, Berufstätige und Ruhesuchende gleichermaßen.
Beschreibung der Immobilie
Dieses gepflegte und charmante Reihenhaus befindet sich in begehrter Lage von Anif, einer beliebten Wohngegend südlich der Stadt Salzburg. Das Haus wurde im Jahr 1953 erbaut und überzeugt durch seinen durchdachten Grundriss, den wohnlichen Charakter und mit direktem Zugang zu Grünland.
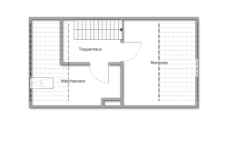
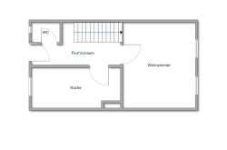
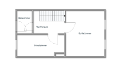
Das Haus erstreckt sich über vier Etagen – Erdgeschoss, Obergeschoss, ausgebautes Dachgeschoss und Kellergeschoss – und bietet somit viel Platz für individuelle Wohnbedürfnisse, Familienleben oder auch Homeoffice-Lösungen.
Das Dachgeschoss ist ausgebaut und als Wäscheboden genehmigt. Offiziell nicht als Wohnraum.
Wir weisen auf ein wirtschaftliches Naheverhältnis und unsere Tätigkeit als Doppelmakler hin.
Eckdaten
| Kaufpreis: | 399.000,00 € |
| Fläche: | 72,00 m² |
| Zimmer: | 3 |
Basisdaten zur Immobilie
| Objektnr: | 0003002877 |
| Art: | Haus - Reihenhaus |
| Land: | Österreich |
| Baujahr: | 1953 |
| Kaufpreis: | 399.000,00 € |
| Provision: | 3% des Kaufpreises plus 20% USt. |
| Wohnfläche: | 72,00 m² |
| Nutzfläche: | 144,00 m² |
| Grundstücksfl.: | 219,00 m² |
| Gesamtfläche: | 144,00 m² |
| Zimmer: | 3 |
| Bäder: | 1 |
| WC: | 1 |
| Terrassen: | 1 |
| Garten: | 160,00 m² |
| Keller: | 36,00 m² |
| Heizwärmebedarf: | E 153,00 kWh/m²a |
| fGEE: | D 2,34 |
Ausstattung
Gas, Zentralheizung, Einbauküche, Bad mit Fenster, Badewanne
Internet und TV
Information zur Internet und TV Versorgung hier
Ihre persönliche Beratung
Lukas Schubert
Raiffeisen Salzburg
lukas.schubert@immoraiffeisen.at
+436646271937
+43 664 6271937
