Exklusive Traumwohnung am Sonnenhang
Wohnung
- Etage,
4810
Gmunden
Beschreibung der Immobilie
Ein Leben in lichtdurchfluteter Eleganz, umgeben von Natur, Ruhe und einem atemberaubenden Ausblick – genau das erwartet Sie in dieser exklusiven Mietwohnung in einer der besten Lagen Gmundens.
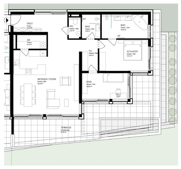
- 110 m² Wohnfläche mit durchdachtem Grundriss
- 41 m² Südwest-Terrasse mit traumhaftem Seeblick auf den Traunsee
- 2 Tiefgaragenplätze inklusive
- Miete: € 3.254,55,– monatlich inkl. Betriebskosten und Heizung
- Erstbezug ab September 2025
Inmitten der prestigeträchtigen Wohnlage m Sonnenhang bietet diese Wohnung in einem topmodernen Neubau alles, was anspruchsvolle Mieter suchen: klare Architektur, hochwertigste Materialien, barrierefreier Zugang und eine Ruheoase mit spektakulärer Aussicht. Die großzügige Terrasse lädt dazu ein, Sonnenuntergänge mit Blick auf Schloss Ort und das Höllengebirge zu genießen.
Die Wohnung ist mit einer neuen, modernen Küche ausgestattet und wartet mit durchgängig edler Ausstattung auf: rahmenlose Alu-Fenster von Josko, elegante Parkettböden, Design-Bäder und Glasgeländer unterstreichen den exklusiven Wohncharakter.
Das Projekt SUNSET² setzt auf Nachhaltigkeit: eine gemeinschaftliche Photovoltaikanlage, energieeffiziente Wärmepumpentechnologie mit Tiefenbohrung und Kühldecken mit Betonkernaktivierung sorgen für ein angenehmes Raumklima – Sommer wie Winter – bei gleichzeitig niedrigen Energiekosten.
Wichtige Hinweise:
- Keine Haustiere erlaubt
- Ruhige, naturnahe Lage am Ostufer des Traunsees
- Barrierefrei und altersgerecht
| Angaben gemäß gesetzlichem Erfordernis: | |||
| Miete | € | 2208,4 | zzgl 10% USt. |
| Betriebskosten inkl Heizkosten | € | 585,31 | |
| Autoabstellplatz | € | 200 | zzgl 20% USt. |
| Umsatzsteuer | € | 260,84 | |
| ------------------------------------------------------------------ | |||
| Gesamtbetrag | € | 3254,55 | |
| ------------------------------------------------------------------ | |||
| Heizwärmebedarf: | 42.3 kWh/(m²a) | ||
| Klasse Heizwärmebedarf: | B | ||
Für weitere Fragen oder eine gemeinsame Besichtigung steht Ihnen Herr Christian Sammer unter der Nummer 0650 31 71 003 gerne zur Verfügung.
Eckdaten
| Objektnr: | 1068_5034 |
| Art: | Wohnung - Etage |
| Land: | Österreich |
| Baujahr: | 2023 |
| Zustand: | Erstbezug |
| Alter: | Neubau |
| Gesamtmiete: | 3.254,55 € |
| Kaltmiete (netto): | 2.208,40 € |
| Kaltmiete: | 3.254,55 € |
| Wohnfläche: | 110,42 m² |
| Zimmer: | 3 |
| Bäder: | 2 |
| WC: | 1 |
| Terrassen: | 1 |
| Stellplätze: | 2 |
| Garten: | 122,21 m² |
| Keller: | 13,60 m² |
| Heizwärmebedarf: | B 42,30 kWh/m²a |
Ausstattung
Erdwärme, Zentralheizung, Personenaufzug, Garage
Internet und TV
Information zur Internet und TV Versorgung hier
Ihre persönliche Beratung
Christian Sammer
RE/MAX Traunsee
E c.sammer@remax-traunsee.at
T +07612/892 32232
H +43 650 31 71 003
F +43 7612 89 232-30