3-Zimmer-Wohnung mit 2 Bädern – Erstbezug in den DC Flats - zu mieten in 1220 Wien
Wohnung
- Etage,
1220
Wien
Lage der Immobilie
Finden Sie die perfekte Infrastruktur. Die ideale öffentlichen Anbindung, fußläufig erreichbare U-Bahn-Stationen und Buslinien, schneller Zugang zur Donauuferautobahn, zahlreiche Einkaufsmöglichkeiten und Gastronomie finden Sie in unmittelbarer Nachbarschaft. Sportbegeisterte und Naturliebhaber finden, bequem erreichbar, ein 21km langes Radfahr- und Wanderparadies sowie den Donaustrand der nahe gelegenen CopaBeach mit seinen vielfältigen Lokalen vor.Beschreibung der Immobilie
Eckdaten
| Gesamtmiete: | 2.300,00 € |
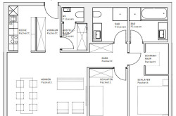
| Fläche: | 91,91 m² |
| Zimmer: | 3 |
Basisdaten zur Immobilie
| Objektnr: | 109256406 |
| Art: | Wohnung - Etage |
| Land: | Österreich |
| Baujahr: | 2025 |
| Zustand: | Erstbezug |
| Möbliert: | Teil |
| Gesamtmiete: | 2.300,00 € |
| Kaltmiete (netto): | 1.817,02 € |
| Kaltmiete: | 2.300,00 € |
| Provision: | provisionsfrei für den Mieter |
| Betriebskosten: | 273,89 € |
| Wohnfläche: | 91,91 m² |
| Zimmer: | 3 |
| Bäder: | 2 |
| WC: | 1 |
| Heizwärmebedarf: | A 19,12 kWh/m²a |
| fGEE: | A 0,83 |
Ausstattung
Parkett, Fernwärme, Einbauküche, Badewanne, Dusche
Internet und TV
Information zur Internet und TV Versorgung hier
Ihre persönliche Beratung
Elena Pfurtscheller, BA
ÖRAG Immobilien Vermittlung GmbH
elena.pfurtscheller@oerag.at
0043153473280
