Mi Living- Hochwertige Eigentumswohnungen nähe Hauptbahnhof

Wohnung , 1100 Wien , Josef-Deutsch-Strasse 3

Beschreibung der Immobilie

Objektbeschreibung: In der Josef-Deutsch-Straße 3-5 befinden sich 164 exklusive Eigentumswohnungen, die höchsten Wohnkomfort mit moderner Architektur und urbaner Lebensqualität vereinen. Die Wohnungen überzeugen durch durchdachte Grundrisse, eine hochwertige Ausstattung und lichtdurchflutete Räume, die eine offene und einladende Wohnatmosphäre schaffen. Die großzügigen Freiflächen in Form von Loggien, Balkonen oder Terrassen bieten atemberaubende Ausblicke über die Stadt und laden zum Entspannen ein. Hochwertiges Wohnen im Erstbezug Das exklusive Neubauprojekt bietet Wohnungen mit Wohnflächen zwischen ca. 44 m² und ca. 149 m², ideal für anspruchsvolle Singles, Paare und Familien. Die Einheiten verfügen über 2 bis 4 Zimmer, die flexibel gestaltet und individuell genutzt werden können.Die modernen Grundrisse maximieren die Wohnqualität und bieten ausreichend Platz für persönliche Entfaltung. Durch großzügige Fensterflächen werden die Räume mit natürlichem Licht durchflutet und schaffen ein angenehmes Wohngefühl. Ausstattung & Wohnkomfort Jede Wohnung wurde in hochwertiger Erstbezugsqualität errichtet und überzeugt durch eine exzellente Ausstattung:-) Moderne Architektur mit lichtdurchfluteten Räumen-) Deckenheizung/Kühlung, die für ein angenehmes Wohnklima sorgt-) Hochwertige Parkettböden in den Wohnräumen für ein stilvolles Ambiente-) Edle Badezimmer mit großformatigen Fliesen und stilvoller Ausstattung-) Großzügige Freiflächen (Loggien, Balkone oder Terrassen) für erholsame Stunden im Freien-) Durchdachte Raumaufteilung für eine optimale Nutzung der Wohnfläche Urbanes Wohnen mit bester Infrastruktur Das Wohnprojekt überzeugt nicht nur durch seine hochwertige Ausstattung, sondern auch durch seine hervorragende Lage. Der Wiener Hauptbahnhof sowie die U1-Station Keplerplatz befinden sich in unmittelbarer Nähe und bieten eine optimale Anbindung an das Stadtzentrum. Einkaufsmöglichkeiten, Schulen, Kindergärten und medizinische Einrichtungen sind bequem erreichbar. Parkmöglichkeiten & Kaufpreise Für zusätzlichen Komfort stehen den zukünftigen Bewohnern 17 KFZ-Garagenstellplätze zur Verfügung. Die Wohnungen sind zu attraktiven Kaufpreisen zwischen EUR 335.000,- und EUR 1.080.000,- erhältlich. Bezugstermin Die exklusiven Dachgeschosswohnungen sind bezugsfertig – sichern Sie sich schon jetzt Ihr neues Zuhause mit unvergleichlichem Wohnkomfort in einer der aufstrebendsten Wohngegenden Wiens! Ausstattung: Beschattung: alle Wohnungen sind mit mittels elektrisch bedienbaren Außenraffstores ausgestattet Kühlung: Die Dachgeschoss-Wohnungen sind zusätzlich mit je einer Split-An-lage zum Kühlen ausgestattet. Je Wohnküche bzw. Zimmer (Aufenthaltsraum) ist ein Innengerät vorgesehen. Das dazugehörige Außengerät je Wohnung befindet sich am Dach. Heizungsart: Die Beheizung/Temperierung erfolgt über die thermische Bauteilaktivierung der Stahlbetondecken (Change-Over-System – Zeitpunkte Umschaltung Frühjahr für Temperieren sowie Herbst für Heizen sind außentemperaturabhängig). Im Badezimmer wird keine Bauteilaktivierung ausgeführt, stattdessen erfolgt hier die Beheizung mittels elektrischem Wandheizkörper. Warmwasseraufbereitung: Zentrale Warmwasseraufbereitung über die Fernwärmeversorgung. Wärmeversorgung: Die Liegenschaft wird mit Fernwärme versorgt. Temperierung: Die Temperierung der Wohnungen erfolgt über Luftwärmepumpen, wobei die Außengeräte am Dach und die Pufferspeicher und Verteilung (Change-Over) in der Technikzentrale im Untergeschoß situiert sind. Das exklusive Wohnprojekt in der Josef-Deutsch-Straße 3-5, befindet sich in einer der bestangebundenen Lage in Favoriten. Die Umgebung bietet eine ideale Mischung aus urbanem Flair, erstklassiger Infrastruktur und Erholungsmöglichkeiten. Energiekennzahl: HWB 25,2 kWh/m²/Jahr (Energieklasse B) Lagebeschreibung: Hervorragende Verkehrsanbindung Dank der Nähe zum Wiener Hauptbahnhof sind Sie optimal an das öffentliche Verkehrsnetz angebunden. Die U1-Station Südtirolerplatz ist in wenigen Gehminuten erreichbar und ermöglicht eine schnelle Verbindung in die Wiener Innenstadt. Zusätzlich sorgen mehrere Straßenbahn- und Buslinien für eine bequeme Mobilität innerhalb des Bezirks und darüber hinaus. Umfassende Infrastruktur In unmittelbarer Umgebung finden sich zahlreiche Einkaufsmöglichkeiten, darunter die Favoritenstraße als beliebte Einkaufsstraße mit einer Vielzahl an Geschäften, Supermärkten und Gastronomiebetrieben. Das nahegelegene Einkaufszentrum Wien Hauptbahnhof bietet eine breite Auswahl an Einzelhandel, Restaurants und Dienstleistern. Erholungs- und Freizeitmöglichkeiten Der Helmut-Zilk-Park in unmittelbarer Nähe lädt zu Spaziergängen, sportlichen Aktivitäten oder entspannten Stunden im Grünen ein. Zusätzlich bietet das Theresienbad eine Möglichkeit für Erholung und Sport. Bildung und Gesundheit Mehrere Schulen, Kindergärten sowie medizinische Einrichtungen, Apotheken und das Sozialmedizinische Zentrum Süd – Kaiser-Franz-Josef-Spital befinden sich in kurzer Distanz. Diese Kombination aus urbaner Infrastruktur, Naherholung und ausgezeichneter Verkehrsanbindung macht die Lage der exklusiven Dachgeschosswohnungen zu einer besonders attraktiven Wohnadresse in Wien.

Eckdaten

Objektnr: 141/83487
Art: Wohnung
Land: Österreich
Kaufpreis: 488.000,00
Provision: 3%
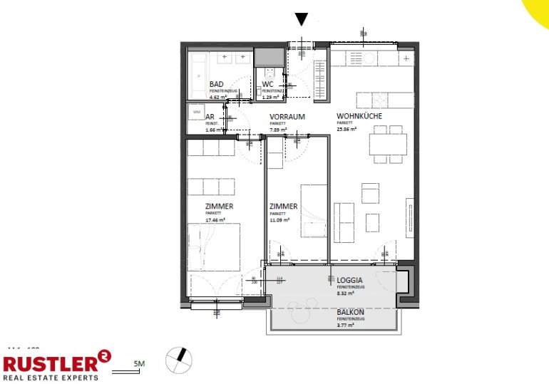
Wohnfläche: 78,19 m²
Zimmer: 3
Bäder: 1
WC: 1
Balkone: 1
Heizwärmebedarf:  A  21,30 kWh/m²a
fGEE:  A  0,75
Immobilie merken Exposé

Ausstattung

Personenaufzug


Internet und TV

Information zur Internet und TV Versorgung hier


Immobilie anfragen


Ihre persönliche Beratung

Rustler Immobilientreuhand

Veronika Vollmann

Rustler Immobilientreuhand

E vvollmann@rustler.eu

T +43 676 834 34667

H +43 676 834 34 667