Green Living
Wohnung
- Erdgeschoß,
2700
Wiener Neustadt
Lage der Immobilie
Wohnen in zentraler Lage von Wiener Neustadt, wo sich Komfort und Stadtleben vereinen - nur wenige Gehminuten von der beliebten Merkur City entfernt.Beschreibung der Immobilie
Ein neues Kapitel beginnt – mitten in Wiener Neustadt
Inmitten der lebendigen Kulisse von Wiener Neustadt entsteht ein Wohnprojekt, das zeitgemäßes Leben neu definiert. Erstbezug, durchdachte Architektur und eine zentrale Lage schaffen den idealen Rahmen für ein Zuhause, das sowohl Komfort als auch Charakter bietet. Es eröffnet Ihnen die Chance, einen neuen Lebensabschnitt zu beginnen – stilvoll, komfortabel und ganz nach Ihren Vorstellungen.
Wohneinheiten im Überblick:
- Wohnungsgrößen ca. 55-90 m²
- 2 - 4 Zimmer
- mit Balkon oder Terrasse und Privatgarten
- Auto- und Motorradabstellplatz in der Tiefgarage
Ausstattungsdetails:
- Böden: Parkett in Küche, Wohnbereich und Abstellraum, Bodenfliesen in Vorraum, WC und Badezimmer
- Fenster: Kunststoff-Alu Fenster mit 3-Scheiben-Isolierverglasung mit außenliegendem Sonnenschutz
- Wärmeversorgung durch Fernwärme - Übertragung durch Fußbodenheizung mit Einzelraumregelung
- Personenaufzug
- Fahrradräume und Kinderwagenabstellräume im Erdgeschoss
- Einlagerungsräume, Waschküchen und Fahrradabstellräume im Kellergeschoss
- Kinderspielplatz
- Photovoltaik-Anlage zur Stromversorgung der Allgemeinbereiche
Freizeitmöglichkeiten in Wiener Neustadt:
Natur & Erholung: Freiheitspark (ca. 600 m Entfernung), Akademiepark (ca. 1,5 km Entfernung), Stadtpark (ca. 2 km Entfernung)
Sport & Bewegung: Aqua Nova (ca. 4 km Entfernung), Akademiebad (ca. 1,5 km Entfernung), Rosaliaradweg (36 km langer Radweg, der Wiener Neustadt mit dem Burgenland verbindet), Fußball- und Tennisplätze, zahlreiche Spazierwege in den Parks
Verkehrsanbindung:
Bus: Die Buslinie 4 bietet eine direkte Verbindung zu den wichtigsten Knotenpunkten in Wiener Neustadt. Zu ihren Haltestellen zählen unter anderem der Hauptbahnhof, der Hauptplatz, der Fischapark sowie die Merkurcity. Der Hauptbahnhof ist in rund 20 Minuten damit erreichbar. Die Linie verkehrt im 30-Minuten-Takt.
Die Haltestelle, welche die Buslinien 1A, 1B, 3, 7 und 8 anfahren, sind in nur 5 Gehminuten erreichbar und bieten ebenfalls bequeme Verbindungen in die umliegenden Stadtteile.
Hauptbahnhof Wiener Neustadt: Die Entfernung des Bahnhofs beträgt ca. 3 km und kann sowohl mit dem Auto als auch mit den oben genannten Buslinien erreicht werden. Von dort bestehen regelmäßige Zugverbindungen nach Wien, Graz und in andere Regionen Österreichs.
Autobahn: Die Auffahrt zur Mattersburger Schnellstraße S4 ist in nur 5 Minuten mit dem Auto erreichbar und bietet eine schnelle Verbindung zur B17 sowie zur A2.
Lage: In der unmittelbaren Umgebung finden Sie alles, was Sie für den täglichen Bedarf benötigen. Ärzte, Apotheken, ein Krankenhaus, Schulen und Kindergärten sind nur wenige Minuten entfernt. So können Sie sicher sein, dass die wichtigen Dinge des Lebens direkt vor Ihrer Haustür liegen. Für Ihre Einkäufe stehen Ihnen mehrere Supermärkte, eine Bäckerei und das Einkaufszentrum Merkur City, welches sich in direkter Nähe befindet, zur Verfügung.
Gerne stehe ich Ihnen für eine persönliche Beratung zur Verfügung!
Ausstattung gemäß Baubeschreibung (die dargestellte Möblierung ist nicht Bestandteil des Lieferumfanges und dient nur als Einrichtungsvorschlag). Alle dargestellten Gegenstände haben symbolhaften Charakter. Druck- und Satzfehler, sowie Irrtümer und baulich bedingte Änderungen vorbehalten. Die Wohnungsgrößen sind Circa-Angaben und können sich durch die Detailplanung geringfügig ändern. Maßgeblich ist in jedem Fall der Kaufvertrag.
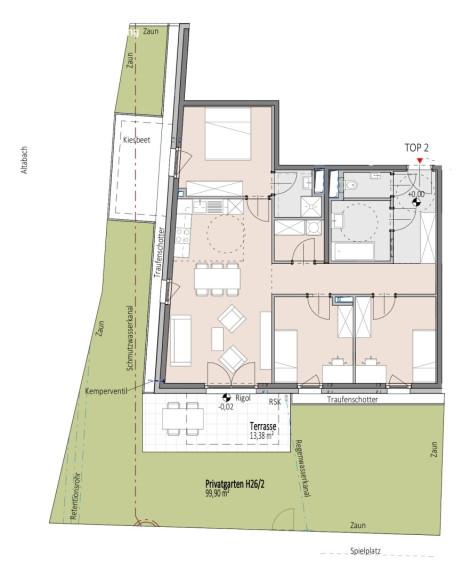
Haus 10, Top 2 (Erdgeschoß)
- Vorraum
- WC
- Badezimmer (Badewanne)
- Gang
- Zimmer 3 mit rd. 11 m²
- Zimmer 2 mit rd. 10 m²
- Abstellraum mit Waschmaschinenanschluss
- Wohnküche mit rd. 29 m², Ausgang auf Terrasse
- Zimmer 1 mit rd. 12 m² und
eigenem Badezimmer (Dusche) - Privatgarten mit rd. 100 m² und rd. 13 m² Terrasse
- Einlagerungsraum in Untergeschoß rd. 4 m²
- 2 KFZ-Stellplätze in Tiefgarage, über Stiegenhaus und Lift gut erreichbar
Gesamtkaufpreis € 515.200,-
Wohnung € 481.200,- plus zwei KFZ-Tiefgaragenstellplätze um je € 17.000,-
Provisionsfreier Verkauf
Hier kommen Sie zur 360 Grad-Besichtigung.
Noch nichts gefunden? Wir informieren Sie über geeignete Immobilienangebote noch vor allen anderen.
Legen Sie jetzt Ihren individuellen Suchagenten unter folgendem Link an. Wir schicken Ihnen passende Immobilien exklusiv vorab zu.
Suchagent anlegen - https://s-commerz-immobilienvermittlung.service.immo/registrieren/de
Infrastruktur / Entfernungen
Gesundheit
Arzt <1.000m
Apotheke <500m
Klinik <2.500m
Krankenhaus <1.000m
Kinder & Schulen
Schule <500m
Kindergarten <1.000m
Höhere Schule <1.500m
Universität <2.000m
Nahversorgung
Supermarkt <500m
Bäckerei <500m
Einkaufszentrum <500m
Sonstige
Bank <500m
Geldautomat <500m
Post <500m
Polizei <1.000m
Verkehr
Bus <500m
Autobahnanschluss <3.000m
Bahnhof <1.500m
Flughafen <2.500m
Angaben Entfernung Luftlinie / Quelle: OpenStreetMap
Eckdaten
| Objektnr: | 3492 |
| Art: | Wohnung - Erdgeschoß |
| Land: | Österreich |
| Baujahr: | 2025 |
| Zustand: | Erstbezug |
| Alter: | Neubau |
| Kaufpreis: | 481.200,00 € |
| Betriebskosten: | 465,42 € |
| Wohnfläche: | 89,35 m² |
| Zimmer: | 4 |
| Bäder: | 2 |
| WC: | 1 |
| Terrassen: | 1 |
| Garten: | 99,90 m² |
| Keller: | 3,67 m² |
| Heizwärmebedarf: | B 27,40 kWh/m²a |
| fGEE: | A+ 0,66 |
Ausstattung
Fliesen, Parkettboden, Fußbodenheizung, Personenaufzug, Badewanne, Dusche, Tiefgarage, Wasch/Trockenraum
Internet und TV
Information zur Internet und TV Versorgung hier
Ihre persönliche Beratung
Nina LANG
S-COMMERZ Immobilienvermittlung GmbH
n.lang@s-commerz.at
+43 50100 672 789
+43 664 834 8168
