| BALKON | OSTSEITIG | 2 ZIMMER | BETREUTES WOHNEN | SENIORVITA | BRUNN AM GEBIRGE
Wohnung
- Etage,
2345
Brunn am Gebirge
,
Wiener Straße
Lage der Immobilie
Das Projekt befindet sich im Herzen von Brunn am Gebirge, einer charmanten Marktgemeinde im Bezirk Mödling. Diese zentrale Lage bietet eine hervorragende Infrastruktur und zahlreiche Annehmlichkeiten in unmittelbarer Nähe. Einkaufsmöglichkeiten sind in wenigen Gehminuten erreichbar (am nächsten: Billa). Das Ärztezentrum sowie Geschäfte des täglichen Bedarfs wie Apotheken, Banken und die Post sind schnell erreichbar. Verkehrsanbindung: - Bahnhof Brunn am Gebirge mit Verbindungen nach Wien und Wiener Neustadt - Bushaltestellen, die den Ort mit den umliegenden Gemeinden vernetzen - Buslinien 207, 259, 260 vor der Tür - Autobahnen A21, A2 und A3Beschreibung der Immobilie
Mehr Lebensqualität im Alter – Wohnen mit Wohlfühlfaktor!
Seniorenwohnen in zentraler Lage in Brunn am Gebirge. In der Leopold-Gattringer-Straße befindet sich eine barrierefreie Wohnhausanlage mit 27 Wohnungen im Bestand sowie 17 weitere Wohnungen in der Wiener Straße, welches mit Q3 2025 fertiggestellt ist.
Im Projekt SeniorVita wird ein sicherer Ort geschaffen, an dem ältere Menschen selbstbestimmt in Ihrer individuellen Wohnung leben können und gleichzeitig Unterstützung im Alltag durch die Betreuungspersonen vor Ort genießen dürfen.
Unsere MieterInnen bekommen Zugang zu einer Gemeinschaft, die sich gegenseitig stärkt und stützt. Durch die Betreuungspersonen werden Veranstaltungen zur körperlichen und geistigen Mobilisierung organisiert, welche die Geselligkeit im Haus stärkt.
Die Kosten für das Betreuungspaket werden vom Vermieter übernommen, solange es keine öffentliche Förderung gibt.
Hard Facts
- 44 Wohnungen
- Größen von 35 – 109 m²
- Balkon, Loggia, Terrasse, Garten
- Bezugsfertig ab sofort (Neubau mit Ende 2025)
- Zentrale Lage in Brunn am Gebirge
Für erfahrene Menschen, die in einer modernen, barrierefreien Wohnung leben und Ihren Alltag selbstständig gestalten möchten, bietet Betreutes Wohnen eine ideale Wohnform. Die Betreuungspersonen vor Ort bieten die gewisse Sicherheit sowie Betreuungsleistungen nach Bedarf. In dem Projekt SeniorVita soll den BewohnerInnen ein langes und selbstbestimmtes Leben in einer eigenen Wohnung geboten werden.
Unter die Leistungen der BetreuerInnen fallen unter Anderem folgende Services:
- Regelmäßige persönliche Kontaktaufnahme
- Organisation gemeinschaftlicher Aktivitäten und Events im Haus
- Organisation von Dienstleistungen (Pflege, Therapie, Transporte)
- Anlaufstelle und erster Ansprechpartner bei Fragen des Alltags
- Unterstützung bei technischen Problemen im Alltag
Verschaffen Sie sich selbst einen Eindruck vor Ort und lernen Sie das Haus, die BetreuerInnen und die BewohnerInnen kennen.
Betreuung durch die Barmherzigen Schwestern
Im Projekt SeniorVita wird Wohnen mit den Leistungen des Betreuungspersonals der Barmherzigen Schwestern kombiniert. Diese stehen für soziale, technische und medizinische Betreuung werktags zur Verfügung.
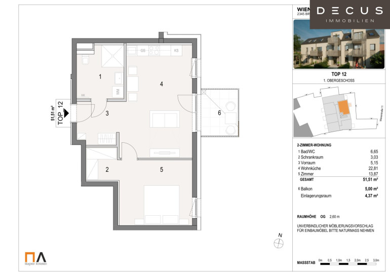
Top 12 befindet sich im 1. Obergeschoß, ist ostseitig ausgerichtet und teilt sich wie folgt auf:
- Vorraum
- Bad mit WC und Dusche
- Abstellraum
- Wohnküche mit Essbereich
- Schlafzimmer
- Balkon
Hinweis gemäß Energieausweisvorlagegesetz: Ein Energieausweis wurde vom Eigentümer bzw. Verkäufer, nach unserer Aufklärung über die generell geltende Vorlagepflicht, sowie Aufforderung zu seiner Erstellung noch nicht vorgelegt. Daher gilt zumindest eine dem Alter und der Art des Gebäudes entsprechende Gesamtenergieeffizienz als vereinbart. Wir übernehmen keinerlei Gewähr oder Haftung für die tatsächliche Energieeffizienz der angebotenen Immobilie.
Der Immobilienmakler erklärt, dass er – entgegen dem in der Immobilienwirtschaft üblichen Geschäftsgebrauch des Doppelmaklers – einseitig nur für den Vermieter tätig ist.
DECUS Immobilien GmbH – Wir beleben Räume
Für weitere Informationen und Besichtigungen steht Ihnen gerne Frau Jasmin Heida unter der Mobilnummer +43 660 850 78 07und per E-Mail unter heida@decus.at persönlich zur Verfügung.
www.decus.at | office@decus.at
Wichtige Informationen
Bitte beachten Sie, dass per 13.06.2014 eine neue Richtlinie für Fernabsatz- und Auswärtsgeschäfte in Kraft getreten ist.
Ab 1.4.2024 entfallen die Grundbuchs- und Pfandrechtseintragungsgebühren vorübergehend für Eigenheime bis zu einer Bemessungsgrundlage von EUR 500.000,-. Voraussetzung ist das dringende Wohnbedürfnis, ausgenommen davon sind vererbte oder geschenkte Immobilien. Die Befreiung ist jedoch für den Einzelfall zu prüfen, DECUS Immobilien übernimmt hierzu keine Haftung.
Ab 01.07.2023 gilt das Erstauftraggeber-Prinzip bei Wohnungsmietverträgen, ausgenommen davon sind Dienst-/Natural-/Werkswohnungen. Wir dürfen gem. § 17 Maklergesetz darauf hinweisen, dass wir auf die Doppelmaklertätigkeit gem. § 5 Maklergesetz bei Wohnungsmietverträgen verzichten und nur noch einseitig tätig sind (bei den restlichen Vermittlungsarten nicht) und ein wirtschaftliches Naheverhältnis zu unseren Auftraggebern besteht.
Im Falle eines Abschlusses mit Ihnen oder einem von Ihnen namhaft gemachten Dritten bzw. bei beidseitiger Willensübereinstimmung beträgt unser Honorar (lt. Honorarverordnung für Immobilienmakler) 2 Bruttomonatsmieten (BMM) bei Dienst-/Natural-/Werkwohnungen sowie Suchaufträgen, 3 BMM bei Gewerbe-, PKW-, Keller- und Lagermietverträgen sowie bei Kaufobjekten 3 % des Kaufpreises, zuzüglich der gesetzlichen Umsatzsteuer.
Dieses Objekt wird Ihnen unverbindlich und freibleibend angeboten. Oben angeführte Angaben basieren auf Informationen und Unterlagen des Eigentümers und sind unsererseits ohne Gewähr.
Nähere Informationen sowie unsere AGBs und die Nebenkostenübersichtsblatt finden Sie auf unserer Homepage www.decus.at unter "Service" - "Rechtliches zum FAGG" sowie im Anhang der zugesendeten Objekt-Exposés!
Infrastruktur / Entfernungen
Gesundheit
Arzt <250m
Apotheke <500m
Klinik <3.000m
Krankenhaus <2.250m
Kinder & Schulen
Schule <250m
Kindergarten <250m
Universität <9.000m
Höhere Schule <3.750m
Nahversorgung
Supermarkt <750m
Bäckerei <250m
Einkaufszentrum <2.250m
Sonstige
Bank <250m
Geldautomat <250m
Post <250m
Polizei <750m
Verkehr
Bus <250m
U-Bahn <3.250m
Straßenbahn <3.500m
Bahnhof <250m
Autobahnanschluss <1.250m
Angaben Entfernung Luftlinie / Quelle: OpenStreetMap
Eckdaten
| Objektnr: | 1148588 |
| Art: | Wohnung - Etage |
| Land: | Österreich |
| Gesamtmiete: | 995,01 € |
| Kaltmiete (netto): | 775,55 € |
| Kaltmiete: | 904,55 € |
| Provision: | Gemäß Erstauftraggeberprinzip bezahlt der Abgeber die Provision. |
| Betriebskosten: | 129,00 € |
| MwSt Gesamt: | 90,46 € |
| Wohnfläche: | 51,51 m² |
| Zimmer: | 2 |
| Bäder: | 1 |
| WC: | 1 |
| Balkone: | 1 |
| Keller: | 4,37 m² |
Ausstattung
Fliesen, Parkett, Fußbodenheizung, Zentralheizung, Einbauküche, Wohnküche / offene Küche, Personenaufzug, Dusche, Betreutes Wohnen, Tiefgarage
Internet und TV
Information zur Internet und TV Versorgung hier
Ihre persönliche Beratung
Jasmin Heida
DECUS Immobilien GmbH
E heida@decus.at
T +43 660 850 78 07
H +43 660 850 78 07
F +43 1 35 600 10
