Gewerbefläche mit vielseitigen Nutzungsmöglichkeiten
Sonstige
- Sonstige,
6322
Kirchbichl
Lage der Immobilie
Kirchbichl ist eine Gemeinde im Bezirk Kufstein in Tirol und hat ca. 6.031 Einwohner (Stand 1.1.2025). Die Gemeinde ist sehr zentral gelegen, mittig zwischen Kufstein und Wörgl und grenzt an den Luftkurort Bad Häring.
Sämtliche Einrichtungen des täglichen Bedarfes z.B. diverse Einkaufsmöglichkeiten, verschiedene Ärzte, Kindergärten, Schulen sowie Gastronomiebetriebe sind im Ort vorhanden.
Ein umfassendes Freizeitangebot bietet ganzjährig zahlreiche Erholungs- und Sportmöglichkeiten inmitten herrlicher Natur. Besonders Familien schätzen das Moorstrandbad, eines der wärmsten Freibäder Tirols.
Die gute Anbindung an öffentliche Verkehrsmittel sowie die Nähe zur Autobahn gehören ebenfalls zu den Vorzügen der Gemeinde.
Die Städte München, Salzburg sowie Innsbruck sind mit dem Auto innerhalb einer Stunde bequem erreichbar.
Beschreibung der Immobilie
Attraktives Gewerbeobjekt in zentraler Lage von Kirchbichl
Ab September 2025 steht eine großzügige Gewerbefläche zur Vermietung frei, die sich ideal für eine Vielzahl von Nutzungen anbietet, z.B. als Verkaufsraum, Geschäftsfläche, Studio, Praxis, Atelier, Startups.
Die Miete in Höhe von€ 2.300,- wird netto ausgewiesen; die Umsatzsteuer ist zusätzlich zu entrichten.
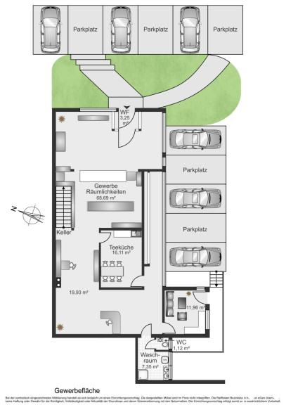
Flächenaufteilung:
- Erdgeschoss: Nutzfläche von ca. 180 m² mit Teeküche, Waschraum, WC sowie
- Souterrain von ca. 40 m², bestens geeignet für Lagerzwecke
Besondere Merkmale:
- 10 Parkplätze direkt vor dem Haus; anmietbar: €20,- netto/Monat je Stellplatz
- Barrierefreier Zugang
- Große Schaufensterfront für exzellente Präsentations- und Ausstellungsmöglichkeiten
Hier finden Sie den passenden Raum für Ihre Ideen - zögern Sie nicht und verwirklichen Sie Ihren Traum vom eigenen Business.
Der ideale Standort direkt an der Straße und die gleichzeitige Zentrumsnähe vereinen beste Verkehrsanbindungen und hohe Kundenfrequenz.
Wir freuen uns auf Ihre Anfrage!
Eckdaten
| Gesamtmiete: | 2.550,00 € |
| Fläche: | 220,00 m² |
Basisdaten zur Immobilie
| Objektnr: | 0009000505 |
| Art: | Sonstige - Sonstige |
| Land: | Österreich |
| Gesamtmiete: | 2.550,00 € |
| Kaltmiete (netto): | 2.300,00 € |
| Kaltmiete: | 2.527,27 € |
| Provision: | 2 Bruttomonatsmieten plus 20% USt. |
| Betriebskosten: | 227,27 € |
| Nutzfläche: | 220,00 m² |
| Bäder: | 1 |
| WC: | 1 |
| Heizwärmebedarf: | D 110,00 kWh/m²a |
Ausstattung
Fußbodenheizung
Internet und TV
Information zur Internet und TV Versorgung hier
Ihre persönliche Beratung
Andrea Steiner
Raiffeisen Tirol Kufstein
andrea.steiner@rbk.at
50182
+43 5372 200-50182
