Top A-07: Außergewöhnliches Neubauprojekt in Top-Lage vor den Toren Wiens
Wohnung
,
2500
Baden
,
Helenenstraße 1
Lage der Immobilie
Nähe Doblhoffpark / Zentrum / AltstadtBeschreibung der Immobilie
Luxuriöse Eigentumswohnungen in Baden bei Wien!
HELENE – ein exklusives Neubauprojekt in malerischer Umgebung vor den Toren Wiens.
DAS WUNDERBARE FLAIR DER BADENER ALTSTADT SPIEGELT SICH AUCH IN DEM BAUPROJEKT HELENE WIDER.
Am Beginn der Helenenstraße, gleich neben dem Doblhoffpark und am Rand der historischen Badener Altstadt entsteht ein außergewöhnliches Neubauprojekt mit verzaubernden Luxuseigentumswohnungen.
SO FEINSINNIG UND GESCHMACKVOLL -VERSEHEN MIT EINEM HAUCH KAISERLICHER ELEGANZ.
Auf zwei elegante Stadtvillen teilen sich insgesamt 16 Luxus-Eigentumswohnungen auf, jeweils mit einladenden Freiflächen wie Gärten, Balkone oder Terrassen, auf.
2 Stadtvillen / 16 Eigentumswohnungen / 16 Tiefgaragenplätze.
Größen von 77m² bis 169m² / mit 3 bis 5 Zimmer / Eigengärten, Terrassen oder Balkone.
DIE SEELE BAUMELN LASSEN - GARTENFREUDEN SPÜREN.
Inmitten von prächtigem Grün- eine großzügige Gartenanlage umschließt die beiden Stadtvillen. Man trifft sich unter freiem Himmel, am Vorplatz, auf der Kinderspielwiese, am Lieblingsplatz mit Blick auf die Schwechat oder beim Sonne tanken im Doblhoffpark.
INNENSTADTFLAIR INHALIEREN - VILLENARCHITEKTUR GENIESSEN
An einer der besten Adressen Badens, gleich ums Eck des liebenswerten Stadtkerns lädt dieses Projekt zum Flanieren, Kurbaden und Kulturgenießen ein.
HELENE fügt sich harmonisch ins Stadtbild ein und spiegelt Elemente der historischen Badener Villenarchitektur wider. Das gemeinsam mit der Stadt Baden entwickelte Konzept ist eine Hommage an die herrschaftlichen Stadthäuser.
NACHHALTIGKEIT LEBEN
Ein großer, versiegelter Parkplatz weicht dem puren Leben. Die Flächen werden aufgebrochen und das Abbruchmaterial recycelt. Neue Grünbereiche entstehen. Und auch die Gebäude selbst stecken voller Nachhaltigkeit – von der hochwertigen Ziegelbauweise bis zur effizienten Fernwärmeheizung.
GENUSSVOLL WOHNEN – HISTORISCHES ERLEBEN
Harmonie und Ausgewogenheit gewähren modernsten Wohnkomfort. Inmitten abwechslungsreicher Alltagsgenüsse. Im kaiserlichen Ambiente der Altstadt flanieren. Das UNESCO-Welterbe spüren. Biedermeierliche Kaffeehausatmosphäre genießen. Oder mit der Badener-Bahn schnell angebunden, die prachtvolle Hauptstadt WIEN erkunden.
WIR LADEN SIE EIN
Genießen Sie einen ersten Blick auf HELENE. Entdecken Sie ihre inneren und äußeren Werte und lassen Sie sich nachhaltig begeistern!
Für Fragen, bzw. Vereinbarung eines Beratungstermins stehen wir Ihnen gerne zur Verfügung.
Sie denken über den Verkauf Ihrer Immobilie nach?
Wir erzielen für Sie den bestmöglichen Preis – professionell, diskret und effizient.
Auf Wunsch kümmern wir uns auch um Finanzierung, Versicherung und alle weiteren Schritte.
Jetzt unverbindlich anfragen!
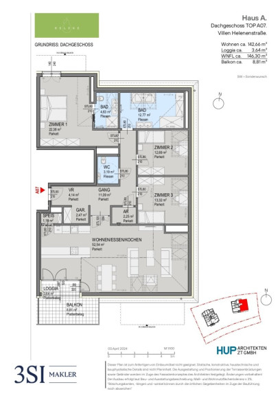
Top (Haus A) 07 - Dachgeschoß
Diese moderne 4-Zimmer-Dachgeschoßwohnung verfügt über rund 142,66m² Wohnfläche zzgl. rund 12,45m² Loggia-+/Balkonfläche, sowie rund 9m² Balkonfläche . Sie besticht durch ihren durchdachten Grundriss und teilt sich wie folgt auf:
- Vorraum
- 2 WCs
- 2 Abstellräume teilw. mit Waschmaschinenanschluss
- Wohnküche mit Zugang zum südseitigen Balkon
- 3 Schlafzimmer
- 2 Badezimmer mit Wanne und Dusche
Diese Wohnung eignet sich sowohl als Anlageobjekt für die Vermietung sowie zur Nutzung als gemütliches Eigenheim.
Der Verkaufspreis für Eigennutzer beträgt EUR 998.000,--.
Der Verkaufspreis für Anleger beträgt EUR 948.100,-- zzgl. 20% USt.
Zusätzlich ist dieser Wohnung bereits ein eigener KFZ-Stellplatz mit der Nr. 1 in der hauseigenen Garage zugewiesen und wird zu folgenden Konditionen mitverkauft:
- STANDARD: um EUR 26.400,00 zzgl. 20% USt. (für Anleger) bzw. um € 29.000,- (für Eigennutzer)
Abwicklung & Nebenkosten:
Das Projekt wird unter Zugrundelegung des Bauträgervertragsgesetzes (BTVG), sowie des Wohnungseigentumsgesetzes (WEG) in der jeweils geltenden Fassung abgewickelt.
Die Vertragserrichtung und Treuhandabwicklung ist gebunden an die Kanzlei Wurst & Ströck Rechtsanwälte Partnerschaft - RA Dr. Stefan Wurst und RA Mag. Martin Ströck, Mahlerstraße 5 in 1010 Wien.
Der guten Ordnung halber halten wir fest, dass, sofern im Angebot nicht anders vermerkt, bei erfolgreichem Abschlussfall eine Provision anfällt, die den in der Immobilienmaklerverordnung BGBI. 262 und 297/1996 festgelegten Sätzen entspricht – das sind 3 % des Kaufpreises zzgl. 20 % USt. Diese Provisionspflicht besteht auch dann, wenn Sie die Ihnen überlassenen Informationen an Dritte weitergeben. Letztlich weisen wir darauf hin, dass wir als Doppelmakler tätig sind.
Der Vermittler ist als Doppelmakler tätig.
Infrastruktur / Entfernungen
Gesundheit
Arzt <225m
Apotheke <450m
Klinik <225m
Krankenhaus <2.225m
Kinder & Schulen
Schule <150m
Kindergarten <75m
Höhere Schule <8.625m
Universität <9.050m
Nahversorgung
Supermarkt <525m
Bäckerei <525m
Einkaufszentrum <5.550m
Sonstige
Bank <475m
Geldautomat <475m
Polizei <950m
Post <700m
Verkehr
Bus <50m
Bahnhof <600m
Autobahnanschluss <3.925m
Straßenbahn <600m
Flughafen <5.150m
Angaben Entfernung Luftlinie / Quelle: OpenStreetMap
Eckdaten
| Kaufpreis: | 948.100,00 € |
| Fläche: | 141,55 m² |
| Zimmer: | 4 |
Basisdaten zur Immobilie
| Objektnr: | 20930 |
| Art: | Wohnung |
| Land: | Österreich |
| Baujahr: | 2026 |
| Zustand: | Erstbezug |
| Alter: | Neubau |
| Kaufpreis: | 948.100,00 € |
| Kaufpreis / m²: | auf Anfrage |
| Provision: | 3% des Kaufpreises zzgl. 20% USt. |
| Wohnfläche: | 141,55 m² |
| Nutzfläche: | 154,00 m² |
| Zimmer: | 4 |
| Bäder: | 2 |
| WC: | 2 |
| Balkone: | 1 |
| Keller: | 9,52 m² |
| Heizwärmebedarf: | B 32,00 kWh/m²a |
| fGEE: | A 0,75 |
Ausstattung
Parkett, Estrichboden, Fliesen, Fernwärme, Fußbodenheizung, Zentralheizung, Wohnküche / offene Küche, Personenaufzug, Südbalkon, Badewanne, Dusche, Kabel/Satelliten-TV, Garage
Internet und TV
Information zur Internet und TV Versorgung hier
Ihre persönliche Beratung
Georg Mels-Colloredo
3SI Makler GmbH
g.mels-colloredo@3si.at
+43 1 607 58 58 - 51
+43 676 79 05 825
F +43 1 607 55 80
