Mostviertler Vierkanthof

Haus - Bauernhaus, 3324 Euratsfeld

Lage der Immobilie

Euratsfeld – Wo das Leben Wurzeln schlägt und die Seele aufblüht

Eingebettet in die sanft geschwungenen Hügel des Mostviertels, liegt Euratsfeld – ein Ort, der nicht nur geografisch, sondern auch emotional das Herz Niederösterreichs berührt. Wer hierher zieht, entscheidet sich bewusst für ein Leben im Einklang mit der Natur, getragen von einer starken Dorfgemeinschaft und gestützt durch eine moderne Infrastruktur.

Lebensqualität mit Weitblick

Euratsfeld ist mehr als ein Wohnort – es ist ein Lebensgefühl. Die klare Luft, das satte Grün der umliegenden Wälder und Wiesen und die Ruhe, die nur von Vogelgezwitscher und dem leisen Plätschern des Baches unterbrochen wird, schaffen eine Atmosphäre, in der man tief durchatmen und ankommen kann. Familien, Senioren und junge Paare finden hier gleichermaßen ein Zuhause, das Geborgenheit und Perspektive bietet.

Wohnen mit Vielfalt

Ob geförderte Eigentumswohnung, charmantes Einfamilienhaus oder moderne Genossenschaftswohnung – Euratsfeld bietet ein breites Spektrum an Wohnmöglichkeiten. Die Gemeinde unterstützt aktiv durch Förderprogramme und sorgt für eine solide Grundversorgung mit Strom, Internet und öffentlicher Infrastruktur. Die Nähe zur Bezirkshauptstadt Amstetten garantiert zudem eine ausgezeichnete Anbindung an das regionale und überregionale Verkehrsnetz.

Infrastruktur, die verbindet

Kindergarten, Volksschule, Nahversorger, Ärzte und eine Vielzahl an Vereinen – Euratsfeld ist bestens ausgestattet für den Alltag. Die Gemeinde legt großen Wert auf Bildung, Sicherheit und soziale Angebote. Auch für Pendler ist der Ort attraktiv: Die Westbahnstrecke und die Autobahn A1 sind in wenigen Minuten erreichbar.

Freizeit & Natur – ein Paradies für Entdecker

Ob Wandern, Radfahren oder einfach nur Spazierengehen – die Umgebung lädt zu jeder Jahreszeit zum aktiven Erleben ein. Zahlreiche Vereine, kulturelle Veranstaltungen und das rege Dorfleben sorgen dafür, dass man sich schnell integriert und wohlfühlt. Die Nähe zur Donau und zu den Alpen eröffnet zudem vielfältige Freizeitmöglichkeiten – von der gemütlichen Mostheurigenrunde bis zum sportlichen Wochenendausflug.

Fazit:

Euratsfeld ist ein Ort, an dem man nicht nur wohnt, sondern lebt. Wer hierher kommt, findet nicht nur ein Dach über dem Kopf, sondern ein Zuhause für Herz und Seele – mit Raum zum Wachsen, Wurzeln schlagen und Aufblühen.

Beschreibung der Immobilie

Historischer Vierkanthof mit Weitblick – Wohnen und Leben im Herzen des Mostviertels

Euratsfeld | ca. 270 m² Wohnfläche | 2 Wohneinheiten | 1 ha Grünland | Maschinenhalle | Stallungen

Ein Ort, an dem Geschichte spürbar wird und Zukunft Raum findet: Dieser prachtvolle, typisch mostviertler Vierkanthof aus dem 18. Jahrhundert vereint ländliche Idylle mit modernem Wohnkomfort – eingebettet in die sanfte Hügellandschaft von Euratsfeld, mit einem Ausblick, der vom Mostviertel bis ins ferne Mühlviertel reicht.

Wohnen mit Charakter und Geschichte

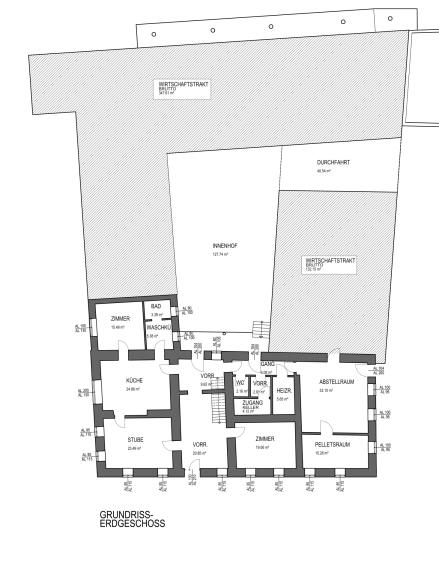
Die Wohnfläche von rund 270 m² verteilt sich auf zwei getrennt nutzbare Wohneinheiten – ideal für Mehrgenerationenwohnen oder zur Kombination von Wohnen und Arbeiten. Der Hof befindet sich in sehr gutem Bauzustand und ist sofort bezugsbereit. Eine moderne Pelletsheizung sorgt für wohlige Wärme und effiziente Energieversorgung.

Besonders hervorzuheben ist die historische Holztramdecke in der gemütlichen Stube – ein architektonisches Schmuckstück, das die lange Geschichte des Hauses, die sich bis ins Jahr 1750 zurückverfolgen lässt, eindrucksvoll widerspiegelt. Die großzügige Wohnküche mit traditionellem Holzofen lädt zum Kochen, Genießen und Beisammensein ein.

Platz für Familie, Tiere und Träume

Mit zahlreichen Zimmern bietet das Haus ausreichend Raum für eine große Familie. Die vorhandenen Stallungen eignen sich hervorragend für die Haltung von Nutz- und Haustieren – vom Huhn bis zum Pferd. Das rund 1 Hektar große Grünland mit gepflegtem Obstgarten ist im Kaufpreis inkludiert und eröffnet vielfältige Nutzungsmöglichkeiten – ob Selbstversorgung, Tierhaltung oder einfach als private Oase im Grünen.

Wirtschaftsgebäude mit Potenzial

Ein weiteres Highlight ist die zweigeschossige Maschinenhalle mit jeweils 120 m² Nutzfläche pro Ebene – ideal für landwirtschaftliche Nutzung, Werkstatt, Lager oder kreative Projekte.

Rechtliches & Kaufabwicklung

Der Erwerb dieser Liegenschaft bedarf der Bewilligung durch die Grundverkehrskommission.

Die Preisfindung erfolgte auf Basis eines Sachverständigengutachtens, was Transparenz und Fairness garantiert.

Fazit:

Ein Vierkanthof wie aus dem Bilderbuch – mit Seele, Substanz und spektakulärem Ausblick. Für Menschen, die das Echte suchen, das Ursprüngliche schätzen und das Landleben in seiner schönsten Form leben möchten.

Eckdaten

Objektnr: 0001010478
Art: Haus - Bauernhaus
Land: Österreich
Kaufpreis: 590.000,00
Provision: 3% des Kaufpreises plus 20% USt.
Wohnfläche: 270,00 m²
Nutzfläche: 1.876,00 m²
Grundstücksfl.: 10.140,00 m²
Zimmer: 9
Bäder: 2
WC: 2
Balkone: 1
Heizwärmebedarf:  F  235,00 kWh/m²a
fGEE:  E  2,64
Immobilie merken Exposé

Ausstattung

Heizofen, Zentralheizung, Einbauküche, Wohnküche / offene Küche, Bad mit Fenster, Badewanne, Dusche


Internet und TV

Information zur Internet und TV Versorgung hier


Immobilie anfragen


Ihre persönliche Beratung

Raiffeisen Immobilien Vermittlung Ges.m.b.H

Reinhard Gansch

Raiffeisen Immobilien Vermittlung

E reinhard.gansch@riv.at

T +43517517

H +43 664 60 517 517 58