FERIENHAUS FÜR SCHÖNE STUNDEN
Haus
- Einfamilienhaus,
3193
Sankt Aegyd am Neuwalde
Beschreibung der Immobilie
Einfamilienhaus / Ferienhaus in idyllischer Lage – sofort bezugsbereit!
Objektbeschreibung
Dieses gepflegte Einfamilienhaus in ruhiger Lage von St. Aegyd am Neuwalde bietet Ihnen ein sofort bezugsfertiges Zuhause – ideal als Hauptwohnsitz oder Ferienimmobilie.
Das Haus wurde 1997 umfassend kernsaniert und befindet sich in sehr gutem Zustand. Die Raumaufteilung ist durchdacht, der Garten und die überdachte Laube bieten zusätzlichen Wohnkomfort im Grünen.
Eckdaten
- Objekttyp: Einfamilienhaus / Ferienhaus
- Baujahr 1952 - Generalssanierung 1997
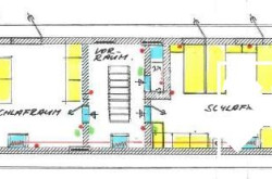
- Wohnfläche gesamt: ca. 91,6 m²
- Nutzfläche (Garage mit Laube): ca. 32 m²
- Grundstück:
eben - eingezäunt - nicht vermessen
- Parkplätze: 1 Garagenplatz + 1 Außenstellplatz
- Nutzung: Private Nutzung, sofort beziehbar
Außenbereich
- Garage mit angrenzender überdachter Laube (ca. 32 m²)
- Gepflegter kleiner Garten
- Stellplatz direkt beim Haus
Lage & Infrastruktur
St. Aegyd am Neuwalde ist eine beliebte Gemeinde in den niederösterreichischen Voralpen – ideal für Naturfreunde und Erholungssuchende.
- Zentrale Lage im Ort
- Nahversorgung, Bank, Schule und Gastronomie fußläufig erreichbar
- Verkehrsanbindung über die B23 – ca. 1 Stunde nach St. Pölten
- Freizeit: Wandern, Radfahren, Langlaufen;
💶 Anbotspreis: € 198.000,–
Kontakt – Exklusiver Vermittlungsauftrag
Thomas Plesiutschnig, akad. IM
📧 thomasplesiutschnig@riv.at
📞 0664 / 605 17 51764
Eckdaten
| Kaufpreis: | 198.000,00 € |
| Fläche: | 91,60 m² |
| Zimmer: | 3 |
Basisdaten zur Immobilie
| Objektnr: | 0001010510 |
| Art: | Haus - Einfamilienhaus |
| Land: | Österreich |
| Kaufpreis: | 198.000,00 € |
| Provision: | 3% des Kaufpreises plus 20% USt. |
| Wohnfläche: | 91,60 m² |
| Nutzfläche: | 32,00 m² |
| Grundstücksfl.: | 632,00 m² |
| Zimmer: | 3 |
| Bäder: | 1 |
| WC: | 1 |
| Terrassen: | 1 |
| Heizwärmebedarf: | D 123,00 kWh/m²a |
| fGEE: | D 2,35 |
Ausstattung
Elektro, Zentralheizung
Internet und TV
Information zur Internet und TV Versorgung hier
Ihre persönliche Beratung
Thomas Plesiutschnig
Raiffeisen Immobilien Vermittlung
thomas.plesiutschnig@riv.at
+43517517
+43 664 60 517 517 64
