Modernes Leben zwischen Stadt und Natur – Ihr neues Zuhause in der Donaustadt
Wohnung
- Dachgeschoß,
1220
Wien
,
Khuenweg 5
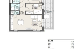
Beschreibung der Immobilie
Eckdaten
| Kaufpreis: | 292.040,00 € |
| Fläche: | 43,55 m² |
| Zimmer: | 2 |
Basisdaten zur Immobilie
| Objektnr: | 141/83721 |
| Art: | Wohnung - Dachgeschoß |
| Land: | Österreich |
| Baujahr: | 2025 |
| Alter: | Neubau |
| Kaufpreis: | 292.040,00 € |
| Provision: | 3% |
| Wohnfläche: | 43,55 m² |
| Zimmer: | 2 |
| Bäder: | 1 |
| WC: | 1 |
| Terrassen: | 1 |
| Heizwärmebedarf: | B 29,70 kWh/m²a |
| fGEE: | A+ 0,60 |
Internet und TV
Information zur Internet und TV Versorgung hier
Ihre persönliche Beratung
Fabian Doll
Rustler Immobilientreuhand
Doll@rustler.eu
+43 676 834 34703
+43 676 834 34 703
