Top 01 - exklusiver Neubau in Schiefling
Wohnung
,
9535
Schiefling am See
Beschreibung der Immobilie
Stilvolles Wohnen mit Charme, Geschichte und Weitblick
PROVISIONSFREI FÜR DEN KÄUFER
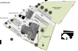
Insgesamt stehen 11 Wohneinheiten zum Verkauf!
Mit viel Sorgfalt und einem feinen Gespür für Qualität wird dieses einmalige Objekt derzeit umfassend modernisiert – und zu einem Ort, an dem zeitgemäßes Wohnen, durchdachte Architektur und ein besonderes Wohngefühl harmonisch aufeinandertreffen. Inmitten einer reizvollen Naturlandschaft entstehen hier exklusive Wohnungen, die höchste Ansprüche an Komfort, Ästhetik und Nachhaltigkeit erfüllen.
MODERNES WOHNEN IM HISTORISCHEN AMBIENTE
Diese Immobilie vereint gekonnt den Charme seiner historischen Bausubstanz mit den Ansprüchen modernen Wohnens. Die Wohnungen entstehen in hochwertiger Ziegelmassivbauweise – eine Bauweise, die für exzellente Energieeffizienz, Langlebigkeit und ein angenehmes Raumklima sorgt. Große Fensterflächen durchfluten die Räume mit natürlichem Licht und bieten herrliche Ausblicke auf die umliegende Natur.
AUSSTATTUNG DIE ÜBERZEUGT
Die Wohnqualität zeigt sich nicht nur in der Bauweise, sondern in jedem Detail:
- Fußbodenheizung sorgt für behagliche Wärme in allen Räumen
- Fernwärme garantiert eine umweltfreundliche und zuverlässige Energieversorgung
- Barrierefreiheit ist durch einen modernen Aufzug auf alle Etagen gegeben
- Inklusive Küche: Jede Wohnung wird mit einer hochwertigen Einbauküche ausgestattet. Diese ist im Kaufpreis enthalten und wird individuell mit dem Käufer nach Abschluss des Kaufvertrags geplant – so entsteht Ihre persönliche Traumküche, ganz nach Ihren Vorstellungen.
PRAKTISCH & DURCHDACHT: Carport & Lagerraum inklusive
Zu jeder Wohneinheit gehört ein fixer Carport-Stellplatz und ein freier Abstellplatz – komfortabel und witterungsgeschützt. Darüber hinaus ist im angrenzenden Nebengebäude ein eigener Lagerraum für jede Wohnung vorgesehen, ideal für zusätzlichen Stauraum oder Hobbyausrüstung.
SIE HABEN EIN E-AUTO? KEIN PROBLEM - eine E-Ladestation wird Ihnen bereit gestellt
LAGE MIT LEBENSQUALITÄT
Die Lage überzeugt durch ihre angenehme Ruhe und Naturnähe – ohne dabei auf gute Erreichbarkeit zu verzichten. Die umliegenden Ortschaften, Einkaufsmöglichkeiten und wichtige Infrastruktur sind schnell erreichbar. Ob als Lebensmittelpunkt für Familien, als ruhiger Rückzugsort für Berufstätige oder als stilvoller Alterssitz – diese Immobilie bietet Flexibilität und Lebensqualität für jede Lebensphase.
- Velden ca. 10 Minuten
- Villach ca. 25 Minuten
- Klagenfurt ca. 30 Minuten
- Saissersee ca. 15 Minuten
Beliebte Touren für Naturliebhaber:
- Forstseerunde mit Abstecher zur Josefikapelle
- Wörthersee Rundwanderweg
- Schluchtenweg
- Saissersee Runde
- Der Drauradweg führt direkt durch Schiefling am See
VIELLEICHT BALD IHR NEUES ZU HAUSE
Erleben Sie eine einzigartige Kombination aus Geschichte, Wohnkomfort und ländlicher Idylle. Lassen Sie sich von der hochwertigen Ausstattung und der durchdachten Planung begeistern und vereinbaren Sie gleich einen Besichtigungstermin.
Eckdaten
| Kaufpreis: | 265.174,00 € |
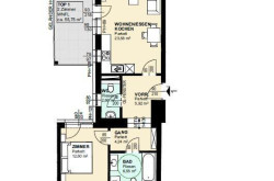
| Fläche: | 55,75 m² |
| Zimmer: | 2 |
Basisdaten zur Immobilie
| Objektnr: | 00150010160001 |
| Art: | Wohnung |
| Land: | Österreich |
| Kaufpreis: | 265.174,00 € |
| Wohnfläche: | 55,75 m² |
| Lagerfläche: | 5,79 m² |
| Zimmer: | 2 |
| Bäder: | 1 |
| WC: | 1 |
| Terrassen: | 1 |
| Heizwärmebedarf: | C 59,00 kWh/m²a |
| fGEE: | B 0,96 |
Ausstattung
Fernwärme, Einbauküche, Personenaufzug
Internet und TV
Information zur Internet und TV Versorgung hier
Ihre persönliche Beratung
Mag. Kerstin Rauter
Raiffeisen Kärnten
kerstin.rauter@rbmk.at
+4357743100
+4366488453108
