+ + + DONAUFELDERHOF + + + NÄHE U1 KAGRAN + + + Lager- und Büroflächen + + +
Büro / Praxis
,
1220
Wien
Beschreibung der Immobilie
HINWEIS:
Bitte nur SCHRIFTLICHE ANFRAGEN mit Angabe der vollständigen Firmen- und Kontaktdaten und Bekanntgabe, ob es sich um ein Bestandsunternehmen (neuer oder zusätzlicher Standort) oder eine Neugründung handelt, sowie um genaue Informationen zum gewünschten Nutzungskonzept.
+ + + + + + + + + + + + + + +
Objekt und Lage:
Als Siegerprojekt des ersten Wiener Bauträgerwettbewerbes wurde der Donaufelderhof 1999 im 22. Gemeindebezirk errichtet.
Auf 7 Stiegen, die um einen großzügig begrünten Innenhof situiert sind, entstanden insgesamt 212 Wohnungen, 253 PKW Stellplätze und rund 4.600 m² Gewerbeflächen.
In der Nähe der Anlage, die über einen eigenen Sport- und Freizeitbereich verfügt, befinden sich ein Kindergarten und mehrere Schulen.
Das "Donauzentrum" mit seiner vielfältigen Infrastruktur liegt in unmittelbarer Nähe der Anlage.
Unweit entfernt liegt auch das Naherholungsgebiet Alte Donau.
Sportplatz am Dach als besonderes Asset.
Die nächste U-Bahn-Haltestelle "Kagran" der Linie U1 ist in wenigen Gehminuten erreichbar und bietet eine sehr gute Anbindung an das Stadtzentrum von Wien.
Weiters stehen zahlreiche Straßenbahn- und Buslinien in der unmittelbaren Umgebung zur Verfügung.
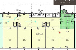
In dem Haus stehen 2 EG-Lagerflächen im Ausmaß von ca. 330 m² und ca. 1.440 m² (verbindbar zu ca. 1.770 m²), sowie Büroflächen im Ausmaß von ca. 320 bis ca. 1.380 m² zur Anmietung zur Verfügung.
- Innenfotos und Pläne der Lagerflächen: auf Anfrage
- Anmerkung: die ca. 330 m² Lagerfläche wird derzeit nicht separat vergeben. Evidenz-Anfragen möglich, wir setzen Sie auf eine Liste - wenn gewünscht. Besichtigungen dieser Einheit werden derzeit nicht durchgeführt.
Energieausweis liegt vor:
Heizwärmebedarf: 91kWh/m².
Stellplätze:
Tiefgarage im Haus | € 75,00/Stellplatz/Monat/netto
Verkehrsanbindung:
U1 Station Kagran, Straßenbahn Linie 2, 25, 26, Autobus Linie 27A, 22A
Alle Preisangaben verstehen sich zzgl. der gesetzl. Ust.
Alle Angaben ohne Gewähr, Irrtümer und Änderungen vorbehalten.
Wir weisen darauf hin, dass zwischen dem Vermittler und dem zu vermittelnden Dritten ein familiäres oder wirtschaftliches Naheverhältnis besteht.
Der Vermittler ist als Doppelmakler tätig.
Lager 1
EG
Top I.0.01: 329,38 m² 6,00 € - +++ ca. 4,7 m RH, nicht beheizt, Straßenzugang, integriertes WC, Rolltor
+++ derzeit in Verhandlung
Lager 1 bis 5
EG
Top I.0.01 - Top II.0.01: 1.767,63 m² 6,00 € - +++ ca. 4,7 m RH, nicht beheizt, 2 Eingänge
+++ Die Lagerflächen 2 + 3 + 4 + 5 sind nur gesamt anmietbar und mit Lager 1 verbindbar
+++ Fotos der Hallen auf Anfrage
Lager 2 bis 5
EG
Top II.0.01: 1.438,25 m² 6,00 € - +++ ca. 4,7 m RH, nicht beheizt, 2 Eingänge
+++ Die Lagerflächen 2 + 3 + 4 + 5 sind nur gesamt anmietbar
+++ Fotos der Hallen auf Anfrage
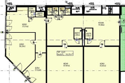
Stiege 1
2. Etage
I.2.01: 319,76 m² 9,00 € - Die Betriebskosten verstehen sich als zirka Angaben.
+++ Personenlift
I.2.02: 526,35 m² 9,00 € - Die Betriebskosten verstehen sich als zirka Angaben.
+++ Personenlift
Stiege 2
2. Etage
II.2.01: 529,63 m² 9,00 € - Die Betriebskosten verstehen sich als zirka Angaben.
+++ Lastenlift
DECUS Immobilien GmbH – Wir beleben Räume
Für weitere Informationen und Besichtigungen steht Ihnen gerne Frau Sonja Macho unter der Mobilnummer +43 664 44 53 56 1und per E-Mail unter macho@decus.at persönlich zur Verfügung.
www.decus.at | office@decus.at
Wichtige Informationen
Bitte beachten Sie, dass per 13.06.2014 eine neue Richtlinie für Fernabsatz- und Auswärtsgeschäfte in Kraft getreten ist.
Ab 1.4.2024 entfallen die Grundbuchs- und Pfandrechtseintragungsgebühren vorübergehend für Eigenheime bis zu einer Bemessungsgrundlage von EUR 500.000,-. Voraussetzung ist das dringende Wohnbedürfnis, ausgenommen davon sind vererbte oder geschenkte Immobilien. Die Befreiung ist jedoch für den Einzelfall zu prüfen, DECUS Immobilien übernimmt hierzu keine Haftung.
Ab 01.07.2023 gilt das Erstauftraggeber-Prinzip bei Wohnungsmietverträgen, ausgenommen davon sind Dienst-/Natural-/Werkswohnungen. Wir dürfen gem. § 17 Maklergesetz darauf hinweisen, dass wir auf die Doppelmaklertätigkeit gem. § 5 Maklergesetz bei Wohnungsmietverträgen verzichten und nur noch einseitig tätig sind (bei den restlichen Vermittlungsarten nicht) und ein wirtschaftliches Naheverhältnis zu unseren Auftraggebern besteht.
Im Falle eines Abschlusses mit Ihnen oder einem von Ihnen namhaft gemachten Dritten bzw. bei beidseitiger Willensübereinstimmung beträgt unser Honorar (lt. Honorarverordnung für Immobilienmakler) 2 Bruttomonatsmieten (BMM) bei Dienst-/Natural-/Werkwohnungen sowie Suchaufträgen, 3 BMM bei Gewerbe-, PKW-, Keller- und Lagermietverträgen sowie bei Kaufobjekten 3 % des Kaufpreises, zuzüglich der gesetzlichen Umsatzsteuer.
Dieses Objekt wird Ihnen unverbindlich und freibleibend angeboten. Oben angeführte Angaben basieren auf Informationen und Unterlagen des Eigentümers und sind unsererseits ohne Gewähr.
Nähere Informationen sowie unsere AGBs und die Nebenkostenübersichtsblatt finden Sie auf unserer Homepage www.decus.at unter "Service" - "Rechtliches zum FAGG" sowie im Anhang der zugesendeten Objekt-Exposés!
Infrastruktur / Entfernungen
Gesundheit
Arzt <500m
Apotheke <500m
Klinik <2.500m
Krankenhaus <3.000m
Kinder & Schulen
Schule <500m
Kindergarten <500m
Universität <1.000m
Höhere Schule <1.000m
Nahversorgung
Supermarkt <500m
Bäckerei <1.000m
Einkaufszentrum <1.000m
Sonstige
Geldautomat <1.000m
Bank <1.000m
Post <1.000m
Polizei <1.000m
Verkehr
Bus <500m
U-Bahn <1.000m
Straßenbahn <500m
Bahnhof <1.000m
Autobahnanschluss <2.500m
Angaben Entfernung Luftlinie / Quelle: OpenStreetMap
Verfügbare Flächen
Stiege/Bauteil 0
Eckdaten
| Kaltmiete (netto): | 22.987,44 € |
| Fläche: | 3.143,37 m² |
Basisdaten zur Immobilie
| Objektnr: | 1144556 |
| Art: | Büro / Praxis |
| Land: | Österreich |
| Baujahr: | 1996 |
| Alter: | Neubau |
| Kaltmiete (netto): | 22.987,44 € |
| Kaltmiete: | 27.580,76 € |
| Miete / m²: | 6,00 € - 9,00 € |
| Provision: | 3 Bruttomonatsmieten zzgl. 20% USt. |
| Betriebskosten: | 4.593,32 € |
| Nutzfläche: | 3.143,37 m² |
| Heizwärmebedarf: | 91,00 kWh/m²a |
| fGEE: | 1,04 |
Internet und TV
Information zur Internet und TV Versorgung hier
Ihre persönliche Beratung
Sonja Macho
DECUS Immobilien GmbH
macho@decus.at
+43 664 44 53 56 1
+43 664 44 53 56 1
F +43 1 35 600 10
