Moderner Erstbezug in Kagran – Nähe U1 mit Wohlfühlfaktor
Haus
- Doppelhaushälfte,
1220
Wien
Lage der Immobilie
Willkommen in einer ruhigen und dennoch gut angebundenen Wohngegend von Kagran befindet. Das Haus befindet sich in einer ruhigen Wohnstraße mit einer angenehmen Atmosphäre, die perfekt für Familien und Ruhe suchende Menschen ist. Die Infrastruktur in der Umgebung ist ausgezeichnet. In der Nähe der Immobilie finden Sie eine Vielzahl von Einkaufsmöglichkeiten, Schulen, Kindergärten und medizinischen Einrichtungen. Sämtlichen namhaften Supermärkte befinden sich nur wenige Gehminuten entfernt, welche Ihren täglichen Bedarf an Lebensmitteln abdecken. Es gibt auch verschiedene Restaurants, Cafés, Eissalon und Geschäfte in der Nähe, die eine große Auswahl an gastronomischen und Einkaufserlebnissen bieten. Für Freizeitaktivitäten stehen Ihnen in der Umgebung mehrere Sportplätze und Fitnessstudios. Die öffentliche Anbindung ist hervorragend, was es Ihnen ermöglicht, schnell und bequem durch die Stadt zu reisen. In unmittelbarer Nähe der Immobilie befinden sich mehrere Bushaltestellen, die Sie mit den wichtigsten Verkehrsknotenpunkten der Stadt verbinden. Die nächste U-Bahn-Station (U1-Rennbahnweg) ist nur wenige Minuten (ca. 750 m) entfernt und bietet eine direkte Verbindung zum Stadtzentrum und anderen wichtigen Stadtteilen. Darüber hinaus befinden sich in Gehweite mehrere Buslinien wie 24A, 25A und 27A. Zusammenfassend lässt sich sagen, dass die Immobilie eine ideale Lage für all diejenigen bietet, die eine ruhige und dennoch gut angebundene Wohngegend suchen. Mit einer Vielzahl von Einkaufsmöglichkeiten, guter Infrastruktur und einer ausgezeichneten öffentlichen Anbindung werden Sie hier ein komfortables und bequemes Leben führen können.Beschreibung der Immobilie
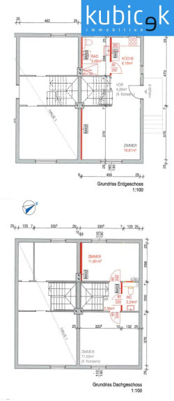
Willkommen in einem modernen Erstbezug, der durch eine geschickte Raumaufteilung ein erstaunlich großzügiges Wohngefühl vermittelt.
Schon beim Betreten empfängt Sie ein praktischer Windfang, der in einen lichtdurchfluteten, offen gestalteten Wohnbereich übergeht. Die hochwertige, stilvoll integrierte Küche mit Kücheninsel samt Essbar und modernster Ausstattung – Induktionskochfeld mit Touchbedienung und integriertem Dunstabzug, Backofen, Spüle, Kühlschrank, Gefrierschrank und Geschirrspüler – verbindet Ästhetik und Funktionalität perfekt.
Das helle Wohn- und Esszimmer bietet reichlich Platz für einen großen Esstisch sowie eine gemütliche Sofaecke und lädt zum Verweilen ein. Im Erdgeschoss erwartet Sie ein geschmackvoll ausgestattetes Badezimmer mit bodenebener Dusche, 2 Handwaschbecken, WC und einem Anschluss für die Waschmaschine.
Über eine stilvolle Treppe gelangen Sie ins Dachgeschoss, wo zwei vielseitig nutzbare Zimmer – als Schlaf-, Arbeits- oder Rückzugsräume – auf Sie warten. Ein zusätzliches WC mit Handwaschbecken und Handtuchheizkörper ergänzt das Raumangebot dieser Ebene.
Der Keller bietet zusätzlichen Stauraum und einen Waschmaschinenanschluss. Die eigene Einfahrt ermöglicht komfortables Parken direkt am Grundstück. Für ein angenehmes Raumklima und gute Energieeffizienz sorgen Kunststofffenster mit Außenrollläden sowie eine moderne Vollwärmeschutzfassade, die die Wärmedämmung optimiert.
Abgerundet wird dieses attraktive Angebot durch einen eigenen Garten, der vielfältige Nutzungsmöglichkeiten bietet: sei es als Spielfläche für Kinder, als liebevoll angelegter Gemüsegarten oder als grüne Oase zum Entspannen – ein Platz, der sich ganz nach Ihren Vorstellungen gestalten lässt.
Zur Miete kommen noch die Betriebskosten in der Höhe von rund EUR 57,-/Monat sowie die Verbrauchsabgaben für Strom, Gas und Wasser hinzu.
Dem Vermieter ist die Höhe Ihres Einkommens für die Anmietung relevant, daher ist ein Einkommensnachweis vorzulegen!
Noch nichts gefunden? Wir informieren Sie unverbindlich über geeignete Immobilienangebote noch vor allen anderen.
Legen Sie jetzt Ihren individuellen Suchagenten unter folgendem Link an. Wir schicken Ihnen passende Immobilien exklusiv vorab zu.
Suchagent anlegen - https://immo-kubicek.service.immo/registrieren/de
Wir weisen darauf hin, dass zwischen dem Vermittler und dem zu vermittelnden Dritten ein familiäres oder wirtschaftliches Naheverhältnis besteht.
Der Immobilienmakler erklärt, dass er – entgegen dem in der Immobilienwirtschaft üblichen Geschäftsgebrauch des Doppelmaklers – einseitig nur für den Vermieter tätig ist.
Ihre Immobilie – unsere Kunden: Perfekte Vermittlung seit über 90 Jahren.
Wir bringen seit mehr als 90 Jahren erfolgreich Immobilienbesitzer und Käufer/Mieter zusammen. Ob Haus, Grundstück oder Wohnung – für unsere 1.300 vorgemerkten Kunden suchen wir derzeit Immobilien in Wien und Niederösterreich.
Als stolzer Träger des IMMY-Qualitätspreises stehen wir für höchste Servicequalität und freuen uns darauf, Sie persönlich zu beraten.
Kontaktieren Sie uns noch heute!
immo-kubicek.at| +43 1 2031168-0
Infrastruktur / Entfernungen
Gesundheit
Arzt <500m
Apotheke <1.000m
Klinik <2.000m
Krankenhaus <4.000m
Kinder & Schulen
Schule <500m
Kindergarten <500m
Universität <2.000m
Höhere Schule <1.500m
Nahversorgung
Supermarkt <500m
Bäckerei <500m
Einkaufszentrum <1.500m
Sonstige
Geldautomat <1.000m
Bank <1.000m
Post <1.000m
Polizei <1.000m
Verkehr
Bus <500m
U-Bahn <1.000m
Straßenbahn <1.000m
Bahnhof <1.000m
Autobahnanschluss <1.500m
Angaben Entfernung Luftlinie / Quelle: OpenStreetMap
Eckdaten
| Objektnr: | 2003/11148 |
| Art: | Haus - Doppelhaushälfte |
| Land: | Österreich |
| Baujahr: | 1961 |
| Zustand: | Voll_saniert |
| Alter: | Altbau |
| Gesamtmiete: | 1.485,00 € |
| Kaltmiete (netto): | 1.350,00 € |
| Kaltmiete: | 1.350,00 € |
| Provision: | Gemäß Erstauftraggeberprinzip bezahlt der Abgeber die Provision. |
| MwSt Gesamt: | 135,00 € |
| Wohnfläche: | 66,29 m² |
| Grundstücksfl.: | 220,00 m² |
| Zimmer: | 3 |
| Bäder: | 1 |
| WC: | 2 |
| Stellplätze: | 1 |
| Garten: | 170,00 m² |
| Keller: | 20,00 m² |
| Heizwärmebedarf: | D 147,50 kWh/m²a |
| fGEE: | E 3,01 |
Ausstattung
Fliesen, Laminatboden, Gas, Zentralheizung, Einbauküche, Bad mit Fenster, Dusche, Parkplatz
Internet und TV
Information zur Internet und TV Versorgung hier
Ihre persönliche Beratung
Thomas Kubicek
Alois Kubicek Gesellschaft m. b. H.
E wien@immo-kubicek.at
T +43 1 2031168-0
F +43 1 2031168-40
