Lage der Immobilie
Die zentrale Lage im 22. Bezirk zwischen dem idyllischen Kirschblütenpark und der Alten Donau bietet ideale Mobilität und Lebensqualität zugleich. Die U1-Station Kagran ist bequem zu Fuß erreichbar und bringt die Bewohner in wenigen Minuten ins Stadtzentrum oder in die beliebten Erholungsgebiete der Donauinsel und Alten Donau. Darüber hinaus sorgen die Straßenbahnlinien 25 und 26 für eine hervorragende Anbindung. Zahlreiche Schulen, Apotheken und Geschäfte des täglichen Bedarfs befinden sich in der Nähe, und das Westfield Shopping Center ist in nur vier Autominuten erreichbar – für Shopping und Unterhaltung direkt vor der Tür. • U1 Station Kagran • Straßenbahnlinie 25 und 26Beschreibung der Immobilie
Attraktive vermietete Vorsorgewohnungen nahe der Alten Donau
Nur wenige Schritte vom idyllischen Kirschblütenpark und rund sieben Gehminuten von der Alten Donau entfernt entsteht ein modernes Wohnbauprojekt mit perfekt durchdachten Grundrissen und hochwertiger Ausstattung – ideal für Anleger, die Wert auf eine nachhaltige Vermietungsperspektive legen. Die Kombination aus einer gefragten Lage im Naherholungsgebiet und der Nähe zu Geschäften, medizinischer Versorgung und Bildungseinrichtungen macht dieses Projekt zu einer lohnenden Investition.
Projektbeschreibung
-
Zeitgemäßer Neubau in hoher Bauqualität
-
Drei separate Stiegenhäuser
-
Insgesamt 46 Einheiten (Eigentums- und Vorsorgewohnungen)
-
23 Garagenplätze
-
Großzügig angelegter Innenhof
-
Abstellräume für Kinderwagen und Fahrräder
-
Spielplatz für Kleinkinder im Hof
-
Fahrradstellplätze im Außenbereich
-
Gemeinschaftliche Waschküche
Wohnungsgrößen & Freiflächen
-
Zwei- und Dreizimmerwohnungen
-
Wohnflächen zwischen ca. 36 m² und 88 m²
-
Großteil der Wohnungen mit Balkon, Loggia oder Terrasse
Ausstattungsmerkmale
-
Edler Holzparkettboden
-
Fußbodenheizung über Fernwärme
-
Moderne Komplettküchen mit Miele-Geräten (Geschirrspüler, Backrohr mit Herd, Kühlschrank, Dunstabzug) – nicht im Kaufpreis enthalten
-
Stilvoll gestaltete Badezimmer
-
Außenjalousien
-
Küche in jeder Wohnung verpflichtend anzukaufen: € 9.000,- netto zzgl. 20 % USt.
-
Stellplatz (falls zugeordnet): € 26.000,- netto zzgl. 20 % USt.
Kaufpreise der Vorsorgewohnungen
von EUR 249.000,- bis EUR 349.000,- netto zzgl. 20 % USt.
Zu erwartender Mietertrag
siehe Preisliste mit entsprechender derzeit veranschlagten Nettomieteinnahme pro Monat.
Provisionsfrei für den Käufer!
Fertigstellung: bereits erfolgt
Konzeptionsgebühr beim Kauf einer Vorsorgewohnung: EUR 60 netto/m²
Bei diesem Angebot handelt es sich um eine Vorsorgewohnung, die zu Vermietungszwecken erworben wird. Der angegebene Kaufpreis versteht sich daher zzgl. 20% USt. Diese Daten sind vorbehaltlich möglicher Änderungen.
Wir weisen darauf hin, dass zwischen dem Vermittler und dem zu vermittelnden Dritten ein familiäres oder wirtschaftliches Naheverhältnis besteht.
Der Vermittler ist als Doppelmakler tätig.
Infrastruktur / Entfernungen
Gesundheit
Arzt <350m
Apotheke <325m
Klinik <2.475m
Krankenhaus <2.675m
Kinder & Schulen
Schule <275m
Kindergarten <175m
Universität <700m
Höhere Schule <950m
Nahversorgung
Supermarkt <300m
Bäckerei <650m
Einkaufszentrum <775m
Sonstige
Geldautomat <750m
Bank <750m
Post <1.000m
Polizei <750m
Verkehr
Bus <175m
U-Bahn <600m
Straßenbahn <225m
Bahnhof <650m
Autobahnanschluss <2.225m
Angaben Entfernung Luftlinie / Quelle: OpenStreetMap
Eckdaten
Objektnr: | 87163 |
Art: | Wohnung |
Land: | Österreich |
Baujahr: | 2022 |
Zustand: | Erstbezug |
Alter: | Neubau |
Kaufpreis: | 259.000,00 € |
Kaufpreis / m²: | auf Anfrage |
Provision: | Provisionsfrei für den Kunden! |
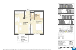
Wohnfläche: | 46,23 m² |
Zimmer: | 2 |
Bäder: | 1 |
WC: | 1 |
Balkone: | 1 |
Heizwärmebedarf: | B 25,20 kWh/m²a |
fGEE: | A 0,74 |
Ausstattung
Wohnküche / offene Küche, Südbalkon, Badewanne
Internet und TV
Information zur Internet und TV Versorgung hier
Ihre persönliche Beratung

Andrea PÖCHHACKER; MSc
EHL Immobilien GmbH
E a.poechhacker@ehl.at
T +4315127690 DW 411
H +43664 83 73 481