Bürofläche in der Plüddemanngasse zu mieten!
Büro / Praxis
- Bürofläche,
8010
Graz
Lage der Immobilie
Die Bürofläche in Graz besticht durch zentrale Lage, nur 2,3 km vom Stadtzentrum und 310 m zur nächsten Bushaltestelle entfernt. Einkaufsmöglichkeiten sind in 90 m erreichbar. Für Familien sind Kindergarten und Schule in unmittelbarer Nähe. Autobahnzufahrt in 3,24 km.Beschreibung der Immobilie
Eckdaten
| Gesamtmiete: | 1.399,66 € |
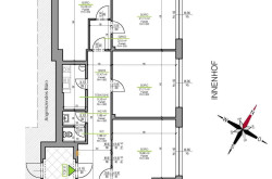
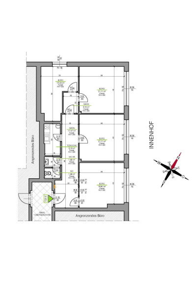
| Fläche: | 106,87 m² |
Basisdaten zur Immobilie
| Objektnr: | 109251642 |
| Art: | Büro / Praxis - Bürofläche |
| Land: | Österreich |
| Zustand: | Gepflegt |
| Gesamtmiete: | 1.399,66 € |
| Kaltmiete (netto): | 839,00 € |
| Kaltmiete: | 1.166,38 € |
| Miete / m²: | 7,85 € |
| Provision: | 3 BMM zzgl. 20% USt. |
| Betriebskosten: | 327,38 € |
| Bürofläche: | 106,87 m² |
| Heizwärmebedarf: | C 62,00 kWh/m²a |
| fGEE: | C 1,06 |
Ausstattung
Fernwärme
Internet und TV
Information zur Internet und TV Versorgung hier
Ihre persönliche Beratung
Swjatoslaw Sumann
ÖRAG Immobilien Vermittlung GmbH
swjatoslaw.sumann@oerag.at
004366488962190
