"Herzfelderhof" in Wiener Neudorf - Effiziente Büros von ganz klein bis ganz groß
Büro / Praxis
,
2351
Wiener Neudorf
,
Bahnstraße
Beschreibung der Immobilie
In den letzten zwei Jahren ist in Wiener Neudorf ein attraktives Bürohaus entstanden. Es befindet sich im nördlichen Bereich der Gemeinde, zieht sich entlang der Bundesstraße B17 und ist somit besonders gut sichtbar.
Die Nähe zu Vösendorf, Mödling oder auch Biedermannsdorf bietet ein großes Einzugsgebiet und eine gute individuelle Verkehrsanbindung. Auch mit dem öffentlichen Verkehr ist man durch die gegenüber des Gebäudes liegende Station "Wiener Neudorf" der Badner Bahn gut angebunden. Zwischen der Wiener Oper und Wiener Neudorf fährt die Badner Bahn wochentags im 7,5 Minuten Takt.
Objekt:
Durch die attraktive moderne Architektur hebt es sich das Gebäude von den umliegenden Bauten ab. Über die gesamte Länge des Gebäudes wurde eine ca. 4m tiefe Vordachkonstruktion mit runden Ausschnitten errichtet. Dies gibt den Fußgängern Schutz und ermöglicht eine bessere Nutzbarkeit des Bereichs darunter.
Das Bürohaus verfügt über eine Fläche von insgesamt ca. 5.800m² und bietet auf vier Obergeschossen Büroflächen für Unternehmen aller Größenordnungen. Die kleinste Büroeinheit hat 140m² und nach oben gibt es derzeit so gut wie keine Grenzen.
In den oberen Geschoßen wird ein Panoramablick geboten.
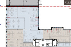
Die Flächen befinden sich derzeit im Edelrohbau und können nach den individuellen Wünschen des zukünftigen Nutzers ausgebaut werden. Die Grundrisse sind effizient und durch teilweise bodentiefe Fenster lichtdurchflutet. Die Renderings bieten schon einen Einblick in mögliche Ausbaustufen.
Im Erdgeschoß befinden sich drei Geschäftslokale mit einer Gesamtfläche von rund 2.100m². In einem der Lokale hat sich ACTION eingemietet, die anderen Lokale werden einerseits von einem Fahrradgeschäft als auch von einem Fitnesscenter genutzt.
Ein Regelgeschoß ist zwischen 1.640m² und 1.850m² groß und kann in bis zu acht getrennte Mietflächen unterteilt werden. Großzügige Terrassen stehen im 1., im 3. und natürlich im beliebten Dachgeschoß zur Verfügung.
Auf der Liegenschaft wurde auch ein Wohngebäude errichtet. Die Tiefgaragen der beiden Gebäude sind miteinander verbunden.
In der Nähe befinden sich einige Nahversorger (BILLA, BIPA, Lidl, usw.) also auch eine Apotheke und eine Postfiliale.
Mietpreise:
1. OG:
Nettomiete / m² / Monat: Edelrohbau ab € 12,-- Vollausbau ab € 14,--
2. OG:
Nettomiete / m² / Monat: Edelrohbau ab € 12,-- Vollausbau ab € 14,--
3. OG:
Nettomiete / m² / Monat: Edelrohbau ab € 12,50 Vollausbau ab € 15,--
DG:
Nettomiete / m² / Monat: Edelrohbau ab € 13,-- Vollausbau ab € 16,--
Ausstattung:
- Erstbezug
- Fernwärme
- Kühlung über Fan-Coils
- Doppelboden
- Edelrohbau - individueller Ausbau möglich
- flexible bzw. mieterspezifische Grundrissgestaltung
- getrennte Sanitärbereiche
- 3-Scheiben-Wärmeschutzverglasung
- außenliegende Beschattung mittels elektrischen Raffstores
- öffenbare Fenster
- teilweise bodentiefe Fenster
- Terrassenflächen in mehreren Geschoßen
- zwei Aufzüge
Stellplätze:
In der Tiefgarage stehen ca. 70 Stellplätze zur Verfügung und auch im Freien wurden Kundenparkplätze geschaffen. Zum Abstellen von Fahrrädern wurde ein eigener großzügiger Bereich reserviert.
€ 70,-- netto / Monat exkl. Betriebskosten
In der Tiefgarage gibt es Möglichkeiten zum Laden von Elektroautos.
Energieausweis:
Heizwärmebedarf: 27,31 kWh/m²a
Verkehrsanbindung:
Die Lage in der Nähe des Knoten Vösendorf ist eine optimale individuelle Anbindung an diverse Autobahnen gegeben. (Südautobahn A2, S1, A21 sowie A23).
Der Flughafen Wien Schwechat ist innerhalb von 20 Minuten mit dem Auto erreichbar.
Das Bürohaus verfügt über eine optimale öffentliche Verkehrsanbindung. Die Badner Bahn Station „Wiener Neudorf“ befindet sich direkt gegenüber. Weiters verlaufen einige Buslinien entlang der Liegenschaft.
Alle Preisangaben verstehen sich zzgl. der gesetzl. Ust.
Alle Angaben ohne Gewähr, Irrtümer und Änderungen vorbehalten.
Wir weisen darauf hin, dass zwischen dem Vermittler und dem zu vermittelnden Dritten ein familiäres oder wirtschaftliches Naheverhältnis besteht.
Der Vermittler ist als Doppelmakler tätig.
DECUS Immobilien GmbH – Wir beleben Räume
Für weitere Informationen und Besichtigungen steht Ihnen gerne Frau Mag. (FH) Anita Kronaus-Buchegger unter der Mobilnummer +43 664 16 096 66und per E-Mail unter kronaus@decus.at persönlich zur Verfügung.
www.decus.at | office@decus.at
Wichtige Informationen
Bitte beachten Sie, dass per 13.06.2014 eine neue Richtlinie für Fernabsatz- und Auswärtsgeschäfte in Kraft getreten ist.
Ab 1.4.2024 entfallen die Grundbuchs- und Pfandrechtseintragungsgebühren vorübergehend für Eigenheime bis zu einer Bemessungsgrundlage von EUR 500.000,-. Voraussetzung ist das dringende Wohnbedürfnis, ausgenommen davon sind vererbte oder geschenkte Immobilien. Die Befreiung ist jedoch für den Einzelfall zu prüfen, DECUS Immobilien übernimmt hierzu keine Haftung.
Ab 01.07.2023 gilt das Erstauftraggeber-Prinzip bei Wohnungsmietverträgen, ausgenommen davon sind Dienst-/Natural-/Werkswohnungen. Wir dürfen gem. § 17 Maklergesetz darauf hinweisen, dass wir auf die Doppelmaklertätigkeit gem. § 5 Maklergesetz bei Wohnungsmietverträgen verzichten und nur noch einseitig tätig sind (bei den restlichen Vermittlungsarten nicht) und ein wirtschaftliches Naheverhältnis zu unseren Auftraggebern besteht.
Im Falle eines Abschlusses mit Ihnen oder einem von Ihnen namhaft gemachten Dritten bzw. bei beidseitiger Willensübereinstimmung beträgt unser Honorar (lt. Honorarverordnung für Immobilienmakler) 2 Bruttomonatsmieten (BMM) bei Dienst-/Natural-/Werkwohnungen sowie Suchaufträgen, 3 BMM bei Gewerbe-, PKW-, Keller- und Lagermietverträgen sowie bei Kaufobjekten 3 % des Kaufpreises, zuzüglich der gesetzlichen Umsatzsteuer.
Dieses Objekt wird Ihnen unverbindlich und freibleibend angeboten. Oben angeführte Angaben basieren auf Informationen und Unterlagen des Eigentümers und sind unsererseits ohne Gewähr.
Nähere Informationen sowie unsere AGBs und die Nebenkostenübersichtsblatt finden Sie auf unserer Homepage www.decus.at unter "Service" - "Rechtliches zum FAGG" sowie im Anhang der zugesendeten Objekt-Exposés!
Infrastruktur / Entfernungen
Gesundheit
Arzt <500m
Apotheke <250m
Klinik <2.250m
Krankenhaus <1.250m
Kinder & Schulen
Schule <500m
Kindergarten <500m
Universität <9.500m
Höhere Schule <2.250m
Nahversorgung
Supermarkt <250m
Bäckerei <250m
Einkaufszentrum <1.000m
Sonstige
Bank <500m
Geldautomat <500m
Post <500m
Polizei <1.000m
Verkehr
Bus <250m
U-Bahn <5.000m
Bahnhof <250m
Straßenbahn <4.750m
Autobahnanschluss <1.500m
Angaben Entfernung Luftlinie / Quelle: OpenStreetMap
Verfügbare Flächen
Stiege/Bauteil
Eckdaten
| Kaltmiete (netto): | 1.994,34 € |
| Fläche: | 149,95 m² |
Basisdaten zur Immobilie
| Objektnr: | 1149590/692 |
| Art: | Büro / Praxis |
| Land: | Österreich |
| Alter: | Neubau |
| Kaltmiete (netto): | 1.994,34 € |
| Miete / m²: | 12,00 € - 13,30 € |
| Provision: | 3 Bruttomonatsmieten zzgl. 20% USt. |
| Betriebskosten: | 329,89 € |
| Nutzfläche: | 149,95 m² |
| Heizwärmebedarf: | A 27,31 kWh/m²a |
| fGEE: | 0,85 |
Internet und TV
Information zur Internet und TV Versorgung hier
Ihre persönliche Beratung
Mag. (FH) Anita Kronaus-Buchegger
DECUS Immobilien GmbH
kronaus@decus.at
+43 664 16 096 66
+43 664 16 096 66
F +43 1 35 600 10
