modern wohnen, nachhaltig leben – Energieeffizienz trifft Wohnkomfort

Wohnung , 2020 Hollabrunn

Beschreibung der Immobilie

Ankommen und Wohlfühlen – Ihr neues Zuhause erwartet Sie!

Idyllisch gelegen in Hollabrunn präsentieren sich sechs moderne Wohnhäuser mit 60 freifinanzierten Eigentumswohnungen2024 fertiggestellt und bereit, Sie willkommen zu heißen.

Das Angebot reicht von kompakten 1 Zimmer-Apartments bis hin zu großzügigen 5 Zimmer-Maisonette-Wohnungen. Alle Einheiten verfügen über großzügige Außenflächen in Form von Gärten, Balkonen oder Terrassen mit herrlichem Blick ins Grüne.

Die Architektur besticht durch lichtdurchflutete Räume, hohe Decken und elegante Satteldächer, die jedem Haus seinen einzigartigen Charakter verleihen. Dieses Projekt vereint Ästhetik, Funktionalität und Lebensqualität – ein Ort, an dem Sie nicht nur wohnen, sondern wirklich ankommen.

Hochwertige Ausstattung, die begeistert:

  • bodengleiche Duschen mit eleganter, verdeckter Abflussrinne
  • Einzel- oder Doppel-Waschbecken mit maßgefertigten Tischler-Unterbau-Regalen
  • durchgehende Fußbodenheizung für behagliche Wärme
  • österreichischer Eichenparkett in Landhausdielen-Optik
  • italienische Feinsteinzeug-Fliesen von l’argilla
  • Vorbereitung für LED-Deckenspots im Vorraum sowie in ausgewählten Nebenräumen

Nachhaltig & zukunftsorientiert:

  • Warmwasser & Heizung über umweltfreundliche Holz-Pellets-Zentralanlage
  • Vorrichtung für leistungsstarke E-Ladestationen in der Tiefgarage (max. 11kW) 
  • 3fach verglaste, schall- und wärmedämmende Fenster
  • elektrische Außenbeschattung für optimalen Sonnenschutz
  • Vorbereitung für den Einbau von Klimaanlagen in sämtlichen Dachgeschoss- und Maisonette-Wohnungen

Rundum durchdacht:

  • perfekte Home-Office-Ausstattung mit WLAN & SAT-Anschluss
  • Glasfaseranbindung für blitzschnelles und stabiles Internet
  • Stimmungsvolle Außenbeleuchtung der Grünanlagen
  • barrierefreie Lifte bis in die Tiefgarage
  • Kellerabteil zu jeder Wohnung sowie allgemeine Fahrrad- und Kinderwagenräume

Lebensqualität direkt vor der Haustüre:

  • zentrale Begegnungszone mit Springbrunnen – der „ANGER“
  • liebevoll bepflanzte Grünflächen mit schattenspendenden Bäumen

Optional erhältlich:

  • Stellplatz im Freien: € 10.395,00
  • Stellplatz überdacht: € 12.968,00
  • Stellplatz Garage: € 17.430,00
  • geräumige Motorrad-/Fahrradbox: € 3.780,00

Lage & Infrastruktur:

Das Neubauprojekt befindet sich in einer idyllischen, von viel Grün geprägten Wohngegend von Hollabrunn und bietet zugleich eine hervorragende Anbindung an das Stadtzentrum und nach Wien.

  • Nahversorgung: Einkaufsmöglichkeiten in wenigen Gehminuten erreichbar
  • öffentliche Verkehrsmittel: Bahnhof Hollabrunn mit optimaler Anbindung nach Wien
  • Freizeit & Erholung: zahlreiche Rad- und Spazierwege, Parks und Sportmöglichkeiten in unmittelbarer Nähe
  • Bildung: Kindergärten, Schulen und weiterführende Bildungseinrichtungen in direkter Umgebung

Attraktiv für Eigennutzer und Investoren:

Dieses Projekt ist sowohl für Eigennutzer, die hohen Wohnkomfort schätzen, als auch für Kapitalanleger mit Fokus auf eine langfristige Rendite bestens geeignet.

Die angegebenen Preise gelten für EigennutzerAnleger profitieren beim Erwerb einer Vorsorgewohnung von einem Preisvorteil von 10%.

Kauf und Finanzierung aus einer Hand – nutzen Sie die Synergien der Erste Bank & Sparkassen-Unternehmensgruppe. Gerne arrangieren wir für Sie ein unverbindliches Finanzierungsgespräch mit den Finanzierungsspezialisten der Erste Bank & Sparkasse.

Überzeugen Sie sich selbst von der Qualität dieses Neubauprojekts und vereinbaren Sie jetzt einen unverbindlichen Beratungstermin unter 0664 8347649 oder per E-Mail unter jasmin.rotter@sreal.at

Hier geht´s zum 360° Rundgang: https://app.immoviewer.com/portal/tour/3125687?accessKey=681f
Viele weitere Rundgänge, so wie alle neuen s REAL Immobilienangebote finden Sie auf www.sreal.at.

Infrastruktur / Entfernungen

Gesundheit
Arzt <500m
Krankenhaus <2.000m
Apotheke <1.500m

Kinder & Schulen
Schule <1.000m
Kindergarten <2.000m

Nahversorgung
Supermarkt <1.500m
Bäckerei <1.500m

Sonstige
Bank <1.500m
Geldautomat <1.500m
Post <1.500m
Polizei <1.000m

Verkehr
Bus <500m
Autobahnanschluss <500m
Bahnhof <1.500m

Angaben Entfernung Luftlinie / Quelle: OpenStreetMap

Eckdaten

Objektnr: 960/73007
Art: Wohnung
Land: Österreich
Baujahr: 2022
Zustand: Erstbezug
Alter: Neubau
Kaufpreis: 357.000,00
Provision: provisionsfrei für Käufer:innen
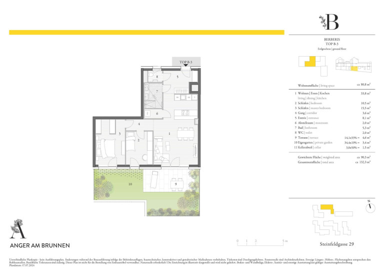
Nutzfläche: 80,80 m²
Zimmer: 3
Bäder: 1
WC: 1
Terrassen: 1
Garten: 34,40 m²
Keller: 3,00 m²
Heizwärmebedarf:  B  34,80 kWh/m²a
fGEE:  A  0,73
Immobilie merken Exposé

Internet und TV

Information zur Internet und TV Versorgung hier


Immobilie anfragen


Ihre persönliche Beratung

s REAL - Korneuburg (Termine nach Vereinbarung)

Jasmin Rotter

s REAL Immobilienvermittlung GmbH

E jasmin.rotter@sreal.at

T +43 (0) 50100 - 26335

H +43 664 8347649