Sanierungsbedürftiges Reihenhaus mit Seeblick!

Haus - Reihenhaus, 7091 Breitenbrunn

Lage der Immobilie

Das Reihenhaus befindet sich im ruhigen, naturnahen Pusztawohnpark in Breitenbrunn, nur wenige Minuten vom Neusiedler See entfernt - ein idyllischer Rückzugsort.

Die Region ist bekannt für Ihre Weinberge, Radwege, den Neusiedler See und ein vielfältiges Freizeitangebot wie Segeln und Wandern - perfekt für Erholungssuchende und Naturfreunde.

Wien und Eisenstadt sind schnell erreichbar.

Beschreibung der Immobilie

In herrlicher Ruhelage, nur wenige Minuten vom Neusiedler See entfernt, befindet sich dieses Reihenhaus im beliebten Pusztawohnpark in Breitenbrunn.

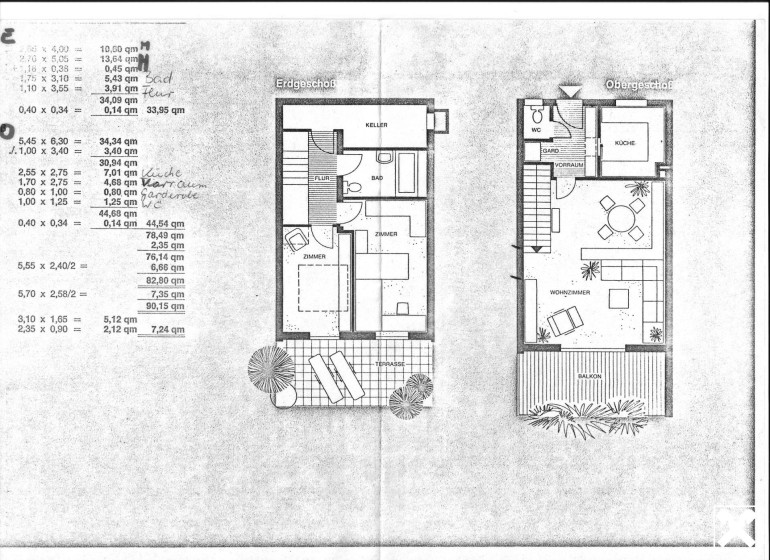
Die Immobilie befindet sich in sanierungsbedürftigen Zustand, überzeugt jedoch durch ihre besondere Lage mit Seeblick sowie einem funktionalen Grundriss auf 2 Ebenen.

Die Liegenschaft bietet Ihnen eine Wohnfläche von ca. 77m² - ideal für Eigenheim oder als Wochenenddomizil.

Wohnen beim Neusiedler See, wo andere Urlaub machen!

Gerne stehen wir für weitere Informationen oder zur Vereinbarung eines Besichtigungstermins zur Verfügung. Wir freuen uns über Ihren Anruf!

Eckdaten

Objektnr: 0001010589
Art: Haus - Reihenhaus
Land: Österreich
Baujahr: 1978
Möbliert: Teil
Kaufpreis: 220.000,00
Provision: 3% des Kaufpreises plus 20% USt.
Wohnfläche: 77,43 m²
Zimmer: 3
Bäder: 1
WC: 2
Balkone: 1
Terrassen: 1
Keller: 10,41 m²
Heizwärmebedarf:  D  105,50 kWh/m²a
fGEE:  F  3,33
Immobilie merken Exposé

Ausstattung

Elektro, Fußbodenheizung, Wohnküche / offene Küche, Dusche


Internet und TV

Information zur Internet und TV Versorgung hier


Immobilie anfragen


Ihre persönliche Beratung

Raiffeisen Immobilien Vermittlung Ges.m.b.H

Walter Haider

Raiffeisen Immobilien Vermittlung

E teamnoesued@riv.at

T +43517517

H +43 664 60 517 517 98