Doppelte Chance am Neusiedlersee - zwei verbundene Reihenhäuser mit Seeblick!
Haus
- Reihenhaus,
7091
Breitenbrunn





















Lage der Immobilie
Das Reihenhaus befindet sich im ruhigen, naturnahen Pusztawohnpark in Breitenbrunn, nur wenige Minuten vom Neusiedler See entfernt - ein idyllischer Rückzugsort.
Die Region ist bekannt für Ihre Weinberge, Radwege, den Neusiedler See und ein vielfältiges Freizeitangebot wie Segeln und Wandern - perfekt für Erholungssuchende und Naturfreunde.
Wien und Eisenstadt sind schnell erreichen.
Beschreibung der Immobilie
Doppelte Chance mit viel Potential - großzügiges Wohnen nahe dem Neusiedler See!
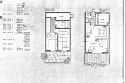
Zum Verkauf stehen zwei direkt nebeneinanderliegende Reihenhäuser mit Seeblick im Pusztawohnpark Breitenbrunn, die durch eine Verbindungstür miteinander verbunden sind.
Jedes Haus verfügt über ca. 77,43m² Wohnfläche, ist baugleich aufgebaut und bietet Seeblick, Terrasse und Keller.
Die beiden Häuser befinden sich in sanierungsbedürftigem Zustand, eignen sich aber ideal für Käufer mit Weitblick - ob als großzügiges Familienhaus, Mehrgenerationenwohnen, Wohnen und Arbeiten oder als Ferienimmobilie mit getrennten Bereichen.
Wohnen beim Neusiedler See, wo andere Urlaub machen!
Gerne stehen wir für weitere Informationen oder zur Vereinbarung eines Besichtigungstermins zur Verfügung. Wir freuen uns über Ihren Anruf!
Eckdaten
Objektnr: | 0001010592 |
Art: | Haus - Reihenhaus |
Land: | Österreich |
Baujahr: | 1978 |
Möbliert: | Teil |
Kaufpreis: | 420.000,00 € |
Provision: | 3% des Kaufpreises plus 20% USt. |
Wohnfläche: | 154,86 m² |
Zimmer: | 6 |
Bäder: | 2 |
WC: | 4 |
Balkone: | 2 |
Terrassen: | 2 |
Keller: | 20,82 m² |
Heizwärmebedarf: | D 105,50 kWh/m²a |
fGEE: | F 3,33 |
Ausstattung
Elektro, Fußbodenheizung, Wohnküche / offene Küche, Badewanne, Dusche
Internet und TV
Information zur Internet und TV Versorgung hier
Ihre persönliche Beratung

Walter Haider
Raiffeisen Immobilien Vermittlung
E teamnoesued@riv.at
T +43517517
H +43 664 60 517 517 98