Beschreibung der Immobilie
Willkommen im Bergdorf Hochrindl – Ihr Chalettraum
in den Alpen
Inmitten des idyllischen Ski- und Wanderparadieses
Hochrindl entstehen 14 charmante Alpenchalets mit atemberaubendem Blick über das wunderschöne Kärntner Land.
Ein Ort, an dem Sie Entspannung,
Natur und Investition auf einzigartige Weise verbinden
können.
Die Chalets vereinen alpinen
Charme mit modernem Wohnkomfort – ideal für
Naturliebhaber, Genießer und clevere Anleger.
In Zusammenarbeit mit Huetten.com, dem Experten für Ferienvermietung, wird Ihnen ein rundum sorgloses Konzept mit attraktiver Rendite und der Möglichkeit zur flexiblen Eigennutzung angeboten.
Ihre Vorteile auf einen Blick:
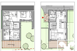
14 exklusive Chalets – Neubau in massiver Bauweise
Wohnflächen
von ca. 76 m² bis 122 m²
Freiflächen: Balkon, Terrasse und Garten
Stellplatz
1 Außenabstellplatz ist im Kaufpreis inkludiert.
die Carports kosten 15.000€/Stück
Platz für 4 bis 8 Personen, 2 bis 4 Schlafzimmer
Attraktive Rendite von ca. 4 % durch touristische Vermietung
Eigennutzung möglich – verbringen Sie selbst unvergessliche
Urlaubstage
Touristische Widmung – ideale Kapitalanlage
Hochwertige Ausstattung – auf Wunsch komplett möbliert
Ihr Rückzugsort in den Bergen – und gleichzeitig
eine kluge Investition.
Lassen Sie sich vom einzigartigen Flair der Hochrindl
verzaubern – und sichern Sie sich Ihr eigenes Stück Alpenidylle.
Besichtigungen sind jederzeit nach Terminvereinbarung möglich.
Eckdaten
| Kaufpreis: | 742.800,00 € |
| Fläche: | 96,88 m² |
| Zimmer: | 3 |
Basisdaten zur Immobilie
| Objektnr: | 00150010070012 |
| Art: | Haus |
| Land: | Österreich |
| Baujahr: | 2025 |
| Kaufpreis: | 742.800,00 € |
| Kaufpreis / m²: | auf Anfrage |
| Provision: | 3% des Kaufpreises plus 20% USt. |
| Wohnfläche: | 96,88 m² |
| Zimmer: | 3 |
| Bäder: | 1 |
| WC: | 2 |
| Balkone: | 1 |
| Terrassen: | 1 |
| Garten: | 117,36 m² |
Ausstattung
Elektro, Fußbodenheizung
Internet und TV
Information zur Internet und TV Versorgung hier
Ihre persönliche Beratung
Mag. Kerstin Rauter
Raiffeisen Kärnten
kerstin.rauter@rbmk.at
+4357743100
+4366488453108
