Beschreibung der Immobilie
Das Wichtigste auf einen Blick
- Kürzlich fertiggestelltes Bauprojekt (2024) in hochwertiger Bauweise und Ausstattung
- Moderne Haustechnik: Erdwärmepumpe mit Fußbodenheizung, Kühlfunktion im Sommer und PV Anlage
- Die Wohnung umfasst 56,2 m², aufgeteilt in Vorraum, 2 Zimmer, Abstellraum, Bad und WC getrennt
- Großer Balkon für zusätzlichen Freiraum, Kellerabteil, Garagenplätze optional (EUR 15.000,–)
- Kaufpreis EUR 259.000,– für Eigennutzer bzw. EUR 229.215,– zzgl. 20 % USt für Anleger
Die ausführliche Beschreibung:
Am Kabanenweg in Neulengbach, nahe dem Freibad und nur wenige Gehminuten vom Bahnhof entfernt, entstand 2024 eine moderne Wohnhausanlage mit insgesamt 30 Wohnungen in drei Baukörpern, jeweils mit eigenem Lift und über die gemeinsame Tiefgarage mit 60 Stellplätzen miteinander verbunden. Besonderes Augenmerk wurde auf eine nachhaltige Haustechnik gelegt: Eine Erdwärme-Fußbodenheizung mit Kühlfunktion im Sommer, außenliegender Sonnenschutz sowie eine Photovoltaikanlage für die Allgemeinflächen sorgen für Komfort und reduzierte Betriebskosten.
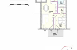
Die Wohnung Top 7 im 1. Obergeschoß von Haus 1 bietet auf 56,2 m² ein durchdachtes Raumprogramm mit Vorraum, zwei Zimmern, Abstellraum, Badezimmer und separatem WC. Von der Wohnküche sowie Schlafzimmer führt der Ausgang auf den rund 8 m² großen Balkon, der den Wohnraum um wertvolle Freifläche erweitert. Eichen-Echtholz-Parkett, großformatige Fliesen mit hochwertiger Keramik in den Nassräumen sowie eine Sicherheits-Eingangstüre runden das Gesamtpaket ab und sorgen für Wohnkomfort auf zeitgemäßem Niveau. Zusätzlich gehören ein Kellerabteil sowie optional verfügbare Garagenplätze in der Tiefgarage zum Angebot.
Die Stadtgemeinde Neulengbach überzeugt mit hoher Lebensqualität: viel Grün zum Laufen, Radfahren und Wandern, das Freibad mit Tennisplätzen direkt nebenan sowie eine sehr gute Infrastruktur mit Nahversorgern, Schulen und Freizeitangeboten. Der Bahnhof ist in nur 900 Metern zu Fuß erreichbar – von dort gelangt man in ca. 35 Minuten nach Wien und in etwa 20 Minuten nach St. Pölten. Auch die Westautobahn (A1) ist schnell erreichbar, womit Freizeitqualität und Alltagskomfort perfekt verbunden sind.
Auf ein wirtschaftliches Naheverhältnis zum Auftraggeber sowie die Doppelmaklertätigkeit wird ausdrücklich hingewiesen.
Noch nichts gefunden?
Wir informieren Sie als Erste/r über passende Immobilienangebote.
Legen Sie jetzt Ihren individuellen Suchagenten über folgenden Link an.
Wir senden Ihnen geeignete Immobilien unverbindlich vorab zu.
Suchagent anlegen - https://sulek-immobilien.service.immo/registrieren/de
Infrastruktur / Entfernungen
Gesundheit
Arzt <1.250m
Apotheke <1.000m
Klinik <9.750m
Kinder & Schulen
Schule <750m
Kindergarten <1.250m
Nahversorgung
Supermarkt <500m
Bäckerei <1.000m
Sonstige
Bank <1.000m
Geldautomat <1.000m
Post <1.000m
Polizei <750m
Verkehr
Bus <250m
Autobahnanschluss <4.250m
Bahnhof <1.000m
Angaben Entfernung Luftlinie / Quelle: OpenStreetMap
Eckdaten
| Kaufpreis: | 259.000,00 € |
| Fläche: | 56,24 m² |
| Zimmer: | 2 |
Basisdaten zur Immobilie
| Objektnr: | 25902 |
| Art: | Wohnung |
| Land: | Österreich |
| Baujahr: | 2024 |
| Zustand: | Erstbezug |
| Alter: | Neubau |
| Kaufpreis: | 259.000,00 € |
| Kaufpreis / m²: | 4.605,26 € |
| Provision: | 3% des Kaufpreises zzgl. 20% USt. |
| Betriebskosten: | 116,76 € |
| Heizkosten: | 10,97 € |
| MwSt Gesamt: | 15,95 € |
| Wohnfläche: | 56,24 m² |
| Zimmer: | 2 |
| Bäder: | 1 |
| WC: | 1 |
| Balkone: | 1 |
| Heizwärmebedarf: | A 25,00 kWh/m²a |
| fGEE: | A++ 0,39 |
Ausstattung
Fliesen, Parkett, Erdwärme, Solarenergie, Fußbodenheizung, Zentralheizung, Personenaufzug, Tiefgarage
Internet und TV
Information zur Internet und TV Versorgung hier
Ihre persönliche Beratung
Ing. Michael Resch
Mittelsmann Philipp Sulek GmbH
mr@sulek-immobilien.at
+43 699 122 93 262
