360 TOUR // GENERALSANIERTES EINFAMILIENHAUS IN DORNBACH MIT UNVERBAUBAREM WIEN- BLICK
Haus
- Einfamilienhaus,
1170
Wien,Hernals
Beschreibung der Immobilie
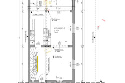
Dieses in bester Lage Dornbach gelegene Einfamilienhaus mit einzigartigem unverbaubarem Wienblick und einer Gesamtwohnfläche von ca. 220m² verteilt sich auf 3 Ebenen mit fogender
Raumaufteilung:
Gartengeschoß ( ca. 66m²)
Vorraum (4m²) mit großen Esszimmer und Wohnzimmer (ca. 62m²) mit offener Küche und großer Terrasse (7m²) in den nach Süd-Osten ausgerichteten Garten.
Obergeschoß( ca. 55m²)
Vorraum, zwei Schlafzimmer (ca.16,28 & 16,21m²), eines mit Ausgang auf die 8m² große Terrasse, begehbare 4m² Garderobe, 10m² großes Badezimmer mit Wanne und Dusche & WC
Dachgeschoss ( ca. 44m²)
44m² großes Dachzimmer
Untergeschoß ( ca. 55m²)
Wohn/Schlafzimmer (20m²) mit anschließendem Duschbad mit WC (5m²), separates Gäste WC, Weinkeller/Speis, sowie großer Wirtschafts-und Technikraum (15m²)
Ausstattung:
• Generalsanierung 2020
• Parkettboden bzw. Fliesen
• Luxus Einbauküche
• Terrasse
• Fussbodenheizung (Gas)
• Kabel-& Satelliten-TV, Internetanschluß
• Wirtschaftsraum mit Waschmaschine und Trockner- Anschluss
• Untergeschoss mit Wohnraum bzw. im Fitnessraum/Spielzimmer
• unverbaubarer Fernblick
• Balkon: 7m²
• Dachterrasse: 8m²
• Garten: ca. 300 m²
360° Tour:
https://360.kalandra.at/view/fullscreen/id/VZ74N
LUXURY SINGLE-FAMILY HOUSE IN DORNBACH
This single-family house, located in a prime location in Dornbach, offers a unique, unobstructed view of Vienna and a total living area of approximately 220m². It is spread over three levels with the following layout:
Garden level (approx. 66m²)
Entrance hall (4m²), large living and dining room (62m²), access to a south east facing terrace overlooking the rear garden
Upper floor (approx. 55m²)
Entrance hall, two bedrooms (approx. 16.28m² & 16.21m²), one with access to the 8m² terrace, walk in wardrobe (4m² ), 10m² bathroom with tub, shower, and toilet
Attic (approx. 44m²)
44m² attic room
Lower floor (approx. 55m²)
Living room/bedroom (20m²) with en-suite bathroom including toilet, seperate guest toilet, wine cellar/pantry as well as large utility/storage room (15m²)
Features:
• Completely renovated in 2020
• Parquet flooring or tiles
• Luxury fitted kitchen
• Terrace
• Underfloor heating (gas)
• Cable and satellite TV, internet connection
• Utility room with washer and dryer connection
• Lower floor with living room or fitness room/playroom
• Unobstructed panoramic view
• Balcony: 7m²
• Roof terrace: 8m²
• Garden: approx. 300m²
360° tour:
https://360.kalandra.at/view/fullscreen/id/VZ74N
Infrastruktur / Entfernungen
Gesundheit
Arzt <1.000m
Apotheke <500m
Klinik <2.500m
Krankenhaus <2.000m
Kinder & Schulen
Schule <2.000m
Kindergarten <1.000m
Universität <2.000m
Höhere Schule <3.500m
Nahversorgung
Supermarkt <500m
Bäckerei <1.000m
Einkaufszentrum <2.500m
Sonstige
Geldautomat <2.500m
Bank <2.500m
Post <500m
Polizei <3.000m
Verkehr
Bus <500m
U-Bahn <3.000m
Straßenbahn <1.000m
Bahnhof <3.000m
Autobahnanschluss <6.000m
Angaben Entfernung Luftlinie / Quelle: OpenStreetMap
Eckdaten
| Kaufpreis: | 1.850.000,00 € |
| Fläche: | 220,00 m² |
| Zimmer: | 6 |
Basisdaten zur Immobilie
| Objektnr: | 18452 |
| Art: | Haus - Einfamilienhaus |
| Land: | Österreich |
| Baujahr: | 1930 |
| Zustand: | Neuwertig |
| Kaufpreis: | 1.850.000,00 € |
| Provision: | 3% des Kaufpreises zzgl. 20% USt. |
| Wohnfläche: | 220,00 m² |
| Grundstücksfl.: | 420,00 m² |
| Zimmer: | 6 |
| Bäder: | 2 |
| WC: | 3 |
| Balkone: | 1 |
| Terrassen: | 1 |
| fGEE: | 139,00 |
Ausstattung
Gas, Etagenheizung
Internet und TV
Information zur Internet und TV Versorgung hier
Ihre persönliche Beratung
Mag. Robin Kalandra
robin@kalandra.at
+43-1533326913
+43-69911804004
F +43-1-533-32-69-20

