360° TOUR // TERRASSENWOHNUNG in PÖTZLEINSDORF
Wohnung
,
1180
Wien


































Beschreibung der Immobilie
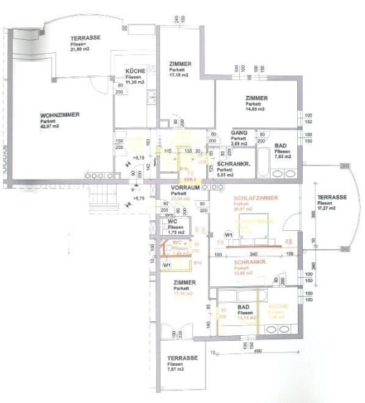
Diese großzügige Wohnung mit 4 Schlafzimmern und sehr großen Terrassen liegt im vorletzten Liftstock eines besonders gepflegten und eleganten Wohnhauses in herrlicher Ruhelage.
Raumaufteilung:
Eingangsbereich, 42m² großer Wohnsalon mit großzügiger 22m² Südwest- Terrasse und anschließender kleiner 11m² Küche, 3 großzügige Schlafzimmern ( 15m², 17m² & 17m²) mit einer weiteren Terrasse ( 8m² ), ein Schrankraum, 40m² großer Masterbedroom mit begehbare Einbau-Garderobe, 2 Badezimmer
Gäste-Toilette mit Handwaschbecken sowie eine zweite separate Toilette mit Handwaschbecken.
Für Fahrräder und Kinderwägen gibt es einen allgemeien Abstellraum.
Das Kellerabteil (ca.10m²) ist besonders großzügig und ist bereits mit ordentlichen Regalen ausgestattet.
Ausstattung:
• Eingangsbereich mit modernen farblich gedämpften Fliesen ausgestattet
• Wohnräume Parkett & Steinboden,
• Zentralheizung
• Einbauküche
• Sämtliche Räume haben sehr geschmackvolle moderne Lampen, die vom Mieter verwendet werden können.
• Personenaufzug
• Bad mit Fenster, Badewanne & Dusche,
• Kabel / Satelliten-TV,
• Tiefgarage,
• Nordwestbalkon / -terrasse,
• Südwestbalkon / -terrasse,
• Fahrradraum,
• Abstellraum,
• Außenliegender Sonnenschutz,
• Getrennte Toiletten, Gäste-WC,
• Mansarddach,
• Fenster Doppel- / Mehrfachverglasung
Nebenkosten:
Im Haus stehen dem Mieter 2 Garagenstellplätze (21 + 13) zur Verfügung, pro Stellplatz 1000,-- EURO + 20 % MwSt.
Für Fahrräder und Kinderwägen gibt es einen ordentlichen großen Raum.
Das Kellerabteil (9,72 m²) ist besonders großzügig und ist bereits mit Regalen ausgestattet.
Die Wohnung wird über die Hauszentralheizung beheizt, und mit Warmwasser versorgt und werden zusätzlich zur Miete vorgeschrieben.
Die Kosten für Kaltwasser sind in den Betriebskosten bereits enthalten.
Infrastruktur:
Verkehrsmitteln (Straßenbahn 41) bei der U6/Volksoper, beim Lycee Francais de Vienne,
direkt bei der Universität am Schottenring.
Nur ein paar Schritte zum Pötzleinsdorfer Schlosspark, der direkt an den Wienerwald angebunden
360 Tour:
https://360.kalandra.at/view/fullscreen/id/VZ7M3
TERRACE APARTMENT with VIEW in PÖTZLEINSDORF
This spacious apartment with 4 bedrooms and very large terraces is located in the penultimate lift floor A particularly well-kept, elegant and modern residential building in a beautiful quiet location.
Layout:
2nd Floor
Entrance hall, 42m² living room with a spacious 22m² southwest-facing terrace and adjoining small 11m² kitchen, 3 spacious bedrooms (15m², 17m² & 17m²) with a further terrace (8m²), a closet, a 40m² master bedroom with a walk-in wardrobe, 2 bathrooms, a guest toilet with a hand basin, and a second separate toilet with a hand basin.
For storage of bicycles and strollers there is a common room.
The cellar compartment (ca. 10m²) is particularly generous and equipped with neat shelves.
Features:
• entrance area equipped with modern color-damped tiles
• living spaces parquet & stone flooring,
• central house heating system
• modern, fully equipped kitchen
• tasteful modern lamps & Lightning (can be used by the optional)
• elevator
• bathroom with window, bath & shower,
• cable-& satellite TV,
• underground car parking,
• northwest balcony / terrace,
• southwest balcony / terrace,
• bike storage room,
• storage room/ cellar compartment,
• outside sunscreen,
• mansard/ roof location,
• double / multiple glazing window
In the house 2 garage parking spaces (Nr. 21 + 13) are available each for 100,-- EURO + plus 20% vat./ per month.
The apartment is heated by the house central heating that supplies with hot water and are exta to the rent.
The costs for cold water are included in the stated operating costs.
Infrastructure:
Transportation (tram 41) at the U6 / Volksoper, at the Lycee Francais de Vienne,
directly at the University am Schottenring.
Only a few steps to the Pötzleinsdorfer Park which is directly connected to the Wienerwald.
360 Tour:
https://360.kalandra.at/view/fullscreen/id/VZ7M3
Der Immobilienmakler erklärt, dass er – entgegen dem in der Immobilienwirtschaft üblichen Geschäftsgebrauch des Doppelmaklers – einseitig nur für den Vermieter tätig ist.
Infrastruktur / Entfernungen
Gesundheit
Arzt <1.000m
Apotheke <1.000m
Klinik <2.000m
Krankenhaus <2.000m
Kinder & Schulen
Schule <500m
Kindergarten <1.000m
Universität <2.500m
Höhere Schule <3.000m
Nahversorgung
Supermarkt <1.000m
Bäckerei <1.000m
Einkaufszentrum <3.000m
Sonstige
Geldautomat <2.000m
Bank <2.000m
Post <1.000m
Polizei <2.500m
Verkehr
Bus <500m
Straßenbahn <1.000m
U-Bahn <3.000m
Bahnhof <3.000m
Autobahnanschluss <5.000m
Angaben Entfernung Luftlinie / Quelle: OpenStreetMap
Eckdaten
Objektnr: | 18474 |
Art: | Wohnung |
Land: | Österreich |
Baujahr: | 2000 |
Zustand: | Neuwertig |
Gesamtmiete: | 3.915,23 € |
Kaltmiete (netto): | 3.098,02 € |
Kaltmiete: | 3.559,30 € |
Betriebskosten: | 406,50 € |
MwSt Gesamt: | 355,93 € |
Wohnfläche: | 193,64 m² |
Zimmer: | 5 |
Bäder: | 2 |
WC: | 3 |
Balkone: | 1 |
Terrassen: | 3 |
Garten: | 137,83 m² |
Keller: | 10,00 m² |
Ausstattung
Zentralheizung, Personenaufzug
Internet und TV
Information zur Internet und TV Versorgung hier
Ihre persönliche Beratung
Mag. Robin Kalandra
KALANDRA Immobilien Robert Kalandra e.U.
E robin@kalandra.at
T +43-1533326913
H +43-69911804004
F +43-1-533-32-69-20