INNENSTADT-BÜRO in der BÖRSE
Büro / Praxis
,
1010
Wien
Beschreibung der Immobilie
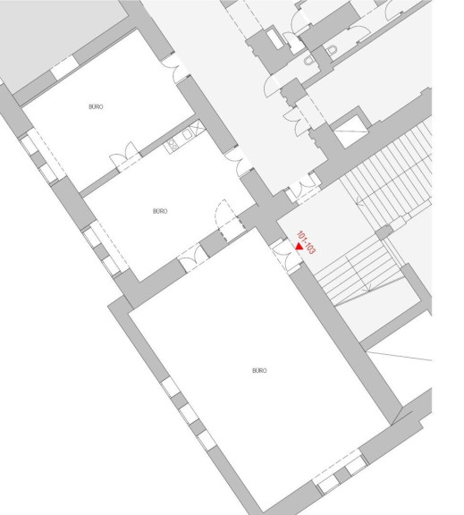
Das im ersten Stock des neu renovierten und durch einen Zubau erweiterten Gebäudes gelegene Büro bietet folgende
Raumaufteilung:
Vorraum, 3 großes Zimmer, , eine Teeküche, WC.
Ausstattung:
Alle Büroeinheiten wurden neu adaptiert, sind mit einer modernen Büroausstattung (Kabelkanäle, Telefonleitungen, Fan-Coil-Anlage,...) ausgestattet und verfügen über doppelflügige Holztüren sowie Parkettboden.
Garagenplätze können im Haus um € 208,-/ Platz zzgl. 20% USt., während der Wintermonate (November-März) mit Aufschlag von 30%, inklusive 4 Autowäschen angemietet werden.
Die Kosten für Heizung und Klimaanlage werden gesondert zusätzlich verrechnet.
Infrastruktur / Entfernungen
Gesundheit
Arzt <500m
Apotheke <500m
Klinik <500m
Krankenhaus <1.500m
Kinder & Schulen
Schule <500m
Kindergarten <500m
Universität <500m
Höhere Schule <500m
Nahversorgung
Supermarkt <500m
Bäckerei <500m
Einkaufszentrum <1.500m
Sonstige
Geldautomat <500m
Bank <500m
Post <500m
Polizei <500m
Verkehr
Bus <500m
U-Bahn <500m
Straßenbahn <500m
Bahnhof <500m
Autobahnanschluss <3.000m
Angaben Entfernung Luftlinie / Quelle: OpenStreetMap
Eckdaten
| Kaltmiete (netto): | 3.004,90 € |
| Fläche: | 124,00 m² |
| Zimmer: | 3 |
Basisdaten zur Immobilie
| Objektnr: | 18476 |
| Art: | Büro / Praxis |
| Land: | Österreich |
| Baujahr: | 1900 |
| Zustand: | Neuwertig |
| Kaltmiete (netto): | 3.004,90 € |
| Kaltmiete: | 3.660,24 € |
| Provision: | 3 Bruttomonatsmieten zzgl. 20% USt. |
| Betriebskosten: | 655,34 € |
| MwSt Gesamt: | 732,05 € |
| Nutzfläche: | 124,00 m² |
| Zimmer: | 3 |
| WC: | 1 |
| Heizwärmebedarf: | E 182,16 kWh/m²a |
Ausstattung
Zentralheizung, Personenaufzug
Internet und TV
Information zur Internet und TV Versorgung hier
Ihre persönliche Beratung
Mag. Robin Kalandra
robin@kalandra.at
+43-1533326913
+43-69911804004
F +43-1-533-32-69-20

