360 TOUR - PENTHOUSE mit TERRASSE im PRATERCOTTAGE
Wohnung
- Penthouse,
1020
Wien
Beschreibung der Immobilie
DACHGESCHOßWOHNUNG im PRATERCOTTAGE
Die Wohnung liegt im ausgebauten Dachgeschoß (BJ 2012) eines generalsanierten Jahrhundertwendehauses mit Panoramablick über die Stadt bis zum Kahlenberg und Leopoldsberg.
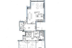
vRaumaufteilung:
großzügiges Vorzimmer (ca.14m²), großes Wohn-& Eßzimmer mit offen gestalteter Küche (ca. 54m²) und direktem Ausgang auf eine ca. 18m² große, innenhof-südostseitige Terrasse;
drei Schlafzimmer (je ca.19 m²) 2 Badezimmer, einen begehbaren Schrankraum (ca. 5,20m²),Gäste-WC und zwei Abstellräume (je ca. 2,50m²).
Ausstattung:
• in den Wohnräumen massiver Eichen-Parkettboden
• Naßräume mit anthrazitgrauem Feinsteinzeug und Designarmaturen ausgestattet
• komplette Design-Einbauküche (BULTHAUP) mit hochwertigen Einbaugeräten (Marke:SIEMENS)
• offener Kamin im Wohnraum
• Decken- & Bodenkühlung
• Smart Home BUS System & Alarmanlage
• ein trockenes Kellerabteil gehört zu der Wohnung
• Hauszentralheizung
Zusätzliche monatliche Nebenkosten:
Heizungsakonto: € 240,35 plus 20% USt.
Warmwasserakonto: € 76,91 plus 10% USt.
Kühlungsakonto: € 192,28 plus 20% USt.
Ein Garagenplatz ist bei Bedarf um 120,- Euro/ Monat in der Nähe anmietbar.
Infrastruktur:
Bus 4a, Straßenbahnlinie 1, Radfahren, Spazieren und Joggen in der Prater Hauptallee.
Angeboten wird ein auf 5 Jahre befristetes Mietverhältnis mit einjährigem, mieterseitigen Kündigungsverzicht und Verlängerungsoption.
Virtuelle 360 ° Tour
Klicken Sie hier für eine virtuelle 360 ° Tour
Der Immobilienmakler erklärt, dass er – entgegen dem in der Immobilienwirtschaft üblichen Geschäftsgebrauch des Doppelmaklers – einseitig nur für den Vermieter tätig ist.
Infrastruktur / Entfernungen
Gesundheit
Arzt <500m
Apotheke <500m
Klinik <1.500m
Krankenhaus <1.500m
Kinder & Schulen
Schule <500m
Kindergarten <500m
Universität <500m
Höhere Schule <1.500m
Nahversorgung
Supermarkt <500m
Bäckerei <500m
Einkaufszentrum <1.000m
Sonstige
Geldautomat <500m
Bank <1.000m
Post <500m
Polizei <1.000m
Verkehr
Bus <500m
U-Bahn <1.000m
Straßenbahn <500m
Bahnhof <500m
Autobahnanschluss <2.500m
Angaben Entfernung Luftlinie / Quelle: OpenStreetMap
Eckdaten
| Gesamtmiete: | 3.899,16 € |
| Fläche: | 160,00 m² |
| Zimmer: | 4 |
Basisdaten zur Immobilie
| Objektnr: | 16299 |
| Art: | Wohnung - Penthouse |
| Land: | Österreich |
| Baujahr: | 1900 |
| Zustand: | Erstbezug |
| Gesamtmiete: | 3.899,16 € |
| Kaltmiete (netto): | 3.176,16 € |
| Kaltmiete: | 3.544,69 € |
| Provision: | Gemäß Erstauftraggeberprinzip bezahlt der Abgeber die Provision. |
| Betriebskosten: | 296,43 € |
| MwSt Gesamt: | 354,47 € |
| Wohnfläche: | 160,00 m² |
| Zimmer: | 4 |
| Bäder: | 2 |
| WC: | 3 |
| Terrassen: | 1 |
| Keller: | 5,00 m² |
| Heizwärmebedarf: | 105,10 kWh/m²a |
Ausstattung
Zentralheizung, Personenaufzug, Kabel/Satelliten-TV
Internet und TV
Information zur Internet und TV Versorgung hier
Ihre persönliche Beratung
Mag. Robin Kalandra
robin@kalandra.at
+43-1533326913
+43-69911804004
F +43-1-533-32-69-20

