360° TOUR // REPRÄSENTATIVES ALTBAUBÜRO nahe ALBERTINA
Büro / Praxis
,
1010
Wien
Beschreibung der Immobilie
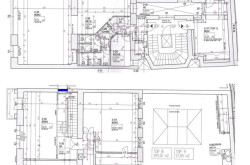
Diese Bürofläche liegt im 2. und 3.Liftstock eines repräsentativen Stilhauses und bietet folgende
Raumaufteilung:
2.Stock:
Vorraum, 3 hintereinander angeordnete Großraumbüros, ein weiteres Zimmer, Abstellraum, Küche, 2 separate WC-Anlagen;
Innenstiege in den
3.Stock:
Großraumbüro mit 2 Balkonen, 3 weitere Zimmer, Abstellraum, Küche, 2 separate WC-Anlagen.
Ausstattung:
- der Bürobereich ist durchgehend Eichen-Parkettboden ausgelegt
- die Sanitär- & Abstellräume sind weiß/ grau verfliest
- ausgestattete Küche
Zur Berücksichtigung individueller Mieterwünsche, wurden die Oberflächen noch nicht final adaptiert und kann entweder noch eine Sanierung gemäß Mieterwunsch (in Absprache) erfolgen oder es wird eine Baukostenbeteiligung angeboten.
Die Vermietung erfolgt ausschließlich für Bürozwecke.
Mietvertragsdauer: befristet auf 10 Jahre
Kündigungsverzicht: 3 Jahre
Kaution: 3-6 Bruttomonatsmieten (Bankgarantie möglich)
Aktuelles Heizkostenakonto: Euro 467,06
Ein Energieausweis wurde beim Eigentümer angefordert und wird nachgereicht.
360° Tour:
https://360.kalandra.at/view/portal/id/VZRY9
Infrastruktur / Entfernungen
Gesundheit
Arzt <500m
Apotheke <500m
Klinik <1.000m
Krankenhaus <1.500m
Kinder & Schulen
Schule <500m
Kindergarten <1.000m
Universität <500m
Höhere Schule <500m
Nahversorgung
Supermarkt <500m
Bäckerei <500m
Einkaufszentrum <500m
Sonstige
Geldautomat <500m
Bank <500m
Post <500m
Polizei <500m
Verkehr
Bus <500m
U-Bahn <500m
Straßenbahn <500m
Bahnhof <500m
Autobahnanschluss <3.500m
Angaben Entfernung Luftlinie / Quelle: OpenStreetMap
Eckdaten
| Kaltmiete (netto): | 9.341,20 € |
| Fläche: | 467,06 m² |
| Zimmer: | 12 |
Basisdaten zur Immobilie
| Objektnr: | 18006 |
| Art: | Büro / Praxis |
| Land: | Österreich |
| Baujahr: | 1900 |
| Zustand: | Gepflegt |
| Kaltmiete (netto): | 9.341,20 € |
| Kaltmiete: | 10.443,95 € |
| Provision: | 3 Bruttomonatsmieten zzgl. 20% USt. |
| Betriebskosten: | 962,63 € |
| MwSt Gesamt: | 2.088,79 € |
| Nutzfläche: | 467,06 m² |
| Zimmer: | 12 |
| WC: | 7 |
| Balkone: | 2 |
| Heizwärmebedarf: | 114,00 kWh/m²a |
| fGEE: | 2,63 |
Ausstattung
Zentralheizung, Personenaufzug
Internet und TV
Information zur Internet und TV Versorgung hier
Ihre persönliche Beratung
Mag. Robin Kalandra
robin@kalandra.at
+43-1533326913
+43-69911804004
F +43-1-533-32-69-20

