360° TOUR // REPRÄSENTATIVES ALTBAUBÜRO nahe ALBERTINA
Büro / Praxis
,
1010
Wien
Beschreibung der Immobilie
Die geräumigen Büroflächen liegen im 2., 3. und 4. Liftstock eines repräsentativen Stilhauses und bieten folgende
Raumaufteilung:
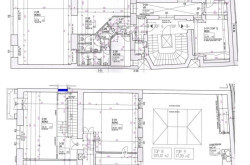
Top 6, 7, 8: (2. & 3. Stock - 467,06m²):
2. Stock:
Vorraum, 3 hintereinander angelegte Großraumbüros, ein weiterer Büroraum, Abstellraum, Küche, 2 separate WC-Anlagen;
Innenstiege in den
3. Stock:
ein Großraumbüro mit 2 Balkonen, 3 weitere Büroräume, Abstellraum, Küche, 2 separate WC-Anlagen.
Top 10 (4.Stock - 193,58m²):
Vorraum, 6 Zimmer, Server-/ Abstellraum, Küche, 2 getrennte WC-Anlagen (Herren/ Damen).
Ausstattung:
- der Bürobereich ist durchgehend Eichen-Parkettboden ausgelegt
- die Sanitär- & Abstellräume sind weiß/ grau verfliest
- ausgestattete Küche
Zur Berücksichtigung individueller Mieterwünsche, wurden die Oberflächen noch nicht final adaptiert und kann entweder noch eine Sanierung gemäß Mieterwunsch (in Absprache) erfolgen oder es wird eine Baukostenbeteiligung angeboten.
Die Vermietung erfolgt ausschließlich für Bürozwecke.
Mietvertragsdauer: 10 Jahre befistet
Kündigungsverzicht: 3 Jahre
Kaution: 3-6 Bruttomonatsmieten (Bankgarantie möglich)
Heizkostenakonto: Euro 660,64
Ein Energieausweis wurde beim Eigentümer angefordert und wird nachgereicht.
360° Tour_top 6.7.8
https://360.kalandra.at/view/portal/id/VZRY9
360° Tour_top 10
https://360.kalandra.at/view/portal/id/VZRYF
Infrastruktur / Entfernungen
Gesundheit
Arzt <500m
Apotheke <500m
Klinik <1.000m
Krankenhaus <1.500m
Kinder & Schulen
Schule <500m
Kindergarten <1.000m
Universität <500m
Höhere Schule <500m
Nahversorgung
Supermarkt <500m
Bäckerei <500m
Einkaufszentrum <500m
Sonstige
Geldautomat <500m
Bank <500m
Post <500m
Polizei <500m
Verkehr
Bus <500m
U-Bahn <500m
Straßenbahn <500m
Bahnhof <500m
Autobahnanschluss <3.500m
Angaben Entfernung Luftlinie / Quelle: OpenStreetMap
Eckdaten
| Kaltmiete (netto): | 13.213,00 € |
| Fläche: | 660,64 m² |
| Zimmer: | 18 |
Basisdaten zur Immobilie
| Objektnr: | 18009 |
| Art: | Büro / Praxis |
| Land: | Österreich |
| Baujahr: | 1900 |
| Zustand: | Gepflegt |
| Kaltmiete (netto): | 13.213,00 € |
| Kaltmiete: | 14.772,80 € |
| Provision: | 3 Bruttomonatsmieten zzgl. 20% USt. |
| Betriebskosten: | 1.361,61 € |
| MwSt Gesamt: | 2.954,56 € |
| Nutzfläche: | 660,64 m² |
| Zimmer: | 18 |
| WC: | 10 |
| Balkone: | 2 |
| Heizwärmebedarf: | 114,00 kWh/m²a |
| fGEE: | 2,63 |
Ausstattung
Zentralheizung, Personenaufzug
Internet und TV
Information zur Internet und TV Versorgung hier
Ihre persönliche Beratung
Mag. Robin Kalandra
robin@kalandra.at
+43-1533326913
+43-69911804004
F +43-1-533-32-69-20

