360 TOUR // NEUBAU - BÜROFLÄCHEN im ANDOMEDA TOWER
Büro / Praxis
,
1220
Wien
Beschreibung der Immobilie
Bei dem von Arch.Prof. Wilhelm Holzbauer entworfenen Andromeda Tower trifft zeitlose Architektur auf einwandfreie Funktionalität.
Die Verwendung hochwertiger Materialien verleiht dem Tower nicht nur Qualität vom Feinsten, sondern auch noch einen besonderen Glanz.
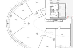
Der Grundriss in elliptischer Form garantiert neben einer effizienten Raumnutzung auch die Möglichkeit zu einer individuellen Raumgestaltung.
Je nach Wunsch können getrennte Einzelbüros bis zu kommunikativen Großraumbüros geschaffen oder mehrere Etagen zu einer Büromaisonette verbunden werden.
Raumaufteilung - Top 8.1 (28Stock):
großzügiger Vorraum/ Empfang, derzeit 6 Büroräume, davon ein weiter strukturierbares Großraumbüro, 1 Serverraum/ 2 Abstellräume, Küche/ Sozialraum sowie 2 WC-Anlagen (Damen und Herren getrennt).
Ausstattung:
- Variabilität in der Raumgestaltung durch abgehängte Decken und Doppelböden
- Bodenbelag: Teppich
- öffenbare Fenster
- mittels Kühlgeräten gekühlt
- strukturierte Verkabelung
- computergesteuerte Hausleittechnik
- 24-Stunden Technik Service
- moderne Zutritts- und Sicherheitskontrolle
- Portierservice
Durch die Nähe zum Vienna International Centre bzw. der UNO und die Eingebundenheit in eine Umgebung bestehend aus hochwertigen Bürokomplexen, Wohngebäuden und Freizeiteinrichtungen bietet sich eine sehr gute Infrastruktur rund um den Andromeda Tower.
Auch die öffentliche Verkehrsanbindung der Umgebung ist sehr gut.
Der Tower im 22. Bezirk liegt an der Schnittstelle wichtiger Verkehrsachsen.
Mit der in unmittelbarer Nähe gelegenen U1 gelangt man in nur 9 Minuten zum Stephansplatz, ins Zentrum Wiens.
Über die Autobahn A22 gelangt man in ca. 20 - 25 Minuten zum Flughafen Wien-Schwechat.
In der hauseigenen Tiefgarage stehen PKW-Stellplätze um € 150,00 netto/ Monat zur Verfügung.
Angeboten wird ein auf 10 Jahre befristetes Mietverhältnis mit dreijährigem, mieterseitigen Kündigungsverzicht und Verlängerungsoption.
360 Tour:
https://360.kalandra.at/view/portal/id/VVQRT
Infrastruktur / Entfernungen
Gesundheit
Arzt <500m
Apotheke <500m
Klinik <1.500m
Krankenhaus <2.500m
Kinder & Schulen
Schule <500m
Kindergarten <500m
Universität <2.000m
Höhere Schule <3.000m
Nahversorgung
Supermarkt <500m
Bäckerei <500m
Einkaufszentrum <2.000m
Sonstige
Geldautomat <500m
Bank <500m
Post <500m
Polizei <500m
Verkehr
Bus <500m
U-Bahn <500m
Straßenbahn <1.500m
Bahnhof <500m
Autobahnanschluss <500m
Angaben Entfernung Luftlinie / Quelle: OpenStreetMap
Eckdaten
| Kaltmiete (netto): | 4.357,21 € |
| Fläche: | 335,00 m² |
| Zimmer: | 6 |
Basisdaten zur Immobilie
| Objektnr: | 18166 |
| Art: | Büro / Praxis |
| Land: | Österreich |
| Baujahr: | 1998 |
| Zustand: | Neuwertig |
| Kaltmiete (netto): | 4.357,21 € |
| Kaltmiete: | 6.317,96 € |
| Provision: | 3 Bruttomonatsmieten zzgl. 20% USt. |
| Betriebskosten: | 1.960,75 € |
| MwSt Gesamt: | 1.263,59 € |
| Nutzfläche: | 335,00 m² |
| Zimmer: | 6 |
| WC: | 2 |
| Heizwärmebedarf: | C 76,00 kWh/m²a |
Ausstattung
Zentralheizung, Personenaufzug
Internet und TV
Information zur Internet und TV Versorgung hier
Ihre persönliche Beratung
Mag. Robin Kalandra
robin@kalandra.at
+43-1533326913
+43-69911804004
F +43-1-533-32-69-20

