360 TOUR //GROSSRAUM-BÜRO IM SATURN TOWER
Büro / Praxis
,
1220
Wien
Beschreibung der Immobilie
Diese im einem über dreißig Stockwerken gelegene Luxuswohnung in einem Tower auf der Donauplatte ist ein Erstbezug und gliedert sich wie folgt:
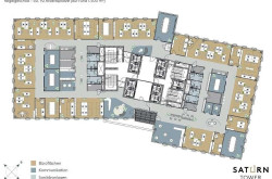
Objektbeschreibung
Flächen- und Kostenübersicht
Art: Büro
Nutzfläche: ca. 1.100 m² teilbar
Nettomiete/ m²: ab EUR 12,50
Netto-BK/m²: EUR 4,85 inl Heizung und Kühlung
Allgemeine Objektbeschreibung
Direkt am Donaupark und mit optimaler Verkehrsanbindung sowohl an die Autobahn als auch an die U-Bahn stellt der Saturn Tower ein weiteres Sternenbildnis am Bürohimmel der Vienna DC dar.
Der Saturn Tower, von den Architekten Hollein und Neumann entworfen, setzt Maßstäbe für den Topbürohausbau in Wien.
Höchste Flächeneffizienz mit maximaler Flexibilität wird mit einem ganz besonderen Ambiente fürs Arbeiten vereint. Schon von außen präsentiert sich der Saturn Tower in der Vienna DC eindrucksvoll. Ein harmonisches Wechselspiel von Einschnitten und Erkerelementen strukturiert den von einer Glasfassade geprägten Baukörper und verleiht ihm ein markantes und unverwechselbares Aussehen.
Eine weitere Besonderheit sind die in vielen Stockwerken vorhandenen Terrassen und Balkone, von denen ein atemberaubender Fernblick genossen werden kann.
Höhepunkt der von Glas, Licht und Offenheit bestimmten Architektur ist die Skylobby im 21. Stockwerk „Wolke 21", eine weitere Eventlocation der Vienna DC, welche für Veranstaltungen, auch von Dritten, angemietet werden kann.
Die einzelnen Geschosse des neuen Büroturms zeichnen sich durch größtmögliche Flächeneffizienz, gestatten variable Größen, individuelle Nutzungsmöglichkeiten und analog zur Architektur ist auch die Ausstattung auf dem letzten Stand der Technik.
Kaution: 6 BMM
Provision: 3 BMM
Kümdigungsverzicht: 3 Jahre
Mietdauer: 10 Jahre
Verfügbar: ab sofort
Ausstattung
Teppich B1, Q1 auf Hohlraumboden bzw. Doppelbodenstreifen
abgehängte Decke
Innenwände Gipskartonwände, Dispersion weiß
Glaswände tlw. im Bestand vorhanden
Bodentanks mit Steckdosenund Anschlüsse für EDV, Telefon, etc
Internetprovider: A1, COLT, Video-Broadcast, Tele 2, UPC, Huemer IT
Beleuchtung bildschirmarbeitsplatztauglich, Spiegelrasterleuchten
Konditionierte Ab- und Zuluftanlage bzw. über aktive Kühlbalken
Plattenheizkörper
Sanitärgruppen
Teeküchenanschlüsse bzw. Teeküchen im Bestand vorhanden
Blendschutz innenliegend
Fahrradabstellplatz versperrbar
Energieausweis
HWB: 23,33 kWh/m².a
Stellplätze
Garage im Haus: EUR 159/Stellplatz/Monat/netto
PKW Kurzparkticket: EUR 2,50/h
Lage
Sowohl mit öffentlichen als auch mit privaten Verkehrsmitteln leicht erreichbar. Vom „alten" in das neue Stadtzentrum sind es mit U-Bahn, Auto oder Fahrrad nur wenige Minuten. Direkt um die Vienna DC findet sich Wiens beliebtestes Freizeit- und Erholungsgebiet, die Donauinsel und der Donaupark.
Infrastruktur
Sehr gute Infrastruktur durch umliegende Gastronomiebetriebe, Supermärkte, Bäckereien, Bankfilialen, Drogeriemarkt und Trafiken. In unmittelbarer Nähe befinden sich ebenfalls Kindergärten und ein Ärztezentrum.
Öffentliche Verkehrsanbindung
U-Bahn: U1 (Station VIC Kaisermühlen)
360 Tour:
https://360.kalandra.at/view/portal/id/VZZMB
Infrastruktur / Entfernungen
Gesundheit
Arzt <1.000m
Apotheke <500m
Klinik <2.000m
Krankenhaus <2.500m
Kinder & Schulen
Schule <500m
Kindergarten <500m
Universität <2.500m
Höhere Schule <2.500m
Nahversorgung
Supermarkt <500m
Bäckerei <500m
Einkaufszentrum <2.000m
Sonstige
Geldautomat <500m
Bank <500m
Post <500m
Polizei <1.000m
Verkehr
Bus <500m
U-Bahn <500m
Straßenbahn <1.500m
Bahnhof <500m
Autobahnanschluss <500m
Angaben Entfernung Luftlinie / Quelle: OpenStreetMap
Eckdaten
| Kaltmiete (netto): | 25.211,00 € |
| Fläche: | 1.483,00 m² |
| Zimmer: | 25 |
Basisdaten zur Immobilie
| Objektnr: | 18189 |
| Art: | Büro / Praxis |
| Land: | Österreich |
| Baujahr: | 2000 |
| Zustand: | Neuwertig |
| Kaltmiete (netto): | 25.211,00 € |
| Kaltmiete: | 25.532,92 € |
| Provision: | 3 Bruttomonatsmieten zzgl. 20% USt. |
| Betriebskosten: | 321,92 € |
| Heizkosten: | 150,00 € |
| MwSt Gesamt: | 5.136,58 € |
| Nutzfläche: | 1.483,00 m² |
| Zimmer: | 25 |
| WC: | 10 |
| Balkone: | 1 |
| Heizwärmebedarf: | A 23,33 kWh/m²a |
| fGEE: | C 1,08 |
Ausstattung
Zentralheizung, Personenaufzug
Internet und TV
Information zur Internet und TV Versorgung hier
Ihre persönliche Beratung
Mag. Robin Kalandra
robin@kalandra.at
+43-1533326913
+43-69911804004
F +43-1-533-32-69-20

