Grundstücke für 3 Reihenhäuser (Bauherrenmodel)

Grundstück - Baugrund Eigenheim, 6060 Hall in Tirol

Beschreibung der Immobilie

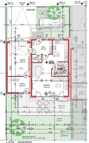
Grundstücke zur Errichtung von 3 Reihenhäusern

  • Verkauft werden 3 eigenständige Grundstücke samt Planunterlagen und Baubescheid;
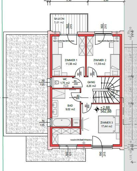
  • Wohnflächen von 110 m² bis 140 m² möglich;
  • Individuelle Planung;
  • Bauträger (Baufirma) frei wählbar;
  • Auf Wunsch Begleitung in allen Belangen durch den Planer/Baumeister.

Gerne senden wir Ihnen unsere Unterlagen und Informationen zu diesem Projekt.

Eckdaten

Objektnr: 0013000281
Art: Grundstück - Baugrund Eigenheim
Land: Österreich
Kaufpreis: 278.000,00
Provision: 3% des Kaufpreises plus 20% USt.
Wohnfläche: 110,00 m²
Grundstücksfl.: 255,00 m²
Zimmer: 4
Bäder: 2
WC: 2
Balkone: 1
Terrassen: 1
Heizwärmebedarf:  B  48,90 kWh/m²a
fGEE:  A+  0,67
Immobilie merken Exposé

Ausstattung

Fußbodenheizung


Internet und TV

Information zur Internet und TV Versorgung hier


Immobilie anfragen


Ihre persönliche Beratung

Raiffeisen Regionalbank Schwaz-Wattens eGen Immobilien

Team Gasser & Gasser

Raiffeisen Tirol Schwaz

E immobilien@rrb-schwaz-wattens.at

T +43 5242 6980 560895242698056089