Residieren im Schloss! Haus 2/13
Wohnung
,
7100
Neusiedl am See
Beschreibung der Immobilie
Eckdaten
Objektnr: | 132495 |
Art: | Wohnung |
Land: | Österreich |
Gesamtmiete: | 1.251,80 € |
Kaltmiete (netto): | 870,00 € |
Kaltmiete: | 957,00 € |
Betriebskosten: | 268,00 € |
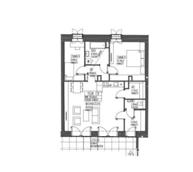
Wohnfläche: | 83,50 m² |
Zimmer: | 3 |
Bäder: | 1 |
Terrassen: | 1 |
Heizwärmebedarf: | C 90,00 kWh/m²a |
fGEE: | C 1,10 |
Ausstattung
Parkett, Einbauküche
Internet und TV
Information zur Internet und TV Versorgung hier
Ihre persönliche Beratung

Clemens Gamper
IMMOcontract Immobilien Vermittlung GmbH
E C.Gamper@IMMOcontract.at
H 0043676841420557