Erstbezug nach Sanierung - 3 Zimmer Dachgeschoßwohnung mit Terrasse in 1010 Wien!

Wohnung - Dachgeschoß, 1010 Wien

Lage der Immobilie

Die Votivkirche, das Burgtheater, die Universität sowie der Rathausplatz befinden sich keine 5 Gehminuten entfernt. Dadurch ist auch die Anbindung an den öffentlichen Verkehr sehr gut - zum Beispiel fahren von dort die Straßenbahnen 1, 71, D in regelmäßig kurzen Abständen. In ca. 8 Minuten Gehweg erreicht man zudem das Schottentor und somit auch die U2 und zahlreiche weitere Straßenbahn- sowie Busanbindungen. Unzählige Restaurants sowie auch weitere Geschäfte des täglichen Bedarfs befinden sich in der Nachbarschaft. Die Lage vereint das Beste zweier Welten: die Dynamik des urbanen Lebens im Stadtzentrum und gleichzeitig wünschenswerte Ruhe und Raum für einen selbst.

Beschreibung der Immobilie

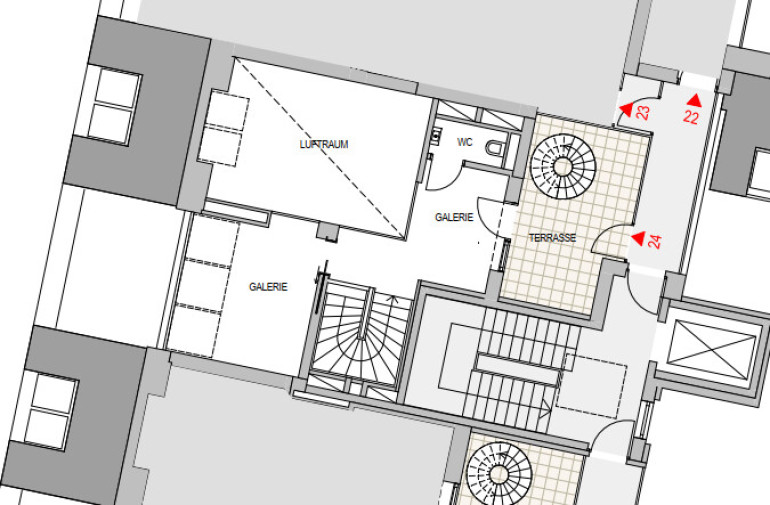
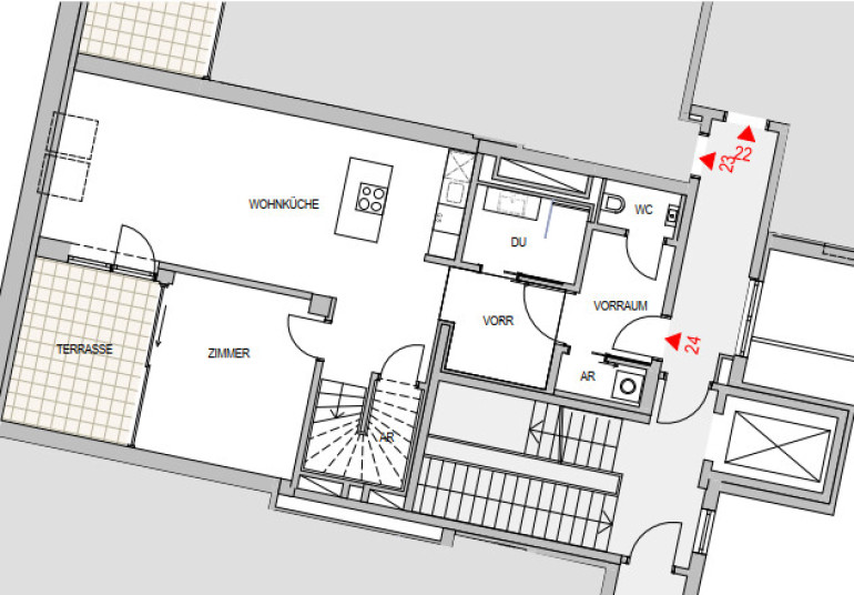
Inmitten der pulsierenden zentralen Innenstadt, jedoch abseits des Trubels und der Massen, liegt dieses Objekt in bester Lage des ersten Bezirks. Das Rathaus sowie der Rathausplatz, die Universität Wien und das Burgtheater sind fast direkte Nachbarn - dort wird derzeit ein schönes Jahrhundertwendehaus aufwändig generalsaniert sowie um ein Dachgeschoß erweitert. Im 2. - 4. OG entstehen somit 15 Wohnungen im Erstbezug-nach Sanierung sowie zusätzlich 7 Einheiten im neu ausgebauten Dachgeschoß. Die Wohnungen zählen zwischen ca. 60 - 170 m² und zwischen 2 bis 5 Zimmern. Bis auf 7 Objekte der insgesamt 22 verfügen alle über eine oder auch mehreren Freiflächen. In den historischen Regelgeschoßen entstehen prächtige Altbauwohnungen mit klassisch großzügiger Raumhöhe, im ausgebauten Dachgeschoß stilreiche, moderne Designerobjekte allesamt mit Terrassen und/oder Dachterrassen und fantastischem Stadtblick. Die Wohnung wird nicht möbliert vermietet.

Eckdaten

Objektnr: 109245846_19
Art: Wohnung - Dachgeschoß
Land: Österreich
Baujahr: 2019
Zustand: Erstbezug
Gesamtmiete: 3.595,00
Kaltmiete (netto): 2.987,97 €
Kaltmiete: 3.595,00 €
Betriebskosten: 280,21 €
Wohnfläche: 99,95 m²
Zimmer: 3
Bäder: 1
WC: 2
Terrassen: 3
Heizwärmebedarf:  B  36,23 kWh/m²a
fGEE:  A+  0,66
Immobilie merken Exposé

Ausstattung

Parkett, Fliesen, Steinboden, Zentralheizung, Fernwärme, Fußbodenheizung, Einbauküche, Personenaufzug, Nordbalkon, Ostbalkon, Südbalkon, Westbalkon, Dusche


Internet und TV

Information zur Internet und TV Versorgung hier


Immobilie anfragen


Ihre persönliche Beratung

ÖRAG Immobilien Vermittlung GmbH

Lara Steinbacher

ÖRAG Immobilien Vermittlung GmbH

E lara.steinbacher@oerag.at

T 00431534737200043153473261

H 004366488962125