Lage der Immobilie
Wilhelminenberg / KongreßbadBeschreibung der Immobilie
ENGLISH DESCRIPTION BELOW
HISTORIE DER LIEGENSCHAFT
Guido Gröger - während der K&K-Monarchie in Ybbs a.d.D. als Sohn eines Baumeisters geboren - war einer der erfolgreichsten Bauunternehmer seiner Zeit und Erbauer dieses schönen Gründerzeithauses aus 1906/1907.
Er konzipierte Gebäude nach eigenen Entwürfen und war namhafter Mitgestalter des kaiserlichen Wiens.
In der einschlägigen Literatur wird die Vermutung aufgestellt, dass Guido Gröger der Sitz der Ärtzekammer in 1010 Wien, Weihburggasse 10-12 zuzuordnen sei.
Als gesichert gilt seine Errichtung zahlreicher Miet-/Wohnhäuser, Villen, Doppelmietvillen, Pfarrhöfe, zweier Volksschulen und Sanatorien und eines Hotels; vorwiegend in den Bezirken 11.,13.,15.,16, 18.,19. zu Wien.
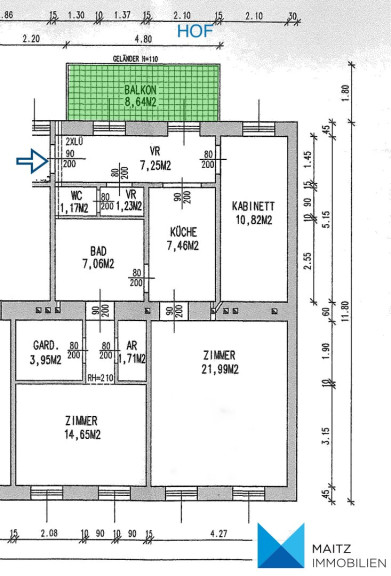
WOHNUNG
2. Liftstock
Wohnfläche ca. 77,29m2
zuzüglich ca. 8,64m2-Balkon
Details zum Grundriss:
+ Vorraum
+ 3 Zimmer (ein Zimmer ist via Badezimmer zu erreichen, siehe Plan)
+ Küche im Flur zu den beiden Zimmern
+ Bad mit Waschbecken, Dusche, Waschmaschinenanschluss
+ WC mit Handwaschbecken
+ kleiner Garderoberaum
+ Abstellraum
+ hofseitiger BALKON!
Küche: Geschirrspüler, Backofen, Herd, Ober-/Unterbauschränke
Herd/Ceranfeld und Geschirrspüler wurden im Jänner 2024 erneuert.
Ein E-Befund sowie Befund für den Ofen im Wohnzimmer liegen vor.
Die Gastherme ist im Bad untergebracht (Gasetagenheizung).
Ein Abstellraum am Gang vor der Wohnung gehört zum Objekt!
Zusätzlich kann auch ein Kellerabteil genutzt werden.
Ein Fahrradabstellraum im Souterrain ist ebenfalls vorhanden (begehbar direkt von der Straße über einen Stiegenabgang).
Besondere Ausstattungsmerkmale:
+ einflügelige Kunststofffenster
+ innenliegender Sonnenschutz (Jalousien)
Infrastruktur:
Einkaufs-, Sport- und Freizeitmöglichkeiten - vom Baumarkt bis zum Fitnesscenter - in unmittelbarer Gehdistanz
Kongreßpark & Kongreßbad
Wilhelminenberg
BAUHAUS
Öffentliche Verkehrsanbindung:
Straßenbahnlinien 2, 10, 43 (zB. Richtung U3 Ottakring, U3 Kendlerstraße oder Richtung U6 Josefstädter Str / Alser Str und in den 1. Bezirk)
Bus 44A, 46A, 46B
S-45 Hernals und Ottakring
Vertrag & Kosten:
Kaufpreis und Betriebskosten wie hier angegeben; keine USt.
Maklercourtage: 3% vom Kaufpreis (zuzügl. 20% USt.)
Bilder mit Mobiliar sind KI-generiert (außer Küche).
Auf Wunsch profitieren unsere Kunden von kostengünstigen Konditionen für die Vertragserrichtung durch einen Anwalt oder Notar.
Weiters unterstützen wir Sie gerne bei der Suche nach einer geeigneten Finanzierung (wir selbst sind nicht als Finanzierungsvermittler tätig).
Wir freuen uns auf Ihre schriftliche Anfrage (bitte unbedingt mit vollständigem Namen und Kontaktdaten) und stehen Ihnen gerne auch an Wochenenden und Feiertagen für Auskünfte zur Verfügung!
Hinweis im Sinne des Maklergesetzes:
Zum Verkäufer dieser Immobilie stehen wir in einem wirtschaftlichen Naheverhältnis im Sinne des Maklergesetztes, weil wir bereits mehrmals in seinem Auftrag tätig waren. Es bestehen jedoch keinerlei wechselseitige gesellschaftsrechtliche Firmenbeteiligungen und/oder sonstige -verflechtungen. Sämtliche Informationen zum Objekt wurden uns vom Abgeber zur Verfügung gestellt; wir gehen von deren Richtigkeit aus. Tipp- und andere Fehler in unserer Insertion und im Exposé sind vorbehalten. Die Informationen erfolgen ohne Gewähr. Wir ersuchen Sie vor dem Ankauf eine genaue Prüfung der Unterlagen vorzunehmen, wobei wir Sie selbstverständlich bestmöglich unterstützen.
Maitz Immobilientreuhand e.U. ist als Doppelmakler tätig und hat daher gleichermaßen die Interessen sowohl des Angebers wie auch des Kaufinteressenten sorgfältig zu wahren.
-----------------------------------------
ENGLISH
HISTORY OF THE PROPERTY
Guido Gröger—born in Ybbs an der Donau during the Austro-Hungarian Empire as the son of a master builder—was one of the most successful contractors of his time and the builder of this beautiful Wilhelminian-style house from 1906–1907.
He designed buildings based on his own plans and was a renowned contributor to the architectural landscape of imperial Vienna.
Relevant literature suggests that Guido Gröger was responsible for the headquarters of the Medical Association at Weihburggasse 10–12 in Vienna 1010.
It is considered certain that he constructed numerous apartment buildings, residential houses, villas, semi-detached villas, parsonages, two elementary schools, sanatoriums, and a hotel; primarily in Vienna’s 11th, 13th, 15th, 16th, 18th, and 19th districts.
APARTMENT
2nd floor (accessible by elevator)
Living area approx. 77.29 m²
plus approx. 8.64 m² balcony
Floor plan details:
+ Entryway
+ 3 rooms (one room is accessible via the bathroom, see plan)
+ Kitchen in the hallway leading to the two rooms
+ Bathroom with sink, shower, and washing machine hookup
+ Toilet with hand sink
+ Small closet
+ Storage room
+ BALCONY facing the courtyard!
Kitchen: Dishwasher, oven, stove, upper/lower cabinets
The stove/ceramic cooktop and dishwasher were replaced in January 2024.
An electrical inspection report and a report on the stove in the living room are available.
The gas boiler is located in the bathroom (gas-fired central heating).
A storage room in the hallway outside the apartment is included with the property!
In addition, a basement storage unit is available for use.
A bicycle storage room in the basement is also available (accessible directly from the street via a staircase).
Special features:
+ single-pane plastic windows
+ interior sun protection (blinds)
Infrastructure:
Shopping, sports, and recreational facilities—from a hardware store to a fitness center—within walking distance
Kongresspark & Kongressbad
Wilhelminenberg
BAUHAUS
Public transportation:
Tram lines 2, 10, 43 (e.g., toward U3 Ottakring, U3 Kendlerstraße, or toward U6 Josefstädter Str / Alser Str and into the 1st district)
Bus 44A, 46A, 46B
S-45 Hernals and Ottakring
Contract & Costs:
Purchase price and operating costs as stated here; no VAT.
Brokerage fee: 3% of the purchase price (plus 20% VAT)
Images with furniture are AI-generated (except for the kitchen).
Upon request, our clients benefit from favorable terms for contract drafting by a lawyer or notary.
Furthermore, we are happy to assist you in finding suitable financing (we do not act as financing brokers ourselves).
We look forward to receiving your written inquiry (please be sure to include your full name and contact information) and are happy to provide information even on weekends and holidays!
Note pursuant to the Real Estate Brokerage Act:
We have a close business relationship with the seller of this property within the meaning of the Real Estate Brokerage Act, as we have acted on their behalf on several occasions. However, there are no mutual corporate holdings and/or other interdependencies under company law. All information regarding the property has been provided to us by the seller; we assume it to be accurate. We reserve the right to correct any typographical or other errors in our listing and property description. The information is provided without warranty. We ask that you carefully review the documents before purchasing, and we will, of course, assist you to the best of our ability.
Maitz Immobilientreuhand e.U. acts as a dual agent and is therefore obligated to carefully protect the interests of both the seller and the prospective buyer in equal measure.
Noch nichts gefunden? Wir informieren Sie über geeignete Immobilienangebote noch vor allen anderen.
Legen Sie jetzt Ihren individuellen Suchagenten unter folgendem Link an. Wir schicken Ihnen passende Immobilien exklusiv vorab zu.
Suchagent anlegen - https://maitz-immobilientreuhand.service.immo/registrieren/de
Tipp: Jetzt auf www.immomarktplatz.at neue Angebote 24 Stunden früher finden!
Infrastruktur / Entfernungen
Gesundheit
Arzt <500m
Apotheke <500m
Klinik <1.000m
Krankenhaus <500m
Kinder & Schulen
Schule <500m
Kindergarten <500m
Universität <2.000m
Höhere Schule <1.500m
Nahversorgung
Supermarkt <500m
Bäckerei <500m
Einkaufszentrum <500m
Sonstige
Geldautomat <500m
Bank <500m
Post <500m
Polizei <1.000m
Verkehr
Bus <500m
U-Bahn <1.000m
Straßenbahn <500m
Bahnhof <1.000m
Autobahnanschluss <5.000m
Angaben Entfernung Luftlinie / Quelle: OpenStreetMap
Eckdaten
| Kaufpreis: | 346.500,00 € |
| Fläche: | 77,29 m² |
| Zimmer: | 3 |
Basisdaten zur Immobilie
| Objektnr: | 897 |
| Art: | Wohnung |
| Land: | Österreich |
| Baujahr: | 1907 |
| Zustand: | Gepflegt |
| Alter: | Altbau |
| Kaufpreis: | 346.500,00 € |
| Betriebskosten: | 191,01 € |
| MwSt Gesamt: | 19,10 € |
| Wohnfläche: | 77,29 m² |
| Nutzfläche: | 85,93 m² |
| Zimmer: | 3 |
| Bäder: | 1 |
| WC: | 1 |
| Balkone: | 1 |
| Heizwärmebedarf: | C 93,00 kWh/m²a |
| fGEE: | D 1,91 |
Ausstattung
Gas, Etagenheizung, Einbauküche, Personenaufzug, Nordbalkon, Dusche
Internet und TV
Information zur Internet und TV Versorgung hier
Ihre persönliche Beratung
Mag. Dominik Maitz
MAITZ Immobilientreuhand e.U.
maitz@maitz-immobilien.at
+43 676 733 61 60
+43 676 733 61 60
