Lage der Immobilie
Ferdinandstraße / Urania / InnenstadtBeschreibung der Immobilie
Liebe Wohnungssuchende!
Bitte um Kontaktaufnahme über das Kontaktformular: www.sulek.immobilien/besichtigung (bitte Herrn Renner / Ferdinandstraße auswählen!).
Hinweis: Derzeit ist die Liegenschaft noch eine Baustelle. Die Bildaufnahmen sind aktuell noch unvollständig und werden stetig aktualisiert und erweitert.
Herzlichen Dank!
***********************************
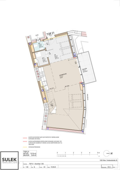
Wohnung
Zur Vermietung gelangt ein aktuell in Fertigstellung befindlicher Dachgeschoßausbau in der Ferdinandstraße 29, 1020 Wien.
Alle Wohnungen verfügen über eine Freifläche, hochwertige Nassräume sowie eine voll ausgestattete Küche. Zusätzlich geboten werden besondere Designelemente wie Sichtholzdecken, offenen Galerieebenen und große Glasflächen, welche tolle Lichtverhältnisse bieten. Die Beheizung erfolgt mittels moderner Luft-Wasser-Wärmepumpen, welche die Fußbodenheizung und die Warmwasseraufbereitung speisen - ebenso verfügen alle Einheiten über Klimaanlagen.
Die gegenständliche Wohnung teilt sich wie folgt auf:
1. Dachgeschoß:
- Vorraum
- Wohnküche
- Balkon
- Abstellraum
- WC
2. Dachgeschoß:
- Schlafzimmer
- Badezimmer mit Dusche und WC
Wichtig zu wissen:
- Die Dachflächenfenster verfügen über Außenjalousien - die südseitigen Gaupen verfügen über eine Außenbeschattung, die nordseitigen Gaupen bei Top 21 & 24 werden mit Innenplissees versehen.
- Im Bereich der Gaupen und an den schrägen Wänden darf aufgrund des Wandaufbaus nicht gebohrt, genagelt oder verschraubt werden!
- Für die Mietvertragserrichtung fallen einmalig Kosten in Höhe von € 588,00 Brutto an.
- Die Tierhaltung – ausgenommen die Haltung von wohnungsüblichen, artgerecht in Behältnissen gehaltenen Kleintieren (wie Ziervögeln, Zierfischen und kleinen Schildkröten, nicht ausgenommen jedoch Reptilien, Gifttiere oder andere gefährliche Tiere) - ist leider nicht gestattet.
- Die Energie-Kosten werden verbrauchsabhängig verrechnet und sind nicht in der Miete inkludiert.
Lage
Das Objekt befindet sich in einer sehr beliebten Lage Wiens - nahe der Innenstadtgrenze und perfekt angebunden dank der nahegelegenen U-Bahn Station Nestroyplatz (U1, 300m, 4 Gehminuten). Fußläufig erreichen Sie in nur 10 Minuten den Schwedenplatz (U4, U1; Straßenbahnlinien 1, 2, 71; Buslinie N29).
Der nahegelegene Donaukanal oder Wiener Prater (Hauptallee) laden zur Erholung, Kulinarik und zu sportlichen Aktivitäten ein.
In unmittelbarer Umkreis, v.a. auf der Praterstraße, befinden sich mehrere Supermärkte (z.B. Billa 100m, Spar 400m, Hofer 500 m), ein Drogeriemarkt (z.B. DM 500m), eine Apotheke und zahlreiche Lokale/Restaurants. Die Wohnung bietet eine ideale Verbindung aus sehr gut ausgebauter Infrastruktur vor Ort und direkter Anbindung an die City.
Wichtig zu wissen
- Heiz- und Stromkosten sind nicht in der Miete inkludiert.
- Um mit regelmäßigen und lückenlosen Mietzahlungen zu rechnen, verlangt der Eigentümer zur Bonitätsprüfung die letzten drei Gehaltszettel und bei Selbstständigen den aktuellsten Einkommenssteuerbescheid.
*************************************
Sollten Sie nach Durchsicht des Inserats eine Besichtigung wünschen, bitten wir um Anfrage über das Kontaktformular und Nennung ein paar konkreter Terminvorschläge. Vielen Dank!
******************************************
Die zur Verfügung gestellten Informationen beruhen auf Angaben des Abgebers, der Gemeinde und der Hausverwaltung bzw. der jeweiligen Professionisten. Für die Richtigkeit und Vollständigkeit der Angaben kann keine Gewähr bzw. Haftung übernommen werden. Weiters weisen wir auf ein wirtschaftliches und/oder familiäres Naheverhältnis hin. Festgehalten wird, dass unser Maklerunternehmen gem. § 17 MaklerG einseitig nur für den Vermieter tätig wird, nicht für den Mieter.
Bitte beachten Sie, dass unser Unternehmen keine Reisekosten übernimmt, die im Zusammenhang mit der Besichtigung von Immobilien anfallen. Alle anfallenden Kosten für Anreise, Unterkunft und Verpflegung müssen von den Interessenten selbst getragen werden. Des Weiteren übernehmen wir keine Haftung für Kosten, die durch kurzfristige Stornierungen oder Änderungen von Besichtigungsterminen entstehen können. Wir danken Ihnen für Ihr Verständnis.
******************************************
Der Immobilienmakler erklärt, dass er – entgegen dem in der Immobilienwirtschaft üblichen Geschäftsgebrauch des Doppelmaklers – einseitig nur für den Vermieter tätig ist.
Infrastruktur / Entfernungen
Gesundheit
Arzt <500m
Apotheke <500m
Klinik <1.000m
Krankenhaus <500m
Kinder & Schulen
Schule <500m
Kindergarten <500m
Universität <500m
Höhere Schule <1.500m
Nahversorgung
Supermarkt <500m
Bäckerei <500m
Einkaufszentrum <1.000m
Sonstige
Geldautomat <500m
Bank <500m
Post <500m
Polizei <500m
Verkehr
Bus <500m
U-Bahn <500m
Straßenbahn <500m
Bahnhof <500m
Autobahnanschluss <3.000m
Angaben Entfernung Luftlinie / Quelle: OpenStreetMap
Eckdaten
Objektnr: | 25877 |
Art: | Wohnung |
Land: | Österreich |
Baujahr: | 2025 |
Zustand: | Erstbezug |
Alter: | Neubau |
Gesamtmiete: | 1.901,54 € |
Kaltmiete (netto): | 1.556,72 € |
Kaltmiete: | 1.728,67 € |
Provision: | Gemäß Erstauftraggeberprinzip bezahlt der Abgeber die Provision. |
Betriebskosten: | 171,95 € |
MwSt Gesamt: | 172,87 € |
Wohnfläche: | 70,76 m² |
Zimmer: | 2 |
Bäder: | 1 |
Balkone: | 1 |
Heizwärmebedarf: | B 42,20 kWh/m²a |
fGEE: | A 0,74 |
Ausstattung
Parkett, Fliesen, Fußbodenheizung, Einbauküche, Personenaufzug, Dusche
Internet und TV
Information zur Internet und TV Versorgung hier
Ihre persönliche Beratung

Philipp Renner
Mittelsmann Philipp Sulek GmbH
E pr@sulek-immobilien.at
T +43 660 125 52 42