WG-Träume werden wahr! Jetzt mieten!
Wohnung
,
8010
Graz,03.Bez.:Geidorf
,
Körösistraße 48c
Lage der Immobilie
Die Körösistraße 48c befindet sich in der begehrten Gegend von Geidorf, einem lebendigen Stadtteil von Graz. Dieser Bezirk zeichnet sich durch seine historische Architektur, seine grünen Parks und seine vielfältige kulturelle Szene aus. Die Körösistraße selbst ist eine ruhige Wohnstraße, die dennoch eine ausgezeichnete Anbindung an öffentliche Verkehrsmittel und wichtige Einrichtungen bietet. In der Nähe finden Sie Geschäfte, Restaurants, Cafés und alles, was Sie für den täglichen Bedarf benötigen. Die Lage ist auch ideal für Studenten, da sich die Universität Graz und andere Bildungseinrichtungen in der Nähe befinden.Beschreibung der Immobilie
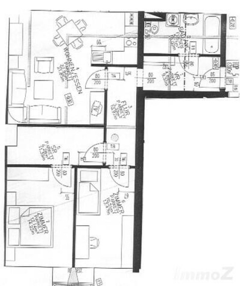
Diese charmante, 3 Zimmer-Wohnung im beliebten Grazer Stadtteil Geidorf bietet auf ca. 68 m² Wohnfläche optimaler Komfort und eine clevere Raumaufteilung.
Dieses Zuhause überzeugt mit einer gut durchdachten Raumaufteilung, die ideal für eine 2er-WG geeignet ist.
Die Wohnung verfügt über zwei separat begehbare Schlafzimmer, die Privatsphäre und Komfort für beide Bewohner gewährleisten.
Die Wohnung verfügt über eine separate, geräumige Küche inkl. Geschirrspüler mit Wohn-Essbereich.
Das Badezimmer ist mit Badewanne und Toilette ausgestattet.
Auch der Flur ist sehr großzügig und bietet ausreichend Platz für Garderobe, Kleiderschränke usw.
Die Miete von € 779,56 inkludiert die Betriebskosten, die Heizung von ca. € 150,00 kommt noch hinzu (die Berechnung erfolgt auf Basis Ihres Eigenverbrauchs).
Ein eigener PKW-Stellplatz kann zusätzlich angemietet werden.
Nutzen Sie die Gelegenheit und vereinbaren Sie noch heute einen Besichtigungstermin!
Eckdaten
| Gesamtmiete: | 789,68 € |
| Fläche: | 67,80 m² |
| Zimmer: | 3 |
Basisdaten zur Immobilie
| Objektnr: | O2100166368 |
| Art: | Wohnung |
| Land: | Österreich |
| Zustand: | Neuwertig |
| Alter: | Altbau |
| Gesamtmiete: | 789,68 € |
| Kaltmiete (netto): | 530,00 € |
| Kaltmiete: | 789,68 € |
| Provision: | Provisionsfrei |
| Betriebskosten: | 175,00 € |
| Wohnfläche: | 67,80 m² |
| Gesamtfläche: | 67,80 m² |
| Zimmer: | 3 |
| Stellplätze: | 1 |
| Heizwärmebedarf: | B 50,00 kWh/m²a |
Ausstattung
Parkett, Fernwärme, Einbauküche, Personenaufzug, Badewanne, Kabel/Satelliten-TV, Carport
Internet und TV
Information zur Internet und TV Versorgung hier
Ihre persönliche Beratung
Adina Omic
Domizil Immobilientreuhänder GmbH
adina.o@mundwerk-immobilien.at
06608199987
