Immobilie merken

NEUBAUPROJEKT - Gartenwohnungen nähe Hauptbahnhof

Wohnung , 1100 Wien , Josef-Deutsch-Strasse 3

Beschreibung der Immobilie

Objektbeschreibung: In der Josef-Deutsch-Straße 3-5 befinden sich exklusive Eigentumswohnungen, die höchsten Wohnkomfort mit moderner Architektur und urbaner Lebensqualität vereinen. Die Wohnungen überzeugen durch durchdachte Grundrisse, eine hochwertige Ausstattung und lichtdurchflutete Räume, die eine offene und einladende Wohnatmosphäre schaffen. Die großzügigen Freiflächen in Form von Loggien, Balkonen oder Terrassen bieten atemberaubende Ausblicke über die Stadt und laden zum Entspannen ein. Hochwertiges Wohnen im Erstbezug Das exklusive Neubauprojekt bietet Wohnungen mit Wohnflächen zwischen ca. 44 m² und ca. 149 m², ideal für anspruchsvolle Singles, Paare und Familien. Die Einheiten verfügen über 2 bis 4 Zimmer, die flexibel gestaltet und individuell genutzt werden können.Die modernen Grundrisse maximieren die Wohnqualität und bieten ausreichend Platz für persönliche Entfaltung. Durch großzügige Fensterflächen werden die Räume mit natürlichem Licht durchflutet und schaffen ein angenehmes Wohngefühl. Ausstattung & Wohnkomfort Jede Wohnung wurde in hochwertiger Erstbezugsqualität errichtet und überzeugt durch eine exzellente Ausstattung:-) Moderne Architektur mit lichtdurchfluteten Räumen-) Deckenheizung/Kühlung, die für ein angenehmes Wohnklima sorgt-) Hochwertige Parkettböden in den Wohnräumen für ein stilvolles Ambiente-) Edle Badezimmer mit großformatigen Fliesen und stilvoller Ausstattung-) Großzügige Freiflächen (Loggien, Balkone oder Terrassen) für erholsame Stunden im Freien-) Durchdachte Raumaufteilung für eine optimale Nutzung der Wohnfläche. Abgerundet wird das Angebot durch eine transparente und wirtschaftliche Kostenstruktur: Die aktuellen Betriebskosten inklusive Verwaltungshonorar belaufen sich auf ca. € 2,90 pro m², die monatliche Rücklage beträgt derzeit ca. € 0,46 pro m². Urbanes Wohnen mit bester Infrastruktur Das Wohnprojekt überzeugt nicht nur durch seine hochwertige Ausstattung, sondern auch durch seine hervorragende Lage. Der Wiener Hauptbahnhof sowie die U1-Station Keplerplatz befinden sich in unmittelbarer Nähe und bieten eine optimale Anbindung an das Stadtzentrum. Einkaufsmöglichkeiten, Schulen, Kindergärten und medizinische Einrichtungen sind bequem erreichbar. Bezugstermin Die exklusiven Dachgeschosswohnungen sind bezugsfertig – sichern Sie sich schon jetzt Ihr neues Zuhause mit unvergleichlichem Wohnkomfort in einer der aufstrebendsten Wohngegenden Wiens! Ausstattung: Beschattung: alle Wohnungen sind mit mittels elektrisch bedienbaren Außenraffstores ausgestattet Kühlung: Die Dachgeschoss-Wohnungen sind zusätzlich mit je einer Split-An-lage zum Kühlen ausgestattet. Je Wohnküche bzw. Zimmer (Aufenthaltsraum) ist ein Innengerät vorgesehen. Das dazugehörige Außengerät je Wohnung befindet sich am Dach. Heizungsart: Die Beheizung/Temperierung erfolgt über die thermische Bauteilaktivierung der Stahlbetondecken (Change-Over-System – Zeitpunkte Umschaltung Frühjahr für Temperieren sowie Herbst für Heizen sind außentemperaturabhängig). Im Badezimmer wird keine Bauteilaktivierung ausgeführt, stattdessen erfolgt hier die Beheizung mittels elektrischem Wandheizkörper. Warmwasseraufbereitung: Zentrale Warmwasseraufbereitung über die Fernwärmeversorgung. Wärmeversorgung: Die Liegenschaft wird mit Fernwärme versorgt. Temperierung: Die Temperierung der Wohnungen erfolgt über Luftwärmepumpen, wobei die Außengeräte am Dach und die Pufferspeicher und Verteilung (Change-Over) in der Technikzentrale im Untergeschoß situiert sind. Das exklusive Wohnprojekt in der Josef-Deutsch-Straße 3-5, befindet sich in einer der bestangebundenen Lage in Favoriten. Die Umgebung bietet eine ideale Mischung aus urbanem Flair, erstklassiger Infrastruktur und Erholungsmöglichkeiten. Energiekennzahl: HWB 25,2 kWh/m²/Jahr (Energieklasse B) Lagebeschreibung: Hervorragende Verkehrsanbindung Dank der Nähe zum Wiener Hauptbahnhof sind Sie optimal an das öffentliche Verkehrsnetz angebunden. Die U1-Station Südtirolerplatz ist in wenigen Gehminuten erreichbar und ermöglicht eine schnelle Verbindung in die Wiener Innenstadt. Zusätzlich sorgen mehrere Straßenbahn- und Buslinien für eine bequeme Mobilität innerhalb des Bezirks und darüber hinaus. Umfassende Infrastruktur In unmittelbarer Umgebung finden sich zahlreiche Einkaufsmöglichkeiten, darunter die Favoritenstraße als beliebte Einkaufsstraße mit einer Vielzahl an Geschäften, Supermärkten und Gastronomiebetrieben. Das nahegelegene Einkaufszentrum Wien Hauptbahnhof bietet eine breite Auswahl an Einzelhandel, Restaurants und Dienstleistern. Erholungs- und Freizeitmöglichkeiten Der Helmut-Zilk-Park in unmittelbarer Nähe lädt zu Spaziergängen, sportlichen Aktivitäten oder entspannten Stunden im Grünen ein. Zusätzlich bietet das Theresienbad eine Möglichkeit für Erholung und Sport. Bildung und Gesundheit Mehrere Schulen, Kindergärten sowie medizinische Einrichtungen, Apotheken und das Sozialmedizinische Zentrum Süd – Kaiser-Franz-Josef-Spital befinden sich in kurzer Distanz. Diese Kombination aus urbaner Infrastruktur, Naherholung und ausgezeichneter Verkehrsanbindung macht die Lage der exklusiven Dachgeschosswohnungen zu einer besonders attraktiven Wohnadresse in Wien.

Eckdaten

Kaufpreis: 363.000,00 €
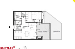
Fläche: 54,45 m²
Zimmer: 2

Basisdaten zur Immobilie

Objektnr: 141/83554
Art: Wohnung
Land: Österreich
Baujahr: 2025
Kaufpreis: 363.000,00
Provision: 3%
Wohnfläche: 54,45 m²
Zimmer: 2
Bäder: 1
WC: 1
Balkone: 1
Terrassen: 1
Garten: 28,07 m²
Heizwärmebedarf:  A  21,30 kWh/m²a
fGEE:  A  0,75

Ausstattung

Personenaufzug



Internet und TV

Information zur Internet und TV Versorgung hier




Immobilie anfragen




Ihre persönliche Beratung

Rustler Immobilientreuhand

Jasmina Burschitschek-Husic

Rustler Immobilientreuhand

burschitschek-husic@rustler.eu

01 894 97 49662

+43 676 834 34 662


Rustler Immobilientreuhand - Immobilen Makler

Mariahilfer Straße 196/Eingang Lehnergasse 3, 1150 Wien

https://www.rustler.eu