Exklusive Doppelhaushälfte in Leopoldskron
Haus
- Doppelhaushälfte,
5020
Salzburg
Lage der Immobilie
Der Stadtteil Leopoldskron zählt zu den besonders begehrten Wohnlagen in Salzburg und vereint naturnahe Lebensqualität mit städtischer Infrastruktur. Gelegen im Süden der Stadt, nahe dem Leopoldskroner Weiher und dem malerischen Schloss Leopoldskron, bietet der Stadtteil eine ruhige, grüne Umgebung mit hoher Lebensqualität.
Leopoldskron besticht durch seine weitläufigen Grünflächen, gepflegten Wohnsiedlungen und die unmittelbare Nähe zu einigen der schönsten Naherholungsgebiete Salzburgs. Spaziergänge, Joggingrouten entlang idyllischer Wege prägen das Freizeitbild der Bewohner.
Trotz dieser naturnahen Lage ist die historische Altstadt Salzburgs in wenigen Minuten mit dem Fahrrad oder öffentlichen Verkehrsmitteln erreichbar.
Das Wohngefühl in Leopoldskron ist geprägt von einer entspannten, ländlich wirkenden Atmosphäre. Architektonisch zeigt sich der Stadtteil vielfältig: von traditionellen Einfamilienhäusern über moderne Wohnanlagen bis hin zu stilvollen Villen. Zugleich ist für eine hervorragende Infrastruktur gesorgt – Schulen, Kindergärten, Einkaufsmöglichkeiten sowie medizinische Versorgung befinden sich in unmittelbarer Nähe.
Durch diese Kombination aus ruhigem, grünem Umfeld und der Nähe zur Stadt ist Leopoldskron eine der begehrtesten Wohnadressen in Salzburg – ideal für alle, die naturnah und dennoch stadtnah leben möchten.
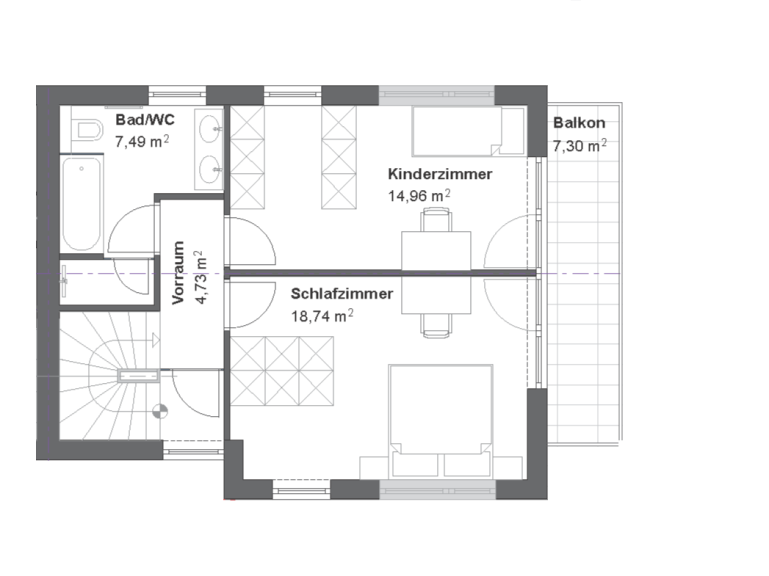
Beschreibung der Immobilie
Vier Doppelhaushälften mit Wohnflächen zwischen 110m² und 114m² zzgl. Keller bieten ein großzügiges Raumangebot für individuelle Wohnträume.
Jede Doppelhaushälfte verzaubert mit einem privaten Garten von 103m² bis 178m², die perfekte Kulisse für unvergessliche Momente im Freien.
Ergänzt wird dies durch eine 18m² große Dachterrasse, die atemberaubende Blicke auf die umliegende Berge ermöglicht. Der große Wohn-Essbereich sorgt für ein offenes und einladendes Wohngefühl. Die exklusiven Doppelhaushälften spiegeln die perfekte Balance zwischen urbanen Lebensstil und idyllischer Ruhe wider. Hochwertige Ausstattung, modernes Design und eine durchdachte Planung machen sie zu einem harmonischen Wohngefühl.
In diesen exklusiven Doppelhaushälften, finden Sie Ihr neues Zuhause, das urbanes Flair mit dem Charme eines Rückzugsorts im Grünen verbindet.
Erleben Sie den Luxus einer privaten Oase in Leopoldskron, wo die Schönheit der Natur auf exklusives Wohnen trifft.
Optional besteht die Möglichkeit, zwei Tiefgaragenstellplätze zu je € 32.500 zu erwerben.
Wir verweisen auf unsere Funktion als Doppelmakler und das wirtschaftliche Naheverhältnis zum Abgeber.
Eckdaten
Objektnr: | 0003003056 |
Art: | Haus - Doppelhaushälfte |
Land: | Österreich |
Baujahr: | 2026 |
Kaufpreis: | 1.249.000,00 € |
Provision: | 3% des Kaufpreises plus 20% USt. |
Wohnfläche: | 114,00 m² |
Zimmer: | 4 |
Bäder: | 2 |
WC: | 3 |
Balkone: | 1 |
Terrassen: | 1 |
Garten: | 179,00 m² |
Keller: | 20,00 m² |
Heizwärmebedarf: | B 30,00 kWh/m²a |
fGEE: | A+ 0,56 |
Ausstattung
Zentralheizung, Wohnküche / offene Küche, Dusche, Bad mit Fenster, Badewanne, Kabel/Satelliten-TV
Internet und TV
Information zur Internet und TV Versorgung hier
Ihre persönliche Beratung

Jacqueline Mörtl
Raiffeisen Salzburg
E jacqueline.moertl@immoraiffeisen.at
T +43 662 8886-14226
H +43 662 8886 14229